Vosspalais Mitte
Fotoleiste verschieben für mehr Bilder
Objektbeschreibung:
Bei dem Objekt handelt es sich um ein Einzeldenkmal, welches in den Jahren 1884 - 1886 vom Architekten Wilhelm Böckmann als Büro- und Geschäftshaus errichtet wurde.Es ist das einzig noch erhaltene Gebäude aus dieser Zeit im weiteren Umkreis.Im Kontrast zu den neuen Bauten in der Nachbarschaft besticht das Gebäude durch seine charakteristische Fassadengestaltung aus rotem Sandstein.Das Objekt wird aktuell liebevoll saniert und restauriert. Es besteht aus einem historischen Vorderhaus sowie einem modernen, neu errichteten, Seitenflügel. Dadurch entsteht eine interessante Kombination aus repäsentativen Büros im Vorderhaus, die die Anmutung der Außenfassade wiederspiegeln, sowie modern gestalteten, kreativen Flächen im Seitenflügel, die eine ruhige und dennoch urbane Arbeitsatmosphäre bieten.Abgerundet wird dies durch eine moderne und effiziente Haustechnik
The property is an individual monument, which was built between 1884 and 1886 by architect Wilhelm Böckmann as an office and commercial building and is the only surviving building from this period in the wider area. in contrast to the new buildings in the neighborhood, the building impresses with its characteristic red sandstone façade design. the property is currently being lovingly renovated and restored. It consists of a historic front building and a modern, newly constructed side wing. This creates an interesting combination of representative offices in the front building, which reflect the appearance of the exterior façade, and modern, creative spaces in the side wing, which offer a quiet yet urban working atmosphere, rounded off by modern and efficient building technology
Lage:
In Mitten des pulsierenden Lebens der Hauptstadt finden Sie Ihre zukünftige Repräsentanz.Leipziger Straße, Wilhelmstraße, Potsdamer Platz, Leipziger Platz - heute wie vor 100 Jahren das Zentrum der deutschen Hauptstadt.Adressen aus Politik, Wirtschaft und Wissenschaft sind ebenso in unmittelbarer Nähe wie Kulturelle Einrichtungen, Hotels und touristische Highlights der Stadt.Auch für eine kulinarische Infrastruktur auf höchstem Niveau sowie zahlreiche Einkaufsmöglichkeiten des täglichen Bedarfs ist mit dem Einkaufszentrum Mall of Berlib, LP 12, welches das Voßpalais förmlich in alle Richtungen umgibt, gesorgt
Leipziger Strasse, Wilhelmstrasse, Potsdamer Platz, Leipziger Platz - today, as 100 years ago, the center of the German capital.addresses from politics, business and science are just as close by as cultural institutions, hotels and tourist highlights of the city.the Mall of Berlib, LP 12, which literally surrounds the Voßpalais in all directions, also provides a culinary infrastructure at the highest level as well as numerous shopping opportunities for daily needs
Sonstiges:
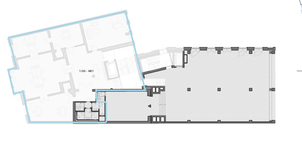
Folgende Flächen stehen zur Verfügung:
- 1. OG mit ca. 286 qm für 29,50 €/qm, Ausstattung Luxus
- 2. OG mit ca. 227 qm für 25 €/qm, gehobene Ausstattung mit Terrasse
The following areas are available:
- 1st floor with approx. 286 sqm for € 29.50/sqm, luxury furnishings
- 2nd floor with approx. 227 sqm for €25/sqm, upscale furnishings with terrace
Eckdaten
| Objektart | Büro |
| Objekttyp | Bürofläche |
| Vermarktungsart | Miete |
| Bürofläche | 512.50 m² |
| Flächen teilbar ab | 227.50 m² |
| Heizkosten enthalten | JA |
| Kaution | 3 BMM |
| Preis | ab 25 €/qm |
| Gäste-WC | 1 |
| Kategorie | Luxus |
| Nutzungsart | Gewerbe |
| Parkettboden | JA |
| Fernheizung | JA |
| Klimatisiert | JA |
| DV-Verkabelung | JA |
| Personenaufzug | JA |
| Keller | JA |
| Baujahr | 1884 |
| Zustand | Saniert |
| Etage | 1. OG |
| Etagen Anzahl | 4 |
| Verfügbarkeit | Nach Vereinbarung |
| Objektnummer | MS2218 |
Ausstattung
- Terrasse
- Aufzug
- historische Elemente
- Betonboden
- hochwertige Sanitärausstattung
- Stellplätze
- Restaurants
- XXXXXXXXXX
- Terrace
- elevator
- historical elements
- concrete floor
- high-quality sanitary facilities
- parking spaces
- restaurants
Weiterempfehlen:
Lage in Karte:
Vosspalais Mitte














