Start UP Office in Kreuzberg
Fotoleiste verschieben für mehr Bilder
Objektbeschreibung:
Das vom bekannten Architekturbüro VON GERKAN MARG & PART-
NER geplant und in 2023 fertiggestellte Projekt besteht aus drei
separaten, jeweils durch attraktive Innenhöfe getrennten und in die
Grundstückstiefe hinein gestaffelten Gebäuden. Die Fassadengestaltung orientiert sich mit ihrer klaren Struktur an die das Umfeld
prägende Architektur der traditionellen Gewerbehöfe.
Während im hinteren Gebäude des NENA Businesshotel platziertwurde, konnte das mittlere Gebäude langfristig an ein namenhaftes
NGO vermietet werden.
Der hier angebotene Leerstand erstreckt sich auf die drei Büroetagen im vorderen, an der Prinzessinnenstraße platzierten Kopf-
gebäude. Hier bietet im Erdgeschoss ein asiatisches Ramen Restaurant hochwertige Speisen, zwei der fünf Büroetagen konnten
bereits an Unternehmen aus den Bereichen Kommunikation & ITEntwicklung vergeben werden.
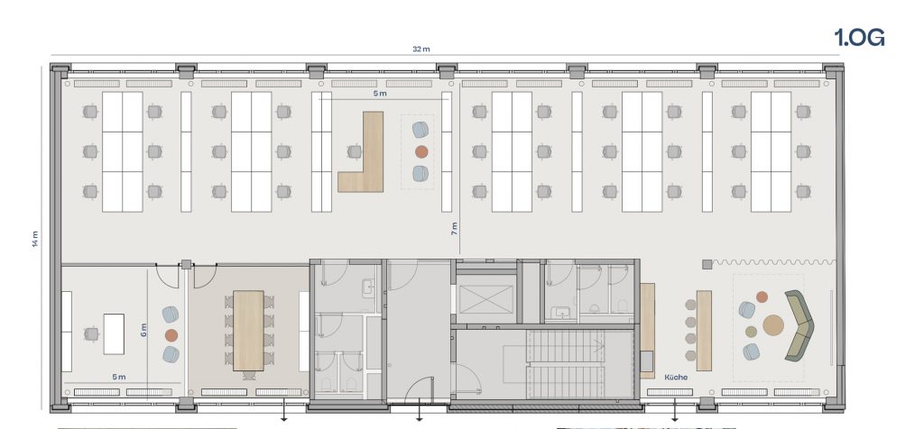
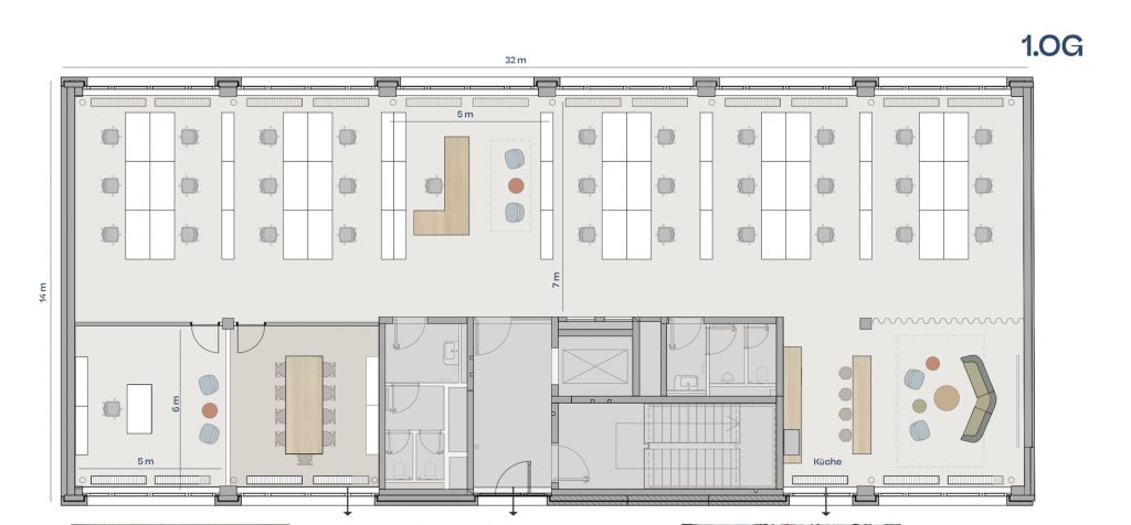
Das 1. Obergeschoss verfügt über eine sehr große begrünte Terrasse, welche gemeinschaftlich mit den Mietern des mittleren Ge-
bäudes genutzt werden kann.
Im Untergeschoss dieses Gebäudes wurde ein großzügiger Duschbereich mit Umkleiden realisiert, der von den Mietern des Hauses
jederzeit genutzt werden kann.
The project, planned by the renowned architectural firm VON GERKAN MARG & PART-
NER and scheduled for completion in 2023 consists of three separate
separate buildings, each separated by attractive inner courtyards and
staggered into the depth of the plot. With its clear structure, the façade design is based on the architecture of the traditional
architecture of the traditional commercial courtyards that characterize the surroundings.
While a business hotel has been placed in the rear building of the NENA, the middle building has been leased long-term to a well-known
NGO on a long-term lease.
The vacancy on offer here extends to the three office floors in the front end building on Prinzessinnenstrasse.
building. Here, an Asian ramen restaurant offers high-quality food on the first floor, while two of the five office floors have already been
already been let to companies from the communications & IT development sector.
The 1st floor has a very large landscaped terrace, which can be shared with the tenants of the middle building.
building.
A spacious shower area with changing rooms was created in the basement of this building, which can be used by the building's tenants at any time.
can use at any time
Lage:
Das Objekt befindet sich im begehrten Bezirk Kreuzberg zwischen Oranienplatz und Moritzplatz. Zahlreiche Restaurants und Cafés sind in nur wenigen Gehminuten zu erreichen. Das direkte Umfeld wird durch Kreativen und Start-ups geprägt.
The property is located in the sought-after Kreuzberg district between Oranienplatz and Moritzplatz. Numerous restaurants and cafés are just a few minutes' walk away. The immediate surroundings are characterized by creatives and start-ups.
Sonstiges:
Folgende Flächen stehen zur Verfügung:
- 1. OG mit ca. 512 qm
- 2. OG mit ca. 512 qm
- 5. OG mit ca. 512 qm
Die Flächengrößen sind nach BGF!
The following areas are available:
- 1st floor with approx. 512 sqm
- 2nd floor with approx. 512 sqm
- 5th floor with approx. 512 sqm
The area sizes are according to gross floor area!
Eckdaten
| Objektart | Büro |
| Objekttyp | Loft / Atelier |
| Vermarktungsart | Miete |
| Bürofläche | 1536.50 m² |
| Flächen teilbar ab | 512.00 m² |
| Heizkosten enthalten | JA |
| Mietpreis | 23.90 € / m² |
| Stellplatz | 12 |
| Kategorie | Standard |
| Nutzungsart | Gewerbe |
| Personenaufzug | JA |
| Baujahr | 2021 |
| Zustand | Saniert |
| Energieklasse | A |
| Energiepass Art | Bedarf |
| Energiepass gültig bis | 03.09.2031 |
| Endenergiebedarf | 78.00 kWh/(m²*a) |
| Primärenergieträger | Gas |
| Etage | 5. OG |
| Etagen Anzahl | 5 |
| Objektnummer | MS4655 |
Ausstattung
- Redundantes Glasfaser
- Begrünte Höfe
- Anteilige Nutzung Terrasse 1.OG (280 m2
- Außenliegender Sonnenschutz
- Max. Schallschutz
- Bodentanks mit Elektroverkabelung
- Bodenheizkonvektoren
- Mechanische Grundkühlung über Bodenkonvektoren
- Radlerduschen & Umkleiden (UG)
- Fahrradstellplätze (Hof)
- Glastrennwände
- Sichtbeton
- Deckenhöhe 3 m
- Bodenbelag Linolium - Redundant fiber optics
- - Green courtyards
- - Proportionate use of 1st floor terrace (280 m2)
- - External sun protection
- - Max. sound insulation
- - Floor tanks with electrical cabling
- - Floor heating convectors
- - Mechanical basic cooling via floor convectors
- - Cycling showers & changing rooms (basement)
- - Bicycle parking spaces (courtyard)
- - Glass partition walls
- - Exposed concrete
- - Ceiling height 3 m
- - Linolium floor covering
Weiterempfehlen:
Lage in Karte:
Start UP Office in Kreuzberg











