Sport und -Wellness- Space zu vermieten
Fotoleiste verschieben für mehr Bilder
Objektbeschreibung:
Die benachbarte Mieterschaft lässt die hohe Exklusivität des Objektes erkennen. Die Einzelhandelflächen sind an namhafte Nutzer wie Cartier und Chanel vermietet, die Büroflächen an bedeutende Kanzlein und Unternehmen. Der Eingangsbereich ist repräsentativ mit Naturstein versehen und großzügig gestaltet.
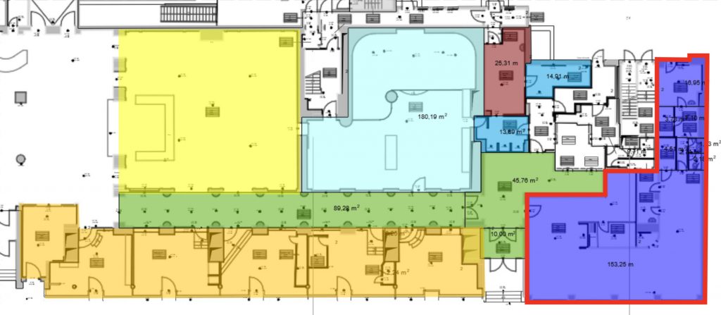
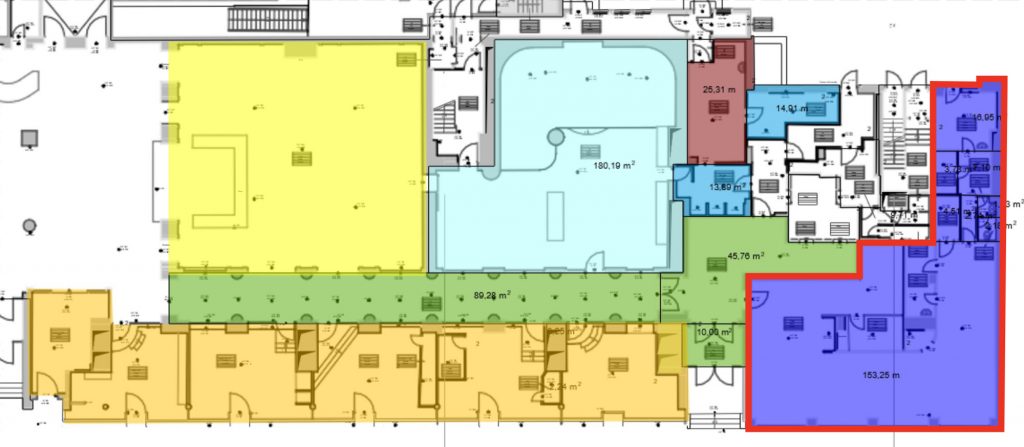
Die Fläche befindet sich im EG sowie UG des Bristol Hotels. Im Erdgeschoss befinden sich Räumlichkeiten, welche als Sportstudio genutzt worden sind. Im UG befindet sich der Wellnessbereich mit Pool, Sauna und Massageräumen. Der derzeitige Hotelnutzer beabsichtigt dort ein umfangreiches Kontigent für seine Gäste weiter zu buchen. Es besteht die Möglichkeit weitere 400 qm für ein Sportstudio im UG anzumieten.
The neighboring tenants reflect the high exclusivity of the property. The retail space is let to well-known tenants such as Cartier and Chanel, while the office space is let to major law firms and companies. The entrance area is prestigious and generously designed with natural stone.
The space is located on the ground floor and basement of the Bristol Hotel. On the first floor there are rooms that have been used as a sports studio. The wellness area with pool, sauna and massage rooms is located in the basement. The current hotel user intends to continue to book an extensive contingent for its guests there. There is the possibility of renting a further 400 sqm for a sports studio in the basement.
Lage:
Erstklassiger Büro- und Geschäftslage auf dem berühmten Prachtboulevard Kurfürstendamm Ecke Fasanenstraße in Berlin-Charlottenburg. Der Kurfürstendamm ist schon je her für seine repräsentativen Geschäftshäuser mit exklusiven Einkaufsmöglichkeiten, Cafés und Restaurants bekannt und lädt zum Flanieren ein. Auch bei Büromietern ist die noble Adresse sehr beliebt.
Die Anbindung an den öffentlichen Personennahverkehr ist gut ausgebaut und erfolgt über den in unmittelbarer Nähe des Gebäudes befindlichen U-Bahnhof Adenauerplatz sowie über mehrere Buslinien. In wenigen Fahrminuten ist der Fernbahnhof Zoologischer Garten zu erreichen.Die Anbindung an die Autobahn ist ebenfalls in kurzer Zeit gegeben.
Located in a prime office and retail location on the famous boulevard Kurfürstendamm at the corner of Fasanenstraße in Berlin-Charlottenburg. Kurfürstendamm has always been known for its prestigious commercial buildings with exclusive shopping facilities, cafés and restaurants and is an inviting place to take a stroll. The prestigious address is also very popular with office tenants.
There are good public transport connections via the Adenauerplatz subway station in the immediate vicinity of the building and several bus routes. The Zoologischer Garten long-distance train station is just a few minutes' drive away, and there are also quick connections to the highway.
Sonstiges:
Folgend Flächen können angemietet werden.
- EG mit ca. 193 qm x 50,00 €/qm
- UG mit ca. 550 qm x 25,00 €/qm
- UG Erweiterung ca. 400 qm möglich ( derzeit Lager )
Es können Lagerflächen im UG angemietet werden .
The following areas can be rented.
- Ground floor with approx. 193 sqm x 50.00 €/sqm
- Basement with approx. 550 sqm x 25,00 €/sqm
- Basement extension approx. 400 sqm possible (currently warehouse)
Storage space can be rented in the basement.
Eckdaten
| Vermarktungsart | Miete |
| Gesamtfläche | 1143.00 m² |
| Preis | ab 25,00 €/qm |
| Kategorie | Luxus |
| Nutzungsart | Gewerbe |
| Parkettboden | JA |
| Zentralheizung | JA |
| DV-Verkabelung | JA |
| Personenaufzug | JA |
| Zustand | Modernisiert |
| Etage | Erdgeschoss |
| Verfügbarkeit | 01.04.2023 |
| Objektnummer | MS4737 |
Ausstattung
- Urban
- Flexibel
- Aufzug
- Sauna
- Pool
- Parkett
- XXXXXXXX
- Urban
- Flexible
- Efficient
- Elevator
- Representative
Weiterempfehlen:
Lage in Karte:
Sport und -Wellness- Space zu vermieten









