Space for Creatives
Fotoleiste verschieben für mehr Bilder
Objektbeschreibung:
Modernes Büro -und Geschäftshaus aus mehreren architektonisch individuell gestalteten Gebäuden in Berlin-Mitte
Modern office and commercial building consisting of several architecturally individually designed buildings in Berlin-Mitte
Lage:
Nur wenige Gehminuten zum Gendarmenmarkt• Axel-Springer-Verlag, Berliner Abgeordnetenhaus, Bundesdruckerei und Bundesministerium für Finanzen in direkter Nachbarschaft. Diverse Einkaufsmöglichkeiten, Restaurants und Cafés befinden sich im direkten Umfeld. Die Anbindung an den ÖPNV über den nahegelegenen U-Bahnhof "Kochstraße" (U6) sowie über mehrere Buslinien im Umfeld als auch den U-Bahnhof "Stadtmitte" (U2, U6) ist optimal fußläufig in wenigen Minuten zu erreichen.
Only a few minutes' walk to Gendarmenmarkt - Axel Springer publishing house, Berlin House of Representatives, Federal Printing Office and Federal Ministry of Finance in the immediate vicinity. Various shopping facilities, restaurants and cafés are in the immediate vicinity. The connection to public transportation via the nearby subway station "Kochstraße" (U6) as well as several bus lines in the area and the subway station "Stadtmitte" (U2, U6) can be easily reached on foot in a few minutes.
Sonstiges:
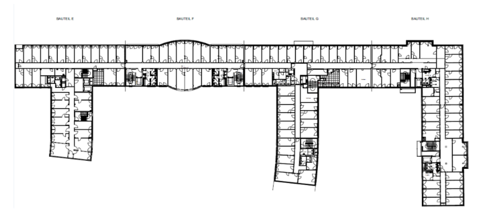
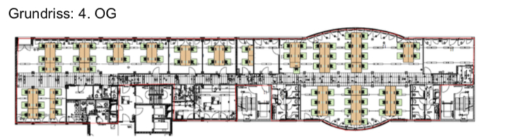
Folgende Fläche können wir provisionsfrei zur Anmietung anbieten:
EG - 8.OG = 20.024,00 qm
We can offer the following space for rent free of commission:
Ground floor - 8th floor = 20.024,00 sqm
Eckdaten
| Objektart | Büro |
| Objekttyp | Bürofläche |
| Vermarktungsart | Miete |
| Bürofläche | 20025.00 m² |
| Flächen teilbar ab | 445.55 m² |
| Nebenkosten | 4.90 € / m² |
| Preis | VB |
| Nutzungsart | Gewerbe |
| Personenaufzug | JA |
| Baujahr | 2003 |
| Zustand | Gepflegt |
| Etage | Erdgeschoss |
| Verfügbarkeit | Kurzfristig |
| Objektnummer | MS4870 |
Ausstattung
- Urban
- Flexibel
- Effizient
- Ausbau nach Mieterwunsch
- Aufzug
- Sonnenschutz
- Stellplatz
- Sichtmauerwerk
- Highspeed Internet
- Teeküche
- Doppelboden
- XXXXX
- Urban
- Flexible
- Efficient
- Expansion according to tenant wishes
- Elevator
- Sun protection
- Parking space
- Exposed brickwork
- High-speed Internet
- Kitchenette
- raised floor
Weiterempfehlen:
Lage in Karte:
Space for Creatives


