Service Offices am Airport BER – Shuttleservice
Fotoleiste verschieben für mehr Bilder
Objektbeschreibung:
Im kürzlich neu errichteten Hotel- und Bürohaus Schützenstraße 33 ist der Betrieb des jungen und modernen LOGINN Hotels (ACHAT Gruppe) bereits angelaufen. Das Übernachtungsangebot am Standort unmittelbar am S-Bhf Grünbergallee und nahe dem Flughafen Schönefeld gelegen findet bereits zahlreichen Zuspruch unter den meist internationalen Gästen der Stadt. Darüber hinaus ünterstützt der perfekt auf dieses Klientel zugeschnittene Hotel-Service die Attraktivität.
Die Mieter der im 1./ 2.OG des Hauses noch freien Büroflächen können von die- sem Serviceangebot zukünftig ebenso profitieren - den Arbeitstag mit dem Kaffee oder Frühstück im Hotelrestaurant beginnen, dort einen Konferenzraum buchen, ihre Postsendungen an der Hotel-Rezeption in Empfang nehmen
The young and modern LOGINN Hotel (ACHAT Group) has already started operations in the recently built hotel and office building at Schützenstraße 33. The accommodation on offer at the location directly next to the Grünbergallee S-Bahn station and close to Schönefeld Airport is already proving very popular with the city's mostly international guests. In addition, the hotel service, which is perfectly tailored to this clientele, supports the attractiveness.
The tenants of the office space still available on the first and second floors of the building will also be able to benefit from this service in future - starting their working day with coffee or breakfast in the hotel restaurant, booking a conference room there, receiving their mail at the hotel reception desk
Lage:
Das Objekt befindet sich direkt am S-Bhf Grünbergallee (S9 / S45) . Die Fahrzeit zum S+U Alexanderplatz / Friedrichstr. beträgt 35 min. Der BER ist in 10 Minuten erreichbar.
The property is located directly at the Grünbergallee S-Bahn station (S9 / S45). The journey time to S+U Alexanderplatz / Friedrichstr. is 35 minutes. BER can be reached in 10 minutes.
Sonstiges:
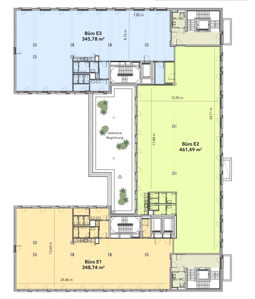
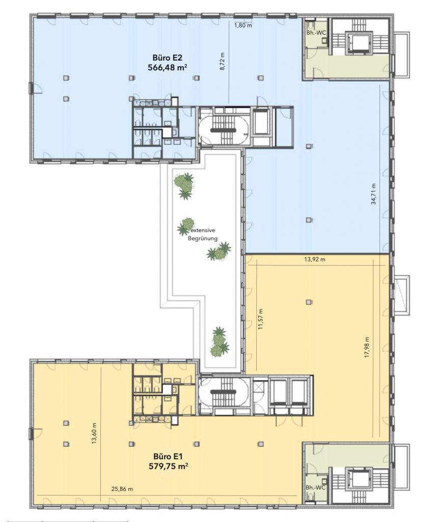
Verfügbare Flächen im Objekt:
1.Obergeschoss = 1156,00 qm / teilbar ab 345 qm
2.Obergeschoss = 1146 qm / teilbar ab 566 qm
Zur Besichtigung bieten wir Ihnen einen kostenlosen Shuttle Service mit Getränken an .
Available areas in the property:
1st floor = 1156.00 sqm / divisible from 345 sqm
2nd floor = 1146 sqm / divisible from 566 sqm
we offer you for viewings our free shuttleservice with beverage
Eckdaten
| Objektart | Büro |
| Objekttyp | Bürofläche |
| Vermarktungsart | Miete |
| Bürofläche | 2302.00 m² |
| Flächen teilbar ab | 345.00 m² |
| Nebenkosten | 4.00 € / m² |
| Mietpreis | 13.50 € / m² |
| Nutzungsart | Gewerbe |
| Etage | 1. OG |
| Objektnummer | MS4026 |
Ausstattung
- flexibel
- openspace
- Deckenhöhe 2,90
- mechanische Kühlung
- Sonnenschutz
- Glasfaser
- Videogegensprechanlage
- PKW-Stellplätze mit E-Ladefunktion
- Tiefgarage
- Paketannahme durch Hotelrezeption
- Buchung von Konferenzräumen
- Fitness
- Hotelbar
- Restaurant flexible
- openspace
- ceiling height 2.90
- mechanical cooling
- sun protection
- fiber optics
- Video intercom system
- Car parking spaces with e-charging function
- Underground parking garage
- Parcel acceptance by hotel reception
- Booking of conference rooms
- fitness center
- hotel bar
- restaurant
Weiterempfehlen:
Lage in Karte:
Service Offices am Airport BER – Shuttleservice









