Retail Space Frankfurter Allee
Objektbeschreibung:
Das Plaza Frankfurter Allee ist ein repräsentatives Gewerbe-Objekt mit vielfältig gestaltbaren Räumlichkeiten. Mit seiner zentralen Lage und dem jungen, vielfältigen Kiez in der Umgebung handelt es sich hierbei um eine der besten Adressen, um neue Ideen umzusetzen oder mit seinem Unternehmen neue Kontakte aufzubauen.
_____
The Plaza Frankfurter Allee is a prestigious commercial property with premises that can be designed in a variety of ways. With its central location and the young, diverse neighborhood in the vicinity, this is one of the best addresses for implementing new ideas or establishing new contacts with your company.
Lage:
Zentrale Lage im Berliner Stadtbezirk Friedrichshain, südöstlich des Berliner Stadtzentrums, aber dennoch durch seine optimalen Anschlüssen an Bus und Bahn bestens mit diesem verbunden.. Der U-Bahnhof Samariterstraße liegt vor der Türe, die Ring- und Straßenbahn sind zu Fuß zu erreichen - beste Bedingungen für Ihre Kunden und Mitarbeiter! Hinzu kommen ein lebendiges Umfeld, das auch bei Ihren Kunden und Partnern einen guten Eindruck hinterläßt.
_____
Centrally located in Berlin's Friedrichshain district, to the south-east of the city center, yet with excellent bus and train connections. The Samariterstraße subway station is on the doorstep, the Ring and streetcar are within walking distance - ideal conditions for your customers and employees! In addition, there is a lively environment that will also leave a good impression on your customers and partners.
Sonstiges:
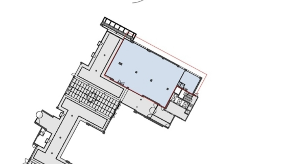
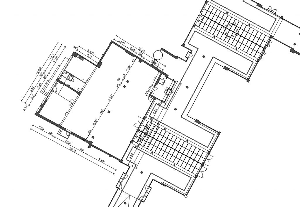
Folgende Flächen stehen zur Verfügung:
- EG Retail mit ca. 84 qm für 25 €/qm (ab 01.06.2026)
- EG Retail mit ca. 482,74 qm für 10 €/qm ( ab 01.06.2026)
Eckdaten
| Einzelhandel | Verkaufsflaeche |
| Vermarktungsart | Miete |
| Gesamtfläche | 566.05 m² |
| Verkaufsfläche | 566.05 m² |
| Nebenkosten | 5.50 € / m² |
| Mietpreis | 10.50 € / m² |
| Nutzungsart | Gewerbe |
| Baujahr | 2006 |
| Etage | Erdgeschoss |
| Verfügbarkeit | 1.7.2022 |
| Objektnummer | MS3076 |
Ausstattung
- Urban
- Flexibel
- Frequentiert
- modern
- Teeküche
- sanitär
- Datenverkabelung
Weiterempfehlen:
Lage in Karte:
Retail Space Frankfurter Allee



