Quartier Zimmer 56
Fotoleiste verschieben für mehr Bilder
Objektbeschreibung:
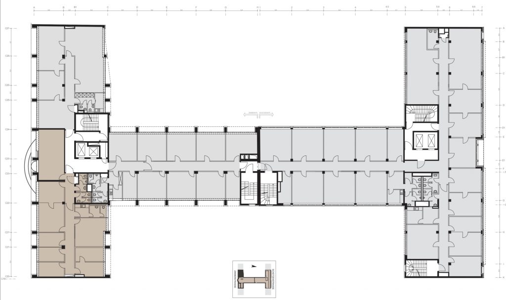
Modernes Büro- und Geschäftshaus 9 Obergeschosse, 1 Untergeschoss Fertigstellung: 1996/1997 ca. 14.000 Büroflächen ca. 1.245 m² Einzelhandels-/Ladenfläche Infrastruktur im Objekt : Empfang Postdienst Verwaltung und Gebäudetechnik vor Ort.
Modern office and commercial building 9 upper floors, 1 basement floor Completion: 1996/1997 approx. 14,000 office space approx. 1,245 m² retail/shop space Infrastructure in the property : Reception Postal service Administration and building services on site.
Lage:
Das Objekt befindet sich im Medienzentrum in Berlin-Mitte, an der unmittelbaren Grenze zum Stadtteil Kreuzberg, angrenzend an die Charlottenstraße und Markgrafenstraße. Es liegt nur wenige Gehminuten vom Checkpoint Charlie, dem Gendarmenmarkt, dem Potsdamer Platz und der Friedrichstraße entfernt. In direkter Nachbarschaft befinden sich das Axel-Springer-Haus, eine Vielzahl an Restaurants und Einkaufsmöglichkeiten sowie Kulturstätten. Die zentrale Lage des Büro- und Geschäftshauses bietet hervorragende Verkehrsanbindungen in alle Richtungen. Flughafen Tegel (U6 bis Französische Str./TXL in ca. 9 Minuten erreichbar), Flughafen Schönefeld (S9 und DB-Express, S-Bahnhof Friedrichstraße in ca. 10 Minu-ten erreichbar), City-Flughafen Tempelhof (U6 U-Bahnhof Kochstraße in 3 Gehminuten erreichbar), U2, U-Bahnhof Stadtmitte (Richtung Ruhleben und Pankow in ca. 5 Gehminuten erreichbar, in wenigen Fahrminuten erreichen Sie den Alexanderplatz), S- und Regionalbahnhof Friedrichstraße in wenigen Minuten mit der U6 ab U-Bahnhof Stadtmitte zu erreichen (mit diversen S-Bahnlinien erreichen Sie die City-West in ca. 10 sowie den Hackeschen Markt in ca. 5 Fahrminuten), Mit dem Pkw in ca. 15 Minuten in die City-West (Kurfürstendamm, Zoologischer Garten oder auf die Stadtautobahn).
The property is located in the media center in Berlin-Mitte, on the immediate border to the Kreuzberg district, adjacent to Charlottenstrasse and Markgrafenstrasse. It is only a few minutes' walk from Checkpoint Charlie, Gendarmenmarkt, Potsdamer Platz and Friedrichstrasse. The Axel Springer building, a variety of restaurants and shopping facilities as well as cultural venues are in the immediate vicinity. The central location of the office and commercial building offers excellent transport connections in all directions. Tegel Airport (U6 to Französische Str./TXL in approx. 9 minutes), Schönefeld Airport (S9 and DB-Express, Friedrichstraße S-Bahn station in approx. 10 minutes), Tempelhof City Airport (U6 subway station Kochstraße in 3 minutes on foot), U2, Stadtmitte subway station (direction Ruhleben and Pankow in approx. 5 minutes' walk, Alexanderplatz is just a few minutes' drive away), Friedrichstraße S-Bahn and regional train station just a few minutes away on the U6 from Stadtmitte subway station (various S-Bahn lines take you to City-West in approx. 10 minutes and Hackescher Markt in approx. 5 minutes), approx. 15 minutes by car to City-West (Kurfürstendamm, Zoologischer Garten or the city highway).
Sonstiges:
Folgende Flächen stehen zur Verfügung und können bei Laufzeit bis 5 Jahre für 22 €/qm angemietet werden!
- 1. OG mit ca. 272 qm ab 22 €/qm
- 2. OG mit ca. 570 qm ab 22 €/qm
- 3. OG mit ca. 314 qm ab 22 €/qm
- 3. OG mit ca. 964 qm ab 22 €/qm
- 4. OG mit ca. 250 qm ab 25 €/qm
- 4. OG mit ca. 368 qm ab 25 €/qm
- 5. OG mit ca. 314 qm ab 25 €/qm
- 8. OG mit ca. 1176 qm inkl. Terrasse
ab 25 €/qm
The following spaces are available and can be rented for up to 5 years for €22/sqm!
- 1st floor with approx. 272 sqm from 22 €/sqm
- 2nd floor with approx. 570 sqm from 22 €/sqm
- 3rd floor with approx. 314 sqm from 22 €/sqm
- 3rd floor with approx. 964 sqm from 22 €/sqm
- 4th floor with approx. 250 sqm from 25 €/sqm
- 4th floor with approx. 368 sqm from 25 €/sqm
- 5th floor with approx. 314 sqm from 25 €/sqm
- 8th floor with approx. 1176 sqm incl. terrace
from 25 €/sqm
Eckdaten
| Objektart | Büro |
| Objekttyp | Bürofläche |
| Vermarktungsart | Miete |
| Bürofläche | 4228.00 m² |
| Flächen teilbar ab | 250.00 m² |
| Nebenkosten | 4.00 € / m² |
| Mietpreis | 22.00 € / m² |
| Preis | ab 22 €/qm |
| Gäste-WC | 1 |
| Kategorie | Standard |
| Nutzungsart | Gewerbe |
| DV-Verkabelung | JA |
| Personenaufzug | JA |
| Baujahr | 1996 |
| Zustand | Neuwertig |
| Etagen Anzahl | 8 |
| Objektnummer | MS2732/1 |
Ausstattung
- Urban
- Flexibel
- Effizient
- Ausbau nach Mieterwunsch
- Aufzug
- Sonnenschutz
- Repräsentativ
- Stellplatz
- Highspeed Internet
- Teeküche
- Doppelboden Urban
- Flexible
- Efficient
- Expansion according to tenant wishes
- Elevator
- Sun protection
- Representative
- Parking space
- High-speed Internet
- Kitchenette
- Raised floor
Weiterempfehlen:
Lage in Karte:
Quartier Zimmer 56





