Office Space Moabit
Fotoleiste verschieben für mehr Bilder
Objektbeschreibung:
Das Büro-und Wohngebäude Alt-Moabit 62-63 in 1055 Berlin wurde 1911 erbaut, im Jahre 1996 aufwendig saniert und das Dachgeschoss revitalisiert. Dank seiner historischen Fassadengestaltung, passt es sich sehr gut in den bestehenden Gebäudebestand ein. Die Vorderseite an der Straße Alt-Moabit ist mit reichen Stuckverzierungen und Loggien ausgestattet. Die Fassaden im Innenhof bestehen aus farbig glasierten Fliesen. Das Gebäudeensemble mit dem Namen Spree-Etagenhof besteht aus 6 Etagen mit einem Vorderhaus, einem Seitenflügel und einem modernen Fabrikgebäude dessen hintere Fassade direkt an der Spree gelegen ist. Die technische Ausstattung des Gebäudes entspricht dem aktuellen Standard.
The office and residential building was built in 1911, extensively renovated in 1996 and the attic revitalized. Thanks to its historic facade design, it fits very well into the existing building stock. The front side on the street Alt-Moabit has rich stucco decorations and loggias. The facades in the inner courtyard consist of colored glazed tiles. The building ensemble named Spree-Etagenhof consists of 6 floors with a front building, a side wing and a modern factory building whose rear facade is located directly on the Spree River. The technical equipment of the building corresponds to the current standard.
Lage:
Der Stadtteil Moabit ist Teil des Bezirks Tiergarten / Mitte und liegt im Westen von Berlin. In diesem zentralen Stadtteil befinden sich u.a. zahlreiche gerichtliche Institutionen, die Akademie der Künste, die Technische Fachhochschule und die Technische Universität. Aufschwung wird Moabit auch weiterhin und insbesondere durch die neue Stadtentwicklung im Bereich an der Heidestraße erfahren. Mit seinen rund 40 ha wird hier in den nächsten Jahren ein neuer Standorte für Kultur, Forschung, Büros und Wohnungen entwickelt. Auch der Westhafen ist Zeuge eines erstaunlichen Aufschwungs und wird weiter für den Containerverkehr ausgebaut. Der Spree-Etagenhof ist in der Nähe zur Gotzkowskybrücke und südwestlich der Turmstraße, welche als regionale Shoppingzone bekannt ist, gelegen und somit günstig an die öffentlichen Verkehrsmittel angeschlossen. Viele Bus-und U-Bahnlinien sind in der Nähe erreichbar, um eine schnelle Verbindung in alle Teile der Stadt zu gewährleisten.
The district Moabit is part of the district Tiergarten / Mitte and is located in the west of Berlin. This central district is home to numerous judicial institutions, the Academy of Arts, the Technical University of Applied Sciences and the Technical University, among others. Moabit will continue to experience an upswing, especially due to the new urban development in the area along Heidestraße. With its approximately 40 hectares, a new location for culture, research, offices and apartments will be developed here in the next few years. The Westhafen is also witnessing an amazing upswing and is being further developed for container traffic. The Spree-Etagenhof is located close to the Gotzkowsky Bridge and southwest of Turmstrasse, which is known as a regional shopping zone, and is therefore conveniently connected to public transportation. Many bus and subway lines are accessible nearby to ensure quick connections to all parts of the city.
Sonstiges:
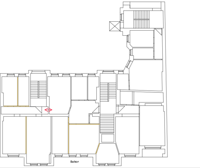
Verfügbare Flächen im Objekt:
ME 1 Loft 1. OG Büro ca. 419 m² ab 14,50 €/m² 3,50 €/m² kurzfristig
ME 2 Loft 4. OG Büro ca. 437 m² ab 14,50 €/m² 3,50 €/m² kurzfristig
ME 5 Loft 5. OG Büro ca. 428 m² ab 14,50 €/m² 3,50 €/m² kurzfristig
ME 5 VH (Dachterrasse) 5. OG Büro ca. 321 m² ab 14,50 €/m² 3,50 €/m² kurzfristig
zusätzlich Galerieebene 6. OG Galerie ca. 58 m² ab 5,00 €/m² 1,50 €/m² kurzfristig
Available areas in the property:
ME 1 Loft 1st floor office approx. 419 m² from € 14.50/m² € 3.50/m² short term
ME 2 Loft 4th floor office approx. 437 m² from € 14.50/m² € 3.50/m² short term
ME 5 Loft 5th floor office approx. 428 m² from € 14.50/m² € 3.50/m² short term
ME 5 VH (roof terrace) 5th floor office approx. 321 m² from € 14.50/m² € 3.50/m² short term
additional gallery level 6th floor gallery approx. 58 m² from € 5.00/m² € 1.50/m² short-term
Eckdaten
| Objektart | Büro |
| Objekttyp | Bürofläche |
| Vermarktungsart | Miete |
| Bürofläche | 1663.50 m² |
| Flächen teilbar ab | 321.00 m² |
| Mietpreis | 14.50 € / m² |
| Gäste-WC | 1 |
| Kategorie | Gehoben |
| Nutzungsart | Gewerbe |
| Zentralheizung | JA |
| DV-Verkabelung | JA |
| Personenaufzug | JA |
| Keller | JA |
| Baujahr | 1922 |
| Zustand | Gepflegt |
| Primärenergieträger | Fernwärme |
| Etage | 1. OG |
| Etagen Anzahl | 5 |
| Verfügbarkeit | Sofort |
| Objektnummer | MS4878 |
Ausstattung
- Empfang
- Konferenzraum
- Großraumbüro
- Serverraum
- CAT
- Fernwärme
- Archiv- und Lagerflächen
- Teeküche
- Urban
- Flexible
- XXXXXXXXXX
- Reception
- Conference room
- Open plan office
- Server room
- CAT
- District heating
- Archive and storage space
- Kitchenette
- Urban
- Flexible
Weiterempfehlen:
Lage in Karte:
Office Space Moabit















