Office Prenzlauer Berg
Fotoleiste verschieben für mehr Bilder
Objektbeschreibung:
Büro Greifswalder Straße 154-156 in 10409 Berlin
Der Altbau des Goldpunkt-Hauses ist seit 1900 fester Bestandteil vom Prenzlauer-Berg.Das ehmalige Gebäude der Schuhfabrik Goldpunkt war von Anfang an ein charakteristisches Merkmal der historisch geprägten Gegend.1997 wurde der Altbau mit seiner prägnanten Klinkerfassade komplett saniert.Seitdem wird das Gebäude mit den hohen Decken und den großen Fenstern als Büroobjekt genutzt.So entstanden Flächen mit klassischem Loftcharakter und zeitgemäßem Bürokomfort.Die Etagen sind durch 4 Aufgänge mit 4 Aufzugsanlagen erschlossen. Die Fläche befindet sich im strassenseitigen Neubau des Goldpunktareals, welcher 2002 errichtet wurde.
The old Goldpunkt building has been an integral part of Prenzlauer Berg since 1900.The former Goldpunkt shoe factory building has been a characteristic feature of the historic area from the very beginning.The old building with its striking clinker brick façade was completely renovated in 1997.Since then, the building with its high ceilings and large windows has been used as an office property.This has created space with a classic loft character and contemporary office comfort.The floors are accessed via 4 staircases with 4 elevator systems.
Lage:
S-Bahn , Tram und Bus fußläufig bequem und schnell zu erreichen. Zum Flughafen Berlin-Tegel benötigen Sie nur ca. 20 min, bis nach Berlin-Schönefeld ca. 30 min.Der Hauptbahnhof ist in ca. 15 min erreicht.
The S-Bahn, streetcar and bus are within easy walking distance and you only need about 20 minutes to Berlin-Tegel Airport and about 30 minutes to Berlin-Schönefeld and the main train station is about 15 minutes away.
Sonstiges:
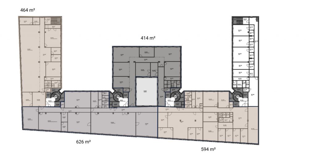
Die Fläche befindet sich im 3.Obergeschoss und verfügt über 2098 qm.
Teilungsvarianten = 414 qm / 464 qm / 594 qm / 626 qm
Eckdaten
| Objektart | Büro |
| Objekttyp | Loft / Atelier |
| Vermarktungsart | Miete |
| Bürofläche | 2098.00 m² |
| Flächen teilbar ab | 414.00 m² |
| Nebenkosten | 4.00 € / m² |
| Mietpreis | 19.00 € / m² |
| Gäste-WC | 1 |
| Kategorie | Gehoben |
| Nutzungsart | Gewerbe |
| DV-Verkabelung | JA |
| Personenaufzug | JA |
| Baujahr | 1900 |
| Zustand | Gepflegt |
| Energiepass Art | Bedarf |
| Energiepass gültig bis | 31.03.2027 |
| Primärenergieträger | Elektro |
| Etage | 3. OG |
| Objektnummer | MS4416 |
Ausstattung
- Urban
- Flexibel
- Effizient
- Ausbau nach Mieterwunsch
- Openspace
- Aufzug
- Repräsentativ
- Stellplatz
- Highspeed Internet
- Teeküche
- CAT 7 Verkabelung
- Hausmeisterdienst 24/7
- xxxxxxxxxxxxxxx
- Urban
- Flexible
- Efficient
- Expansion according to tenant requirements
- Open space
- Elevator
- Representative
- Parking space
- High-speed Internet
- Kitchenette
- CAT 7 cabling
Weiterempfehlen:
Lage in Karte:
Office Prenzlauer Berg



















