Office Potsdamer Straße
Fotoleiste verschieben für mehr Bilder
Objektbeschreibung:
Dieses historische, denkmalgeschützte Gebäude beeindruckt mit
seiner charakteristischen Architektur des frühen 20 Jahrhunderts.
Trotz des historischen Flairs, dass dieses Objekt ausstrahlt, ist es dank
umsichtiger Renovierungen auf dem Stand eines modernen Büros.
Noch dazu der repräsentative Eingangsbereich und der großzügige
Innenhof mit Blick auf den Kleistpark
This historic, listed building impresses with its characteristic
its characteristic early 20th century architecture.
Despite the historical flair that this property exudes, it is now a modern office thanks to
modern office thanks to careful renovations.
In addition, the prestigious entrance area and the spacious
courtyard with a view of Kleistpark make the building a real gem.
a real gem.machen das Gebäude zu einem
echten Schmuckstück.
Lage:
Die Potsdamerstraße 188 befindet sich
in einer Top-Lage mitten im Bezirk
Schöneberg. Das Objekt besitzt eine
ausgezeichnete Verkehrsanbindung. So
ist die U-Bahnstation „Kleistpark“ mit der
Linie U7 und den Buslinien M85 und
M48 direkt ums Eck und auch die B1,
einer der Hauptverkehrsadern, liegt
direkt vor dem Gebäude.
Umgeben von beliebten, kulturellen und
historischen Hotspots ist die
Potsdamerstraße ein belebter Ort. Parks,
wie der Kleistpark, runden den Standort
ab. Eine Vielzahl von Restaurants und
Cafés, welche in nur wenigen
Gehminuten zu erreichen sind, bieten
ein kulinarisches Erlebnis.
Potsdamerstrasse 188 is situated in a
in a prime location in the middle of the
Schöneberg district. The property has excellent
excellent transport connections. Thus
the subway station "Kleistpark" with the
line U7 and the bus lines M85 and
M48 bus lines are just around the corner and the B1,
one of the main traffic arteries, is
directly in front of the building.
Surrounded by popular, cultural and historical
cultural and historical hotspots
Potsdamerstrasse is a lively place. Parks,
like Kleistpark, round off the location.
the location. A variety of restaurants and cafés
cafés, which are only a few
are only a few minutes' walk away and offer
a culinary experience.
Sonstiges:
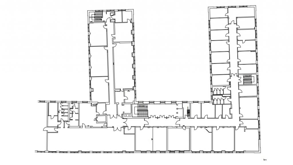
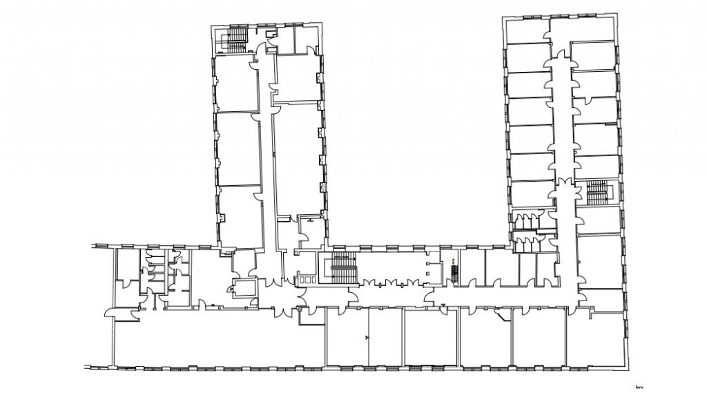
Folgende Flächen stehen zur Verfügung:
- EG mit ca. 1440 qm, Teilbar ab 686 qm für 18 €/qm
- 1. OG mit ca. 1639 qm, Teilbar ab 787 qm für 20 €/qm
- 2. OG mit ca. 1670 qm, Teilbar ab 827 qm für 20 €/qm
- 3. OG mit ca. 375 qm für 20 €/qm
- 5. OG mit ca. 1730 qm für 20 €/qm
- 6. OG mit ca. 1711 qm für 20 €/qm
The following areas are available:
- Ground floor with approx. 1440 sqm, divisible from 686 sqm for 18 €/sqm
- 1st floor with approx. 1639 sqm, divisible from 787 sqm for 20 €/sqm
- 2nd floor with approx. 1670 sqm, dividable from 827 sqm for 20 €/sqm
- 3rd floor with approx. 375 sqm for 20 €/sqm
- 5th floor with approx. 1730 sqm for 20 €/sqm
- 6th floor with approx. 1711 sqm for 20 €/sqm
Die Immobiliensuche mit der Kompetenz für Berlin !
Finden sie weitere Flächen in Berlin auf unserer Homepage www.morespace.de/immobilienangebote
Für die Richtigkleit der Angaben übernehmen wir keine Gewähr bzw. Haftung. Alle Informationen wurden uns vom Eigentümer zur Verfügung gestellt.
The real estate search with expertise for Berlin!
Find more spaces in Berlin on our homepage www.morespace.de/immobilienangebote
We accept no responsibility or liability for the accuracy of the information provided. All information was provided to us by the owner.
Eckdaten
| Objektart | Büro |
| Objekttyp | Bürofläche |
| Vermarktungsart | Miete |
| Bürofläche | 8565.00 m² |
| Flächen teilbar ab | 375.00 m² |
| Nebenkosten | 4.00 € / m² |
| Heizkosten enthalten | JA |
| Preis | ab 18 €/qm |
| Gäste-WC | 1 |
| Kategorie | Standard |
| Nutzungsart | Gewerbe |
| Zentralheizung | JA |
| DV-Verkabelung | JA |
| Personenaufzug | JA |
| Abstellraum | 1 |
| Zustand | Saniert |
| Verbrauchswert | 263.00 |
| Energiepass Art | Verbrauchsausweis |
| Energiepass gültig bis | 31.05.2035 |
| Primärenergieträger | Gas |
| Objektnummer | MS4775 |
Ausstattung
- Denkmalgeschützter Eingangsbereich
- Großer grüner Innenhof
- Stellplätze
- 6 Etagen
- Fahrstühle
- Lastenaufzug
- CAT-7 Verkabelung
- Archivfläche
- Bodenbelag nach Mieterwunsch
- Hohe Decken
- Außenanliegender Sonnenschutz
- Einbauküche
- Hochwertige Sanitäranlagen Listed entrance area
- Large green inner courtyard
- Parking spaces
- 6 floors
- Elevators
- Freight elevator
- CAT-7 cabling
- Archive space
- Flooring according to tenant's wishes
- High ceilings
- External sun protection
- Fitted kitchen
- High-quality sanitary facilities
Weiterempfehlen:
Lage in Karte:
Office Potsdamer Straße









