Office mit Spreeblick
Fotoleiste verschieben für mehr Bilder
Objektbeschreibung:
Bei dem Objekt handelt es sich um ein achtgeschossiges Büro- und Geschäftshaus, welches in den Jahren 1907 bis 1913 erbaut wurde. Auf insgesamt 18.000m² befinden sich zahlreiche Büros und Office-Lofts. Tiefgaragenstellplätze sowie Außenstellplätze sind vorhanden.
The property is an eight-storey office and commercial building, which was built between 1907 and 1913. Numerous offices and office lofts are located on a total of 18,000m². Underground parking spaces and outdoor parking spaces are available.
Lage:
Das Objekt befindet sich im Kreativbezirk Friedrichshain-Kreuzberg unweit der Warschauer Straße. In der direkten Umgebung findet man verschiedene Geschäfte und Restaurants.Das Bürohaus befindet sich unmittelbar am Spreeufer und ist nur wenige Gehminuten von der S und U-Bahnstation Warschauer Straße entfernt.
The property is located in the creative district of Friedrichshain-Kreuzberg, not far from Warschauer Straße. The office building is located directly on the banks of the Spree and is only a few minutes' walk from the Warschauer Straße S-Bahn and U-Bahn station.
Sonstiges:
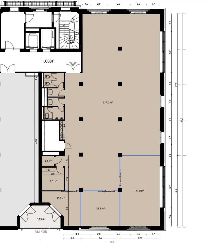
Folgende Flächen können wir Ihnen anbieten:
- 2. OG mit 207 qm
- 3. OG mit 69 qm
- 5. OG mit 378 qm
- 3. OG mit 375 qm
- 5. OG mit 382 qm -
- 6./7./8. OG Büro = 5.270 m² - Teilbar wie folgt:
- 6./7. OG mit 1.260 qm, ab 27 €/qm
- 6./7./8. OG mit 2.739 qm, ab 27 €/qm
- 6./7. OG mit 1.271 qm, ab 27 €/qm
We can offer you the following areas:
- 2nd floor with 207 sqm
- 3rd floor with 69 sqm
- 5th floor with 378 sqm
- 3rd floor with 375 sqm
- 5th floor with 382 sqm -
- 6th/7th/8th floor office = 5,270 sqm - Divisible as follows:
- 6th/7th floor with 1,260 sqm, from €27/sqm
- 6th/7th/8th floor with 2,739 sqm, from €27/sqm
- 6th/7th floor with 1,271 sqm, from €27/sqm
Eckdaten
| Objektart | Büro |
| Objekttyp | Loft / Atelier |
| Vermarktungsart | Miete |
| Bürofläche | 7118.00 m² |
| Flächen teilbar ab | 69.00 m² |
| Nebenkosten | 4.00 € / m² |
| Mietpreis | 25.00 € / m² |
| Kategorie | Gehoben |
| Nutzungsart | Gewerbe |
| DV-Verkabelung | JA |
| Personenaufzug | JA |
| Baujahr | 1913 |
| Zustand | Renoviert |
| Etage | 2. OG |
| Verfügbarkeit | Sofort |
| Objektnummer | MS1764 |
Ausstattung
- Openspace
- Gallery
- Balkon
- Spreeblick
- Stellplatz
- zwei Ebenen
- Datenverkabelung
- Doppelboden
- Teeküche Openspace
- Gallery
- Balcony
- View of the Spree
- parking space
- two levels
- data cabling
- raised floor
- kitchenette
Weiterempfehlen:
Lage in Karte:
Office mit Spreeblick















