Office im ehemaligen Hotel ,, Danziger Hof”
Fotoleiste verschieben für mehr Bilder
Objektbeschreibung:
Bei dem Objekt handelt es sich um das ehemalige Hotel "Danziger Hof", welches aufwendig zu modernen Büroflächen umgebaut wurde. Heute bieten die Flächen höchsten Bürokomfort und neuste Technik. Über das repräsentative Treppenhaus gelangen die Mieter über den zentralen Treppenaufgang oder den Aufzug zu den einzelnen Mietbereichen. Die Grundrisse sind flexibel gestaltbar und können alle Formen der modernen Büronutzung darstellen (Großraum-, Gruppen- und Einzelbüros). Durch die hohen Decken und die großen Fenster kommen offene Raumstrukturen besonders gut zur Geltung. Durch die massive Bauweise ist das Objekt sehr gut gegen Temperaturschwankungen isoliert und man musste lediglich das Dachgeschoss klimatisieren. Auf dem Hof befinden sich zahlreiche Fahrradstellplätze und in der angrenzenden Tiefgarage können Stellplätze angemietet werden. Im UG befinden sich zudem sanierte Kellerflächen, welche zusätzlich angemietet werden können.
The property is the former "Danziger Hof" hotel, which has been extensively converted into modern office space. Today, the space offers maximum office comfort and the latest technology. Tenants can access the individual rental areas via the representative staircase or the elevator. The floor plans are flexible and can accommodate all forms of modern office use (open-plan, group and individual offices). The high ceilings and large windows make open room structures particularly effective. Thanks to the solid construction, the property is very well insulated against temperature fluctuations and only the top floor had to be air-conditioned. There are numerous bicycle parking spaces in the courtyard and parking spaces can be rented in the adjacent underground garage. There are also renovated cellar areas in the basement, which can also be rented.
Lage:
Die Bundesministerien für Wirtschaft und Verkehr, die Charité, das Naturkundemuseum, die Kunsthalle Hamburger Bahnhof und die Humboldt-Universität befinden sich im Umfeld. Mit dem U-Bahnhof Zinnowitzer Straße (U6), dem S-Bahnhof Nordbahnhof (S1/S2) sowie Straßenbahn- und Buslinien sind die "edison höfe" bestens erreichbar. Die Fahrtzeit zum Flughafen Tempelhof beträgt mit dem PKW 15 Minuten, der neue Zentralbahnhof ist binnen weinger Minuten zu Fuß zu erreichen.
The Federal Ministries of Economics and Transport, the Charité hospital, the Natural History Museum, the Hamburger Bahnhof art gallery and Humboldt University are all nearby. The Zinnowitzer Straße subway station (U6), the Nordbahnhof S-Bahn station (S1/S2) as well as streetcar and bus lines make the "edison höfe" easily accessible. The journey time to Tempelhof Airport is 15 minutes by car and the new central station is just a few minutes' walk away.
Sonstiges:
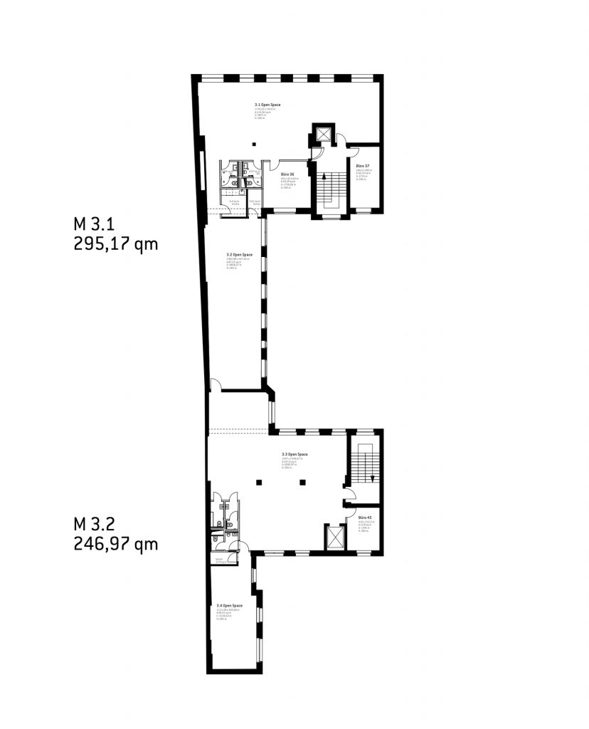
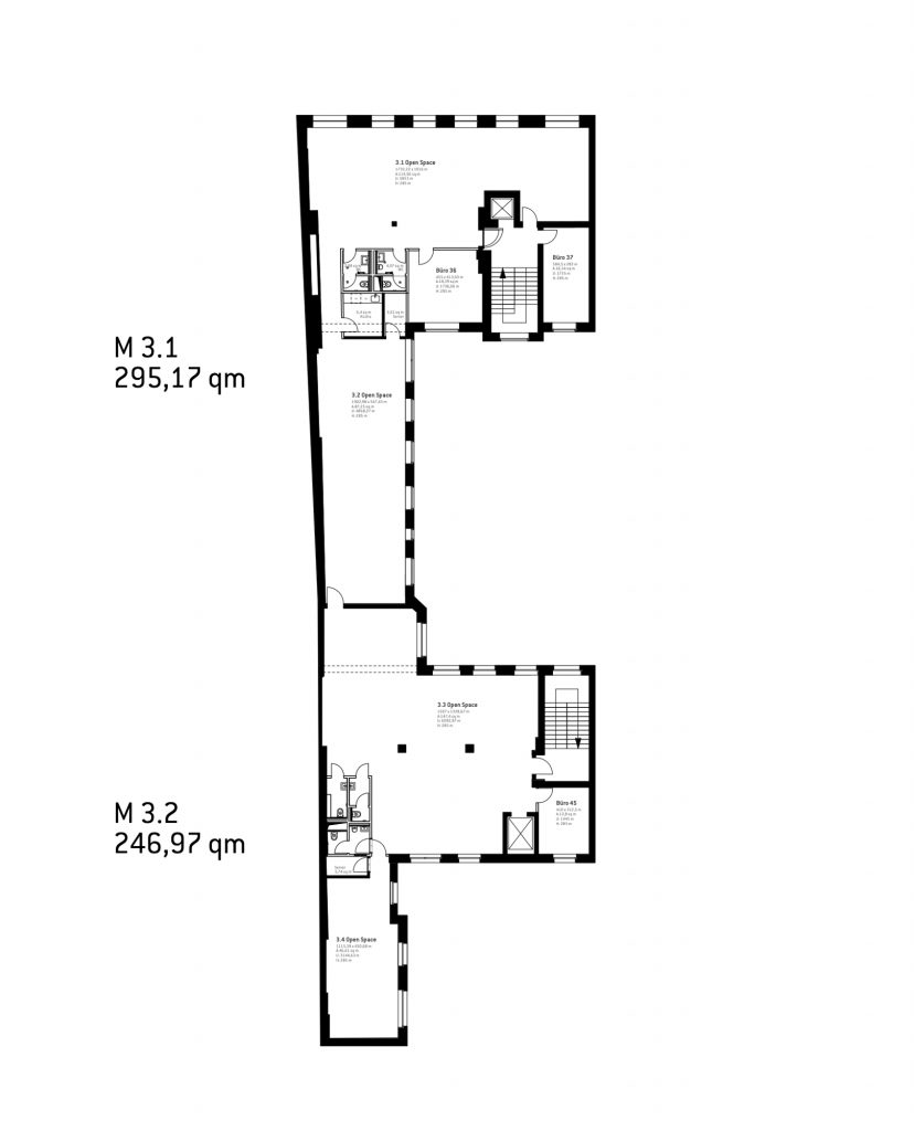
Folgende Fläche können wir ab sofort angemietet werden:
EG, HH: 200,49 m²
1. OG, HH: 245,72 m²
DG li, VH-SF: 280,64 m²
Insgesamt stehen 470 qm Lagerflächen im Keller zur Verfügung. Der Mietpreis beträgt 7,00 €/qm .
The following space can be rented with immediate effect:
Ground floor, HH: 200.49 m²
1st floor, HH: 245.72 m²
DG left, VH-SF: 280.64 m²
A total of 470 sqm of storage space is available in the basement. The rent is € 7.00/sqm.
Eckdaten
| Objektart | Büro |
| Objekttyp | Loft / Atelier |
| Vermarktungsart | Miete |
| Bürofläche | 725.00 m² |
| Flächen teilbar ab | 200.00 m² |
| Nebenkosten | 4.00 € / m² |
| Kaution | 3 Monatsmieten |
| Mietpreis | 28.00 € / m² |
| Stellplatzmiete | 120.00 € |
| Stellplatz | 5 |
| Kategorie | Gehoben |
| Nutzungsart | Gewerbe |
| Personenaufzug | JA |
| Keller | JA |
| Zustand | Saniert |
| Etage | Erdgeschoss |
| Objektnummer | MS3628 |
Ausstattung
- Barrierefrei
- Fahrradstellplätze auf dem Hof
- Aufzug
- sanierte Bäder
- klimatisiertes Dachgeschoss
- Epoxidharzboden
- Glasfaseranschluss
- Tiefgaragenstellplätze
- digitales Schließsystem
- hohe Decken
- helle Räume
- XXXXXXXXXXXX
- Barrier-free
- Bicycle parking in the courtyard
- elevator
- renovated bathrooms
- Air-conditioned attic
- Epoxy resin floor
- fiber optic connection
- underground parking spaces
- digital locking system
- high ceilings
- bright rooms
- anschlussfertige Küchenzone
Weiterempfehlen:
Lage in Karte:
Office im ehemaligen Hotel ,, Danziger Hof”













