Office im E-Werk Berlin
Fotoleiste verschieben für mehr Bilder
Objektbeschreibung:
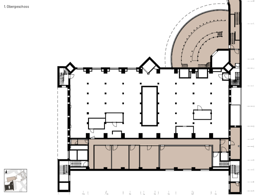
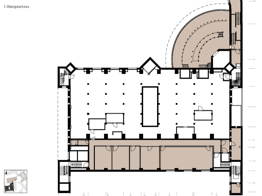
Der Komplex wurde 1924/1928 nach Plänen des Architekten Hans Heinrich Müller erbaut und nach den Plänen des Berliner Architekturbüros HSH bis 2005 zu modernen Bürogebäuden mit historischem Charakter umgebaut. Die Gebäudekomplexe C und F heben sich durch ihre zum Teil traditionellen Ziegelfassaden hervor. Beide Bürogebäude verfügen über jeweils sechs Vollgeschosse und sind durch einen internen Verbindungsgang miteinander verbunden (Gebäudeteil D). Der Zugang zum Bürogebäude F erfolgt über einen attraktiven Lounge-Bereich, welcher sich im Gebäudeteil E befindet. Dieser Gebäudeteil beherbergt auch das alte E-Schaltwerk, welches für Lesungen sowie Auditorien nutzbar ist. Darüber hinaus verfügen die Erdgeschosse der Gebäudeteile C und F über Eventhallen sowie das Dachgeschoss im Gebäudeteil F über eine exklusive Lounge im Dachgeschoss, die über das Eventunternehmen ewerk buchbar sind.
The complex was built in 1924/1928 according to plans by the architect Hans Heinrich Müller and was converted into modern office buildings with a historical character according to the plans of the Berlin architectural firm HSH by 2005. Building complexes C and F stand out due to their partly traditional brick façades. Both office buildings each have six full storeys and are connected by an internal corridor (building section D). Access to office building F is via an attractive lounge area, which is located in building section E. This part of the building also houses the old E-Schaltwerk, which can be used for readings and auditoriums. In addition, the first floors of building sections C and F have event halls and the top floor of building section F has an exclusive lounge on the top floor, which can be booked through the event company ewerk.
Lage:
Der Wohn- und Gebäudekomplex befindet sich in der historischen Mitte von Berlin. Politik und Kultur befinden sich in unmittelbarer Nachbarschaft, ebenso wie die exclusiven Shops in der Friedrichstraße. Der Gendarmenmarkt, viele Ministerien sowie die U-Bahnhöfe Stadtmitte, Mohrenstraße und Leipziger Platz sind ebenso in wenigen Minuten fußläufig erreichbar.
The residential and building complex is located in the historic center of Berlin. Politics and culture are in the immediate vicinity, as are the exclusive stores in Friedrichstrasse. The Gendarmenmarkt, many ministries and the Stadtmitte, Mohrenstraße and Leipziger Platz subway stations are also just a few minutes' walk away.
Sonstiges:
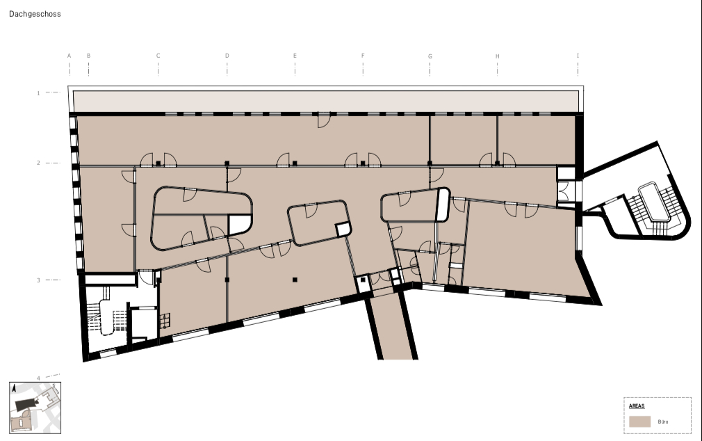
Folgende Flächen stehen zur Verfügung:
Gebäude C
- 1. OG mit 783 qm
- 2. OG mit 873 qm
- 3. OG mit 873 qm
- 4. OG mit 767 qm
The following areas are available:
Building C
- 1st floor with 783 sqm
- 2nd floor with 873 sqm
- 3rd floor with 873 sqm
- 4th floor with 767 sqm
Eckdaten
| Objektart | Büro |
| Objekttyp | Bürohaus |
| Vermarktungsart | Miete |
| Bürofläche | 3296.00 m² |
| Flächen teilbar ab | 767.00 m² |
| Nebenkosten | 4.00 € / m² |
| Heizkosten enthalten | JA |
| Mietpreis | 25.00 € / m² |
| Preis | ab 25 €/qm |
| Gäste-WC | 1 |
| Kategorie | Gehoben |
| Nutzungsart | Gewerbe |
| Zentralheizung | JA |
| DV-Verkabelung | JA |
| Personenaufzug | JA |
| Keller | JA |
| Baujahr | 1889 |
| Zustand | Saniert |
| Verbrauchswert | 131.00 |
| Energiepass Art | Verbrauchsausweis |
| Primärenergieträger | Gas |
| Etagen Anzahl | 6 |
| Objektnummer | MS3296 |
Ausstattung
- Denkmal
- Sprinkler
- Betonböden
- Industrial
- Aufzüge
- Lichthof
- Eventflächen
- Fahrradstellpatz Monument
- Sprinklers
- Concrete floors
- industrial
- Elevators
- Atrium
- Event areas
- Bicycle parking
Weiterempfehlen:
Lage in Karte:
Office im E-Werk Berlin






















