Office Friedrichshain Oberbaum City
Fotoleiste verschieben für mehr Bilder
Objektbeschreibung:
Die unter Denkmalschutz stehendenden Fabrikgebäude wurden entkernt und zu modernen Dienstleistungs- und Gewerbebauten umgestaltet und aufwändig saniert. Gegenwärtig prägen sie auf Grund ihrer Erscheinung und der modernen Innenräumen den Charme und den Charakter der Oberbaum City. Die mieterfreundlichen Büroflächen zeichnen sich durch hohe Räume, flexible gestaltbare Grundrisse sowie einer hochwertigen Ausstattung aus.
Nach umfangreichen Restaurierungsarbeiten zeigt sich die im Jugendstil errichtete Fassade heute wieder in neuem Glanz. Sowohl die vier Obergeschosse als auch das Dachgeschoss sind als Büroflächen vorgesehen. Während die Flächen im Erdgeschoss als Einzelhandels- Gastronomie- und Ausstellungsflächen gemietet werden können.
The listed factory buildings were gutted and converted into modern service and commercial buildings and extensively renovated. At present, their appearance and modern interiors define the charm and character of Oberbaum City. The tenant-friendly office spaces are characterized by high ceilings, flexible floor plans and high-quality furnishings.
After extensive restoration work, the Art Nouveau façade now appears in new splendor. Both the four upper floors and the top floor are intended as office space. While the spaces on the first floor can be rented as retail, gastronomy and exhibition areas.
Lage:
Die Oberbaum City liegt im Bezirk Friedrichshain. Die Verkehrsanbindung ist durch den U-Bahnhof bzw. S-Bahnhof Warschauer Straße, diversen Tramm- und Buslinien und der Verkehrsader Stralauer Allee gewährleistet.
Der Berliner Ostbahnhof mit IC- und ICE-Anbindung ist nur eine S-Bahn-Station oder ca. fünf Autominuten entfernt. International ist die Oberbaum City über den BER Schönefeld angebunden.
Oberbaum City is located in the Friedrichshain district. The transport connection is guaranteed by the subway station or S-Bahn station Warschauer Straße, various streetcar and bus lines and the traffic artery Stralauer Allee.
The Berlin Ostbahnhof with IC and ICE connections is only one S-Bahn station or about five minutes away by car. Internationally, Oberbaum City is connected via BER Schönefeld.
Sonstiges:
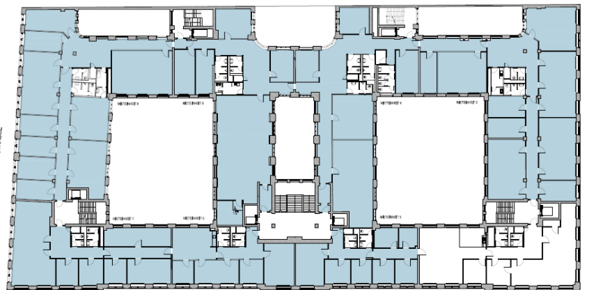
Verfügbare Flächen im Objekt
- HP mit ca. 424 qm ab 27 €/qm
- 1. OG = 2.006 qm ab 27 €/qm (Teilbar ab 395 qm)
- 2. OG = 2.777 qm ab 27 €/qm
(Teilbar ab 1000 qm)
- 4.OG = 910 qm ab 27 €/qm
- 4.OG = 915 qm ab 27 €/qm
- 5. OG = 2.297 qm ab 27 €/qm,
(Teilbar ab 264 qm)
Available areas in the property
- HP with approx. 424 sqm from 27 €/sqm
- 1st floor = 2,006 sqm from 27 €/sqm (divisible from 395 sqm)
- 2nd floor = 2,777 sqm from 27 €/sqm
(divisible from 1000 sqm)
- 4th floor = 910 sqm from 27 €/sqm
- 4th floor = 915 sqm from 27 €/sqm
- 5th floor = 2,297 sqm from 27 €/sqm,
(divisible from 264 sqm)
Eckdaten
| Objektart | Büro |
| Objekttyp | Bürofläche |
| Vermarktungsart | Miete |
| Bürofläche | 9567.00 m² |
| Flächen teilbar ab | 264.00 m² |
| Nebenkosten | 4.00 € / m² |
| Preis | ab 27 €/qm |
| Stellplatzmiete | 130.00 € |
| Stellplatz | 11 |
| Gäste-WC | 1 |
| Kategorie | Gehoben |
| Nutzungsart | Gewerbe |
| DV-Verkabelung | JA |
| Personenaufzug | JA |
| Baujahr | 1914 |
| Zustand | Gepflegt |
| Verfügbarkeit | Sofort |
| Objektnummer | MS3320 |
Ausstattung
- Urban
- Flexible
- Openspace
- Sonnenschutz
- Aufzug
- Tiefgarage
- Fahrradstellplätze
- Restaurants
- Hohlraumboden
- Glasfaser Urban
- Flexible
- Openspace
- Sunshade
- Elevator
- Underground parking
- Bicycle parking
- Restaurants
- cavity floor
- Fiberglass
Weiterempfehlen:
Lage in Karte:
Office Friedrichshain Oberbaum City





