New Space im Kiez
Fotoleiste verschieben für mehr Bilder
Objektbeschreibung:
Oranienstraße 183 in 10999 Berlin
Die Oranienhöfe sind ein Gebäudekomplex aus dem Jahre 1908und befinden sich auf dem Grundstück Oranienstraße 183/184, in 10999 Berlin-Kreuzberg. Die Bebauung der Oranienstraße 183 besteht aus einem gründerzeitlichen Vorderhaus mit Seitenflügel (Vorwiegend Wohnzweck) mit zwei hinter dem ersten Hof angeordneten Gewerbehöfen. (überwiegend gemischt gewerblich genutzt). Die Gesamtanlage steht unter Denkmal sowie Ensembleschutz und die Objekte stehen unter Baudenkmalschutz.
Die Erschließung der Gewerbehöfe erfolgt über die Hofdurchfahrt von der Oranienstraße.
The Oranienhöfe are a building complex dating from 1908 and are located at Oranienstraße 183/184 in 10999 Berlin-Kreuzberg. The development at Oranienstraße 183 consists of a Wilhelminian-style front building with a side wing (predominantly residential) with two commercial courtyards located behind the first courtyard. (predominantly mixed commercial use). The entire complex is a listed building and a protected ensemble, and the properties are listed buildings.
The commercial courtyards are accessed via the courtyard passageway from Oranienstraße.
Lage:
Berlin Kreuzberg! Die Oranienstraße verbindet den Moritzplatz mit der Skalitzer Straße . Der U-Bahnhof Kottbusser Tor ist fussläufig erreichbar. Diverse Läden und Restaurant prägen das Bild dieser lebendigen Straße. Das SO36 und der Mariannenplatz befinden sich im direkten Umfeld.
Berlin Kreuzberg! Oranienstraße connects Moritzplatz with Skalitzer Straße . The Kottbusser Tor subway station is within walking distance. Various stores and restaurants characterize this lively street. SO36 and Mariannenplatz are in the immediate vicinity.
Sonstiges:
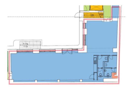
Folgende Flächen stehen zur Verfügung:
- EG mit ca, 145 qm ab 24,50 €/qm
- 1. OG mit ca. 156 qm ab 25 €/qm
- 2.OG mit ca, 160 qm ab 18 €/qm
- 4. OG mit ca. 159 qm ab 23,50 €/qm
The following areas are available:
- Ground floor with approx. 145 sqm from € 24.50/sqm
- 1st floor with approx. 156 sqm from 25 €/sqm
- 2nd floor with approx. 160 sqm from 18 €/sqm
- 4th floor with approx. 159 sqm from 23.50 €/sqm
Eckdaten
| Objektart | Büro |
| Objekttyp | Loft / Atelier |
| Vermarktungsart | Miete |
| Bürofläche | 620.00 m² |
| Flächen teilbar ab | 145.00 m² |
| Nebenkosten | 4.00 € / m² |
| Heizkosten enthalten | JA |
| Kaution | 3 MM |
| Mietpreis | 18.00 € / m² |
| Preis | ab 18 €/qm |
| Nutzungsart | Gewerbe |
| Zentralheizung | JA |
| Personenaufzug | JA |
| Keller | JA |
| Zustand | Gepflegt |
| Objektnummer | MS4304 |
Ausstattung
- Urban
- Erstbezug nach Sanierung
- Openspace
- Aufzug
- Konferenz
- gespachtelte Böden
- Kappendecke
- historische Aufgänge und Bauelemente
- Beleuchtungssystem
- Einbauküche
- Zentralheizung Urban
- First occupancy after refurbishment
- open space
- elevator
- conference
- Spackled floors
- Capped ceiling
- Historic staircases and building elements
- lighting system
- fitted kitchen
- central heating
Weiterempfehlen:
Lage in Karte:
New Space im Kiez












