New Office Westend
Fotoleiste verschieben für mehr Bilder
Objektbeschreibung:
Willkommen in diesem zeitlosen Bürohaus, erbaut im Jahr 1963, direkt an der Heerstraße im begehrten Bezirk Charlottenburg. Diese bedeutende Verkehrsachse im Westen Berlins bietet eine hervorragende Anbindung und zeichnet sich durch die unmittelbare Nähe zur Messe Berlin und dem ICC aus.
Profitieren Sie von der erstklassigen Lage im Bezirk Charlottenburg, unmittelbar in der Nähe zur Messe Berlin und dem Internationalen Congress Centrum (ICC). Eine perfekte Adresse für geschäftliche Aktivitäten.
Lage:
Die vorzüglichen Verkehrsanbindungen an die City West zeichnen diesen
Standort aus. Die ÖPNV-Anbindung ist mit dem S-Bahnhof Heerstraße, der U-Bahnstation Theodor-Heuss-Platz und diversen Buslinien optimal.
Zahlreiche Einkaufsmöglichkeiten und Restaurants befinden sich in unmittelbarer Umgebung.
Sonstiges:
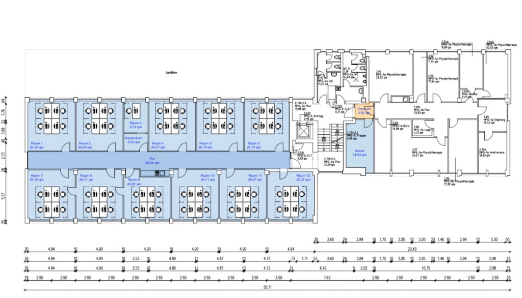
1 - 2 OG mit 802 qm Teilbar 392 qm
Eckdaten
| Objektart | Büro |
| Objekttyp | Bürofläche |
| Vermarktungsart | Miete |
| Bürofläche | 802.00 m² |
| Flächen teilbar ab | 392.00 m² |
| Nebenkosten | 3.50 € / m² |
| Kaution | 3 MM |
| Mietpreis | 17.50 € / m² |
| Stellplatzmiete | 100.00 € |
| Stellplatz | 20 |
| Gäste-WC | 1 |
| Nutzungsart | Gewerbe |
| Personenaufzug | JA |
| Baujahr | 1963 |
| Zustand | Gepflegt |
| Etage | 1. OG |
| Objektnummer | MS3948 |
Ausstattung
- Aufzug
- Teppichboden
- Kabelkanäle
- Teeküche
- Flexibel
- Sonnenschutz
- Teeküche
- Stellplätze
Weiterempfehlen:
Lage in Karte:
New Office Westend





