New Office Schöneberg
Objektbeschreibung:
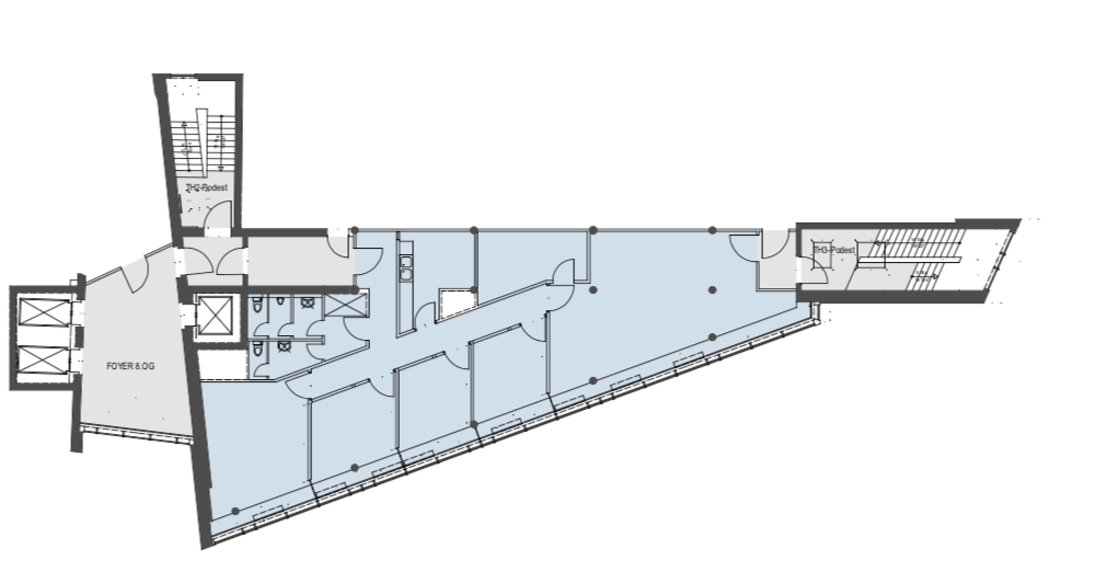
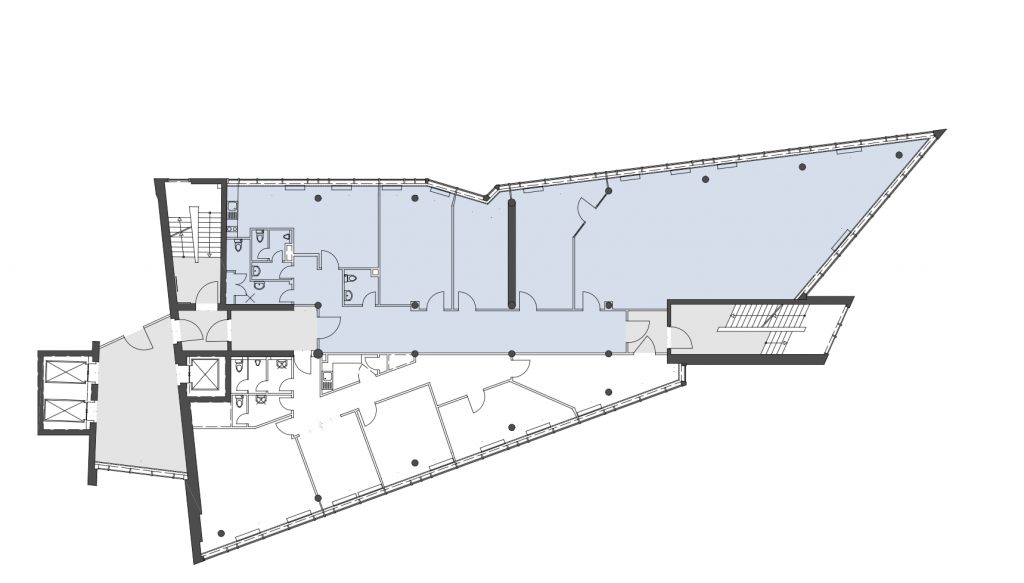
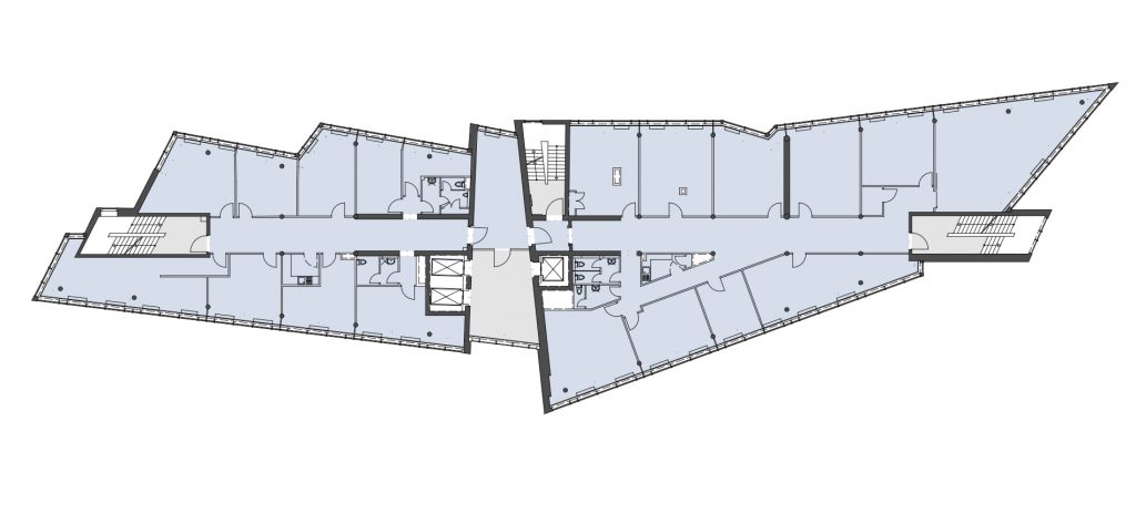
Das 8-geschossige Büro- und Geschäftshaus mit seiner attraktiven Glasfassade ist das Ergebnis eines internationalen Architektenwettbewerbs. Das Gebäude verfügt über zwei Nebenaufgänge und einen zentralen Haupteingang. Der repräsentative Eingangsbereich imponiert mit 3 modernen Aufzügen, die den Besuchern zur Verfügung stehen. Der Eyecatcher hat durch seine scharfkantige Glasfassade einen prägenden Charakter für den Innsbrucker Platz. In der 1. Etage des Gebäudes bieten wir eine hochwertige und lichtdurchflutete moderne Bürofläche an. Eine exklusive Terrasse mit ca. 105 qm ist in Planung.
Lage:
Das moderne Büro- und Geschäftshaus befindet sich direkt an der Hauptstraße im Berliner Bezirk Tempelhof-Schöneberg. Die Hauptstraße ist die alte Dorfstraße Schönebergs und die zentrale Verkehrsachse zwischen Schöneberg und Friedenau. Mit einem Fußweg von nur 3 Minuten befindet sich in unmittelbarer Nähe zum Objekt der U- und S-Bahnhof "Innsbrucker Platz". Das Gebäude genießt damit eine optimale Anbindung an den öffentlichen Nah- und Fernverkehr. Darüber hinaus existiert eine exzellente Anbindung mit dem Auto, da sich die A100 in nur 300 Meter Reichweite befindet.In einem Umkreis von 250 Metern befinden sich bereits erste Restaurants, Cafés und Einkaufsmöglichkeiten, wodurch die Wünsche des täglichen Bedarfs mühelos gedeckt werden. Auf der gegenüberliegenden Seite des modernen Gebäudes liegt der kleine Park am Innsbrucker Platz, der seinen Besuchern sehr gepflegte und schöne Grünanlagen offeriert. In 2 minütiger Entfernung zum Büro- und Geschäftshaus befindet sich dadurch direkt ein Ort der Erholung und Ruhe.Anbindung:• S+U-Bahnhof Innsbrucker Platz (U4, S41, S42, S46) - in 2 Min fußläufig erreichbar• Busbahnhof Hähnelstr. (M48, M85) - in 2 Min fußläufig erreichbar
Eckdaten
| Vermarktungsart | Miete |
| Bürofläche | 226.29 m² |
| Flächen teilbar ab | 226.29 m² |
| Nebenkosten | 4.60 € / m² |
| Mietpreis | 19.00 € / m² |
| Terrassen | 1 |
| Gäste-WC | 1 |
| Kategorie | Standard |
| Nutzungsart | Gewerbe |
| DV-Verkabelung | JA |
| Personenaufzug | JA |
| Energiepass Art | Bedarf |
| Primärenergieträger | Fernwärme |
| Etage | 8. OG |
| Objektnummer | MS3479 |
Ausstattung
- Urban
- Flexibel
- Effizient
- Ausbau nach Mieterwunsch
- Openspace
- Aufzug
- Sonnenschutz
- Terrasse
- Highspeed Internet
- Teeküche
Weiterempfehlen:
Lage in Karte:
New Office Schöneberg




