New Office in Neukölln
Fotoleiste verschieben für mehr Bilder
Objektbeschreibung:
Hohe Neun - Neuköllnische Allee 9 in 12057 Berlin
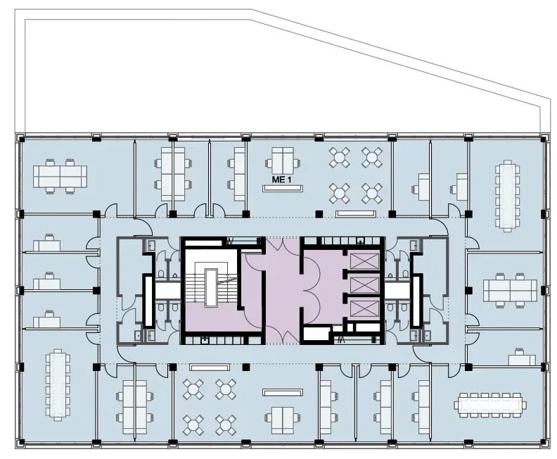
Auf 12 Etagen, mit insgesamt noch ca. 8.900 m² freier Mietfläche (ca. 820 m² im Regelgeschoss, teilbar auf ca. 410 m²) und luftigen Deckenhöhen von 3,00m befinden sich flexibel nutzbare Arbeitslandschaften, die ideale Voraussetzungen für Eigennutzer*innen oder Single- oder Multi-Tenants bieten, denn hier verbinden sich modernste Technik, exklusives Design und coole Raffinesse zu einer New Work-Location der Extraklasse. Dank vieler Fensterflächen rund um das Gebäude werden Räume von Licht geflutet und bieten fantastische Aussichten auf die dynamische Umgebung. Große Terrassenflächen eignen sich für Exklusivnutzungen und machen Meetings sowie Events in reizvoller Atmosphäre möglich.
On 12 floors, with a total of approx. 8,900 m² of available rental space (approx. 820 m² on the standard floor, divisible to approx. 410 m²) and airy ceiling heights of 3.00 m, there are flexibly usable working landscapes that offer ideal conditions for owner-occupiers or single or multi-tenants, as state-of-the-art technology, exclusive design and cool sophistication combine to create a top-class New Work location. Thanks to the many windows around the building, rooms are flooded with light and offer fantastic views of the dynamic surroundings. Large terrace areas are suitable for exclusive use and make meetings and events possible in a charming atmosphere.
Lage:
Optimale Verkehrsanbindung und unmittelbar angrenzende, charmant gewachsene Kiezstruktur — das Gewerbegebiet Südring bietet beides.
Per Bus und S-Bahn, Auto oder Fahrrad ist man schnell und einfach in dem außergewöhnlichen Quartier direkt am Wasser. Ein weiterer Pluspunkt: Von hier aus ist man in kürzester Zeit am BER!
Optimal transport connections and an immediately adjacent, charmingly grown neighborhood structure - the Südring business park offers both.
It's quick and easy to get to this extraordinary district right on the waterfront by bus, S-Bahn, car or bike. Another plus point: you can be at BER in no time from here!
Sonstiges:
Folgende Flächen stehen zur Verfügung:
- EG mit ca. 948 qm inkl. 175 m² Terrasse ab 21,50 €/qm
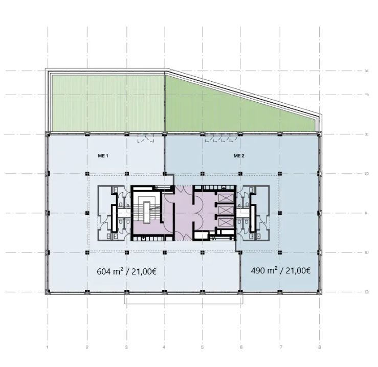
- 1. OG mit ca. 603 qm inkl. 144 m² Terrasse ab 21,50 €/qm
- 1. OG mit ca. 489 qm inkl. 155 m² Terrasse ab 21,50 €/qm
- 2. OG mit ca. 822 qm, Teilbar ab 411 qm ab 22 €/qm
- 3. OG mit ca. 822 qm, Teilbar ab 411 qm ab 22,50 €/qm
- 4. OG mit ca. 822 qm, Teilbar ab 411 qm ab 23 €/qm
- 5. OG mit ca. 822 qm, Teilbar ab 411 qm ab 23,50 €/qm
- 6. OG mit ca. 822 qm, Teilbar ab 411 qm ab 24 €/qm
- 7. OG mit ca. 822 qm, Teilbar ab 411 qm ab 24,50 €/qm
- 8. OG mit ca. 822 qm, Teilbar ab 411 qm ab 25 €/qm
- 10. OG mit ca. 573 qm, teilbar ab 280 qm mit Terrasse für 26,50 €/qm
- 11. OG mit ca. 575 qm, teilbar ab 280 qm mit Terrasse für 26,50 €/qm
The following areas are available:
- Ground floor with approx. 948 sqm incl. 175 sqm terrace from € 21.50/sqm
- 1st floor with approx. 603 sqm incl. 144 sqm terrace from € 21.50/sqm
- 1st floor with approx. 489 sqm incl. 155 sqm terrace from € 21.50/sqm
- 2nd floor with approx. 822 sqm, divisible from 411 sqm from 22 €/sqm
- 3rd floor with approx. 822 sqm, dividable from 411 sqm from € 22.50/sqm
- 4th floor with approx. 822 sqm, dividable bar from 411 sqm from 23 €/sqm
- 5th floor with approx. 822 sqm, bar from 411 sqm from 23.50 €/sqm
- 6th floor with approx. 822 sqm, dividable bar from 411 sqm from 24 €/sqm
- 7th floor with approx. 822 sqm, dividable bar from 411 sqm from 24.50 €/sqm
- 8th floor with approx. 822 sqm, dividable bar from 411 sqm from 25 €/sqm
- 10th floor with approx. 573 sqm, divisible from 280 sqm with terrace for €26.50/sqm
- 11th floor with approx. 575 sqm, divisible from 280 sqm with terrace for €26.50/sqm
Eckdaten
| Objektart | Büro |
| Objekttyp | Bürofläche |
| Vermarktungsart | Miete |
| Bürofläche | 8940.00 m² |
| Flächen teilbar ab | 411.00 m² |
| Kaution | 3 MM |
| Preis | ab 21,50 €/qm |
| Stellplatz | 20 |
| Gäste-WC | 1 |
| Kategorie | Gehoben |
| Nutzungsart | Gewerbe |
| Fernheizung | JA |
| DV-Verkabelung | JA |
| Personenaufzug | JA |
| Baujahr | 2023 |
| Zustand | Erstbezug |
| Verfügbarkeit | Nach Absprache |
| Objektnummer | MS4029 |
Ausstattung
- Hochwertige Vollklinkerfassade
- Raumhöhe von 3,00m
- Licht geflutet/ fantastische Aussicht
- Große Terrassenflächen – Exklusivnutzung möglich
- Sonnenschutz
- Elektronische Zutrittskontrolle
- High Speed Internet
- Glasfaser
- Barrierefreier
- Flexibel
- Stellplätze
- Teeküche
- Fahrradstellplätze
- E Ladestation
- LEED Gold Zertifizierung
- XXXXXXXXXXXXXXXXXX
- High-quality full brick façade
- Room height of 3.00m
- Flooded with light/ fantastic view
- Large terrace areas - exclusive use possible
- Sun protection
- Electronic access control
- High speed internet
- Fiber optics
- Barrier-free
- Flexible
- Parking spaces
- Kitchenette
- Bicycle parking spaces
- E charging station
- LEED Gold certification & ESG standard
Weiterempfehlen:
Lage in Karte:
New Office in Neukölln







