New Office Friedrichshain
Fotoleiste verschieben für mehr Bilder
Objektbeschreibung:
Das moderne, 7-geschossige Bürogebäude aus dem Jahre 1994 wird über zwei repräsentative Foyers erschlossen. Die zeitlose Fassade der markanten Eckbebauung ist mit hochwertigem Naturstein gestaltet. Sechs Büroetagen mit hochmodernen und flexiblen Büros bieten Platz für individuelle Raumkonfigurationen nach Maß. Mieter können die Büroflächen bequem über die Aufzüge erreichen, welche von der Tiefgarage über die Foyers bis zu den einzelnen Büroetagen fahren.
Die Grundrisse sind so flexibel, dass sämtliche Nutzungsarten von kleinteiligen Einzelbüros über Gruppenbüros bis hin zu Open Space gestaltet werden können. Die großzügige Deckenhöhe von 3,20 Metern verleiht den Räumlichkeiten zudem ein luftiges und offenes Ambiente.
The modern, 7-storey office building from 1994 is accessed via two prestigious foyers. The timeless façade of the striking corner building is designed with high-quality natural stone. Six office floors with ultra-modern and flexible offices offer space for customized room configurations. Tenants can easily access the office space via the elevators, which travel from the underground garage via the foyers to the individual office floors.
The floor plans are so flexible that all types of use can be arranged, from small individual offices to group offices and open spaces. The generous ceiling height of 3.20 meters also gives the rooms an airy and open ambience.
Lage:
Am Hotspot des Stadtteils Friedrichshain gelegen, bietet die Umgebung alles was Ihre Mitarbeiter zu täglichen Nahversorgung benötigen. Restaurant, Café sowie eine Vielzahl an Lebensmittelläden befinden sich in direktem Umfeld.
Anbindung an den ÖPNV ist optimal für alle, die lieber mit der Bahn, Tram oder Bus kommen möchten:
Tram: S Warschauer Str.: M10; Revaler Str.: M10 und M13
Bus: Warschauer Str.: 347, N1, 300; Frankfurter Tor: N5; Grünberger Str.: 240, N40
U-Bahn: Warschauer Str.: U1, U3; Frankfurter Tor: U5
S-Bahn: Warschauer Str.: S3, S5, S7, S9, S75
Located in the hotspot of the Friedrichshain district, the surrounding area offers everything your employees need for their daily needs. A restaurant, café and a variety of grocery stores are in the immediate vicinity.
Public transport connections are ideal for those who prefer to come by train, streetcar or bus:
Streetcar: S Warschauer Str.: M10; Revaler Str.: M10 and M13
Bus: Warschauer Str.: 347, N1, 300; Frankfurter Tor: N5; Grünberger Str.: 240, N40
Subway: Warschauer Str.: U1, U3; Frankfurter Tor: U5
S-Bahn: Warschauer Str.: S3, S5, S7, S9, S75
Sonstiges:
Folgende Flächen stehen zur Verfügung:
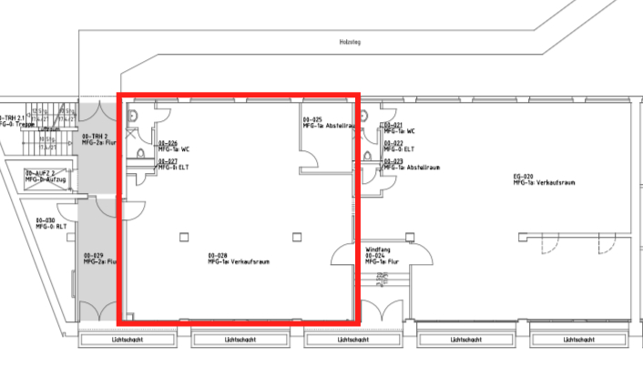
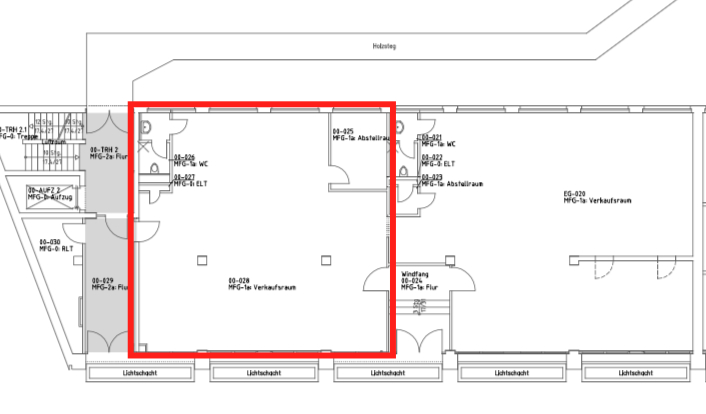
- EG mit ca. 128 qm (Laden)
- 2. OG mit ca. 950 qm
- 4. OG mit ca. 567,77 qm ( 347 qm, 75 qm,144 qm9
- 5. OG mit ca. 950 qm
- 6. OG mit ca. 726,94 inkl. Terrasse mit ca. 111 qm ab Ende 2026
The following areas are available:
- Ground floor with approx. 128 sqm
- 2nd floor with approx. 950 sqm
- 4th floor with approx. 567.77 sqm ( 347 sqm, 75 sqm, 144 sqm9
- 5th floor with approx. 950 sqm
- 6th floor with approx. 726.94 sqm incl. terrace with approx. 111 sqm from the end of 2026
Eckdaten
| Objektart | Büro |
| Objekttyp | Bürofläche |
| Vermarktungsart | Miete |
| Bürofläche | 3321.00 m² |
| Flächen teilbar ab | 75.00 m² |
| Heizkosten enthalten | JA |
| Preis | ab 28 €/qm |
| Stellplatz | 33 |
| Gäste-WC | 1 |
| Kategorie | Gehoben |
| Nutzungsart | Gewerbe |
| DV-Verkabelung | JA |
| Barrierefrei | JA |
| Personenaufzug | JA |
| Baujahr | 1994 |
| Zustand | Modernisiert |
| Energiepass Art | Bedarf |
| Primärenergieträger | Fernwärme |
| Etage | Erdgeschoss |
| Verfügbarkeit | Kurzfristig |
| Objektnummer | MS4200 |
Ausstattung
- Personenaufzug
- Öffenbare Fenster
- Getrennte WC Anlage
- Küche
- EDV Verkabelung
- Blend- und Sonnenschutz
- begrünte Innenhof
- Flexibel
- modern
- Terrasse im 6. OG
- Interner Zugang zur Tiefgarage mit E-Ladestationen und Fahrradstellplätzen
- Klimatisierte Serverräume
- Vollklimatisierung möglich Passenger elevator
- Openable windows
- Separate WC facility
- Kitchen
- EDP cabling
- Glare and sun protection
- Green inner courtyard
- Flexible
- modern
- Terrace on the 6th floor
- Internal access to the underground car park with e-charging stations and bicycle parking spaces
- Air-conditioned server rooms
- Full air conditioning possible
Weiterempfehlen:
Lage in Karte:
New Office Friedrichshain
























