New Office City West- Hardenbergstraße
Fotoleiste verschieben für mehr Bilder
Objektbeschreibung:
Das denkmalgeschützte Gewerbeobjekt befindet sich in zentraler City-Lage direkt am Zoologischen Garten. Das Office wird vom Vermieter renoviert übergeben.
The listed commercial property is in a central city location directly next to the Zoological Garden. The office will be handed over renovated by the landlord.
Lage:
Das Gewerbeobjekt befindet sich in zentraler City-Lage direkt am Zoologischen Garten. Die Infrastruktur im Berliner Stadtbezirk Charlottenburg ist erstklassig. Der U-Bahnhof & die S-Bahn Zoologischer Garten können in wenigen Minuten fußläufig erreicht werden. Am Zoolog- ischen Garten befindet sich der Busbahnhof, so dass mehrere Buslinien zur Verfügung stehen. Eine ebenso hervorragende Anbindung haben Sie zur Autobahn A100, damit sind die Berliner Flughäfen Tegel und Schönefeld schnell zu erreichen. In der näheren Umgebung gibt es viele Hotels. Zahlreiche Einkaufs-möglichkeiten und gastronomische Ange-bote sind vorhanden.
The commercial property is in a central city location right next to the Zoological Garden. The infrastructure in Berlin's Charlottenburg district is first-class. The subway station & S-Bahn Zoologischer Garten can be reached on foot in just a few minutes. The bus station is located at the Zoologischer Garten, so that several bus lines are available. There is also an excellent connection to the A100 highway, which means that Berlin's Tegel and Schönefeld airports can be reached quickly. There are many hotels in the immediate vicinity. Numerous shopping facilities and restaurants are available.
Sonstiges:
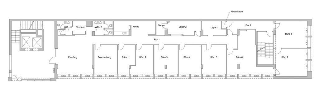
Flexible Flächenaufteilung- Großraum-, Gruppen- oder Einzelbüros möglich.
Verfügbare Flächen aktuell:
3.OG = 448 qm / 25,00 €/qm
Eckdaten
| Objektart | Büro |
| Objekttyp | Bürofläche |
| Vermarktungsart | Miete |
| Bürofläche | 448.50 m² |
| Nebenkosten | 3.30 € / m² |
| Heizkosten enthalten | JA |
| Mietpreis | 25.00 € / m² |
| Gäste-WC | 1 |
| Nutzungsart | Gewerbe |
| DV-Verkabelung | JA |
| Personenaufzug | JA |
| Zustand | Neuwertig |
| Etage | 3. OG |
| Verfügbarkeit | Nach Rücksprache |
| Objektnummer | MS4823 |
Ausstattung
- Urban
- Flexibel
- Effizient
- Aufzug
- Repräsentativ
- Teeküche
- XXXXXXXX
- Urban
- Flexible
- Efficient
- Elevator
- Representative
- Kitchenette
Weiterempfehlen:
Lage in Karte:
New Office City West- Hardenbergstraße












