Neubau Space im Bayerhaus
Fotoleiste verschieben für mehr Bilder
Objektbeschreibung:
Der eindrucksvolle Gewerbebau mit der Muschelkalksteinfassade wurde 1951 von den Architekten Hans Geber und Otto Risse errichtet. Das Gebäudeensemble war zu seiner Entstehungszeit eines der ersten Neubauten in West-Berlin und wurde von der Chemie-Firma Bayer als Firmenhauptsitz genutzt. Heutzutage nutzen diverse Mieter und namenhafte Marken wie Max Mara, Maria Rinaldi oder Boffin das renommierte Haus am Kurfürstendamm als repräsentativen Büro- und Einzelhandelsstandort.
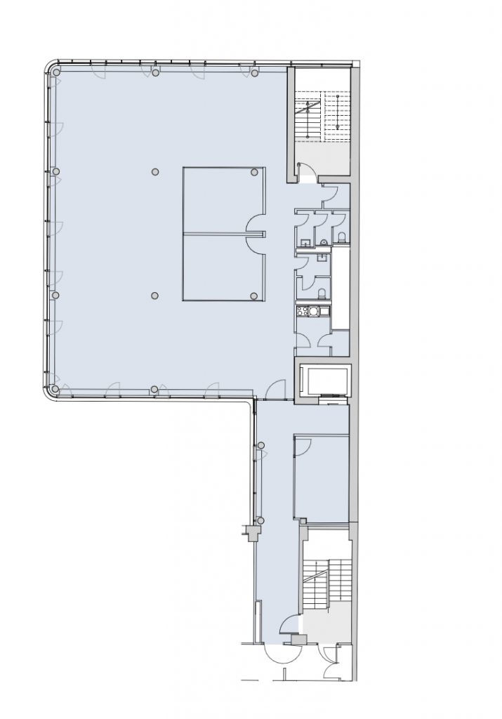
Die vakante Einzelhandelsfläche mit einer Größe von ca. 80 qm befindet sich im Erdgeschoss und ist sofort zur Anmietung verfügbar.
_____
The impressive commercial building with its shell limestone façade was built in 1951 by architects Hans Geber and Otto Risse. At the time of its construction, the building ensemble was one of the first new buildings in West Berlin and was used by the chemical company Bayer as its headquarters. Today, various tenants and well-known brands such as Max Mara, Maria Rinaldi and Boffin use the renowned building on Kurfürstendamm as a prestigious office and retail location.
The vacant retail space with a size of approx. 80 sqm is located on the first floor and is available for rent immediately.
Lage:
Das markante Geschäftshaus befindet sich im attraktivsten Abschnitt des Kurfürstendamms nahe dem Cumberlandhaus als auch dem Olivaer Platz. Exklusive Modegeschäfte, Juweliere, hochwertiger Einzelhandel und renommierte Kanzleien und Dienstleistungsunternehmen schätzen diesen repräsentativen Standort.
Die Anbindung an den öffentlichen Nahverkehr ist hervorragend. Diverse Buslinien verkehren auf dem Kurfürstendamm und verbinden schnell in alle Bereiche derStadt. Ebenso sind die U-Bahnstation Uhlandstraße und die S-Bahnstation Savignyplatz in wenigen Minuten zu Fuß zu erreichen.
_____
The striking commercial building is located in the most attractive section of Kurfürstendamm near the Cumberlandhaus and Olivaer Platz. Exclusive fashion stores, jewelers, high-end retailers and renowned law firms and service companies appreciate this prestigious location.
The public transport connections are excellent. Various bus lines run along Kurfürstendamm and connect quickly to all areas of the city. The Uhlandstraße subway station and the Savignyplatz S-Bahn station are also just a few minutes' walk away.
Sonstiges:
Folgende Flächen werden aktuell saniert und stehen mit Klimaanlage zur Verfügung:
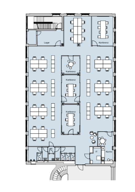
- 1. OG mit 337 qm ab 28,50 €/qm
- 2. OG mit 336 qm ab 29,50 €/qm
- 4. OG mit 336 qm ab 32 qm
- 5. OG mit 333 qm ab 33 qm
- 6. OG mit 314 qm ab 34 qm inkl. Terrasse
The following areas are currently being refurbished and are available with air conditioning:
- 1st floor with 337 sqm from € 28.50/sqm
- 2nd floor with 336 sqm from 29.50 €/sqm
- 4th floor with 336 sqm from 32 sqm
- 5th floor with 333 sqm from 33 sqm
- 6th floor with 314 sqm from 34 sqm incl. terrace
Eckdaten
| Objektart | Büro |
| Objekttyp | Bürohaus |
| Vermarktungsart | Miete |
| Bürofläche | 1658.69 m² |
| Flächen teilbar ab | 330.00 m² |
| Heizkosten enthalten | JA |
| Preis | ab 28,50 €/qm |
| Gäste-WC | 1 |
| Kategorie | Gehoben |
| Nutzungsart | Gewerbe |
| DV-Verkabelung | JA |
| Personenaufzug | JA |
| Baujahr | 2025 |
| Zustand | Erstbezug |
| Etage | 1. OG |
| Verfügbarkeit | Q2/2025 |
| Objektnummer | MS3899 |
Ausstattung
- Repräsentativ
- Flexibel
- Modern
- Ausgezeichnete Ku ́damm Lage
- Teeküche
- Lagerbereich Representative
- Flexible
- Modern
- Excellent Ku ́damm location
- Kitchenette
- Storage area
Weiterempfehlen:
Lage in Karte:
Neubau Space im Bayerhaus




