morespace in Kreuzberg
Objektbeschreibung:
Es war die Emmler Möbelfabrik, die das Gebäude mit den schönen Fassadendetails am Kottbusser Damm 1906/07 in Auftrag gab. Auf ca. 5750 Quadratmetern befanden sich die Möbelproduktion, das Lager und die Verkaufsräume. Zuvor gehörte das Grundstück dem Königlich Preußischen Eisenbahnfiscus, der es wiederum an den Holzhändler Emanuel Schiffer verpachtet hatte. 1928 zog die erste Woolworth Filiale Berlins in das Gebäude, die bis heute im Erdgeschoss ihre Verkaufsfläche hat.
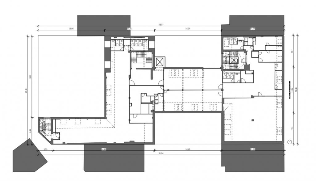
Die Emmler Lofts bestechen mit einer spannenden Gebäudestruktur und einem komfortablen Stützraster für Loft-Büros. Die Raumhöhen von ca. 3,40 m und die großflächigen historischen Fenster ermöglichen moderne und lichtdurchflutete Arbeitswelten. Darüber hinaus werden die vorhandenen Innenhöfe zum verweilen aufgewertet.
Lage:
Der Kottbusser Damm bildet einen Teil der Grenze zwischen Friedrichshain-Kreuzberg und Neukölln. Die zentral gelegenen Bezirke gelten als Szeneviertel und sind bekannt für ihr vielfältiges Kultur- und Nachtleben. Ein Großteil der Bebauung entlang der stark frequentierten Straße stammt aus der Gründerzeit. Unter der Straße verläuft die U-Bahn-Linie 8, und bietet somit die optimale Anbindung an weitere Hot-Spots in Berlin-Mitte.
Sonstiges:
Es stehen auch Lagerflächen zwischen 10 qm und 220 qm im UG für 11 €/qm zur Verfügung.
Eckdaten
| Objektart | Büro |
| Objekttyp | Bürofläche |
| Vermarktungsart | Miete |
| Bürofläche | 278.50 m² |
| Flächen teilbar ab | 278.50 m² |
| Nebenkosten | 4.50 € / m² |
| Kaution | 3 MM |
| Mietpreis | 28.00 € / m² |
| Gäste-WC | 1 |
| Kategorie | Gehoben |
| Nutzungsart | Gewerbe |
| DV-Verkabelung | JA |
| Personenaufzug | JA |
| Baujahr | 1906 |
| Zustand | Gepflegt |
| Etage | 5. OG |
| Objektnummer | MS4675 |
Ausstattung
- Urban
- Flexibel
- Effizient
- Ausbau nach Mieterwunsch
- Openspace
- Aufzug
- Sonnenschutz
- Repräsentativ
- historische Elemente
- Hofgarten
- Highspeed Internet
- Teeküche
Weiterempfehlen:
Lage in Karte:
morespace in Kreuzberg



