Modernes Office am Alex
Fotoleiste verschieben für mehr Bilder
Objektbeschreibung:
Dieses Gebäude wird durch eine klare, reduzierte Formensprache
gekennzeichnet und beinhaltet Büro und Caféflächen, die durch die
vielfältige Gestaltung und die individuelle Einrichtung einzigartige
Arbeitsplätze bereitstellen. Die Flächen verfügen über eine offene
Deckenstruktur sowie Büroräume, die durch Glaselemente abgegrenzt
werden. Ein kleines Highlight sind die vorhandenen Duschen. Noch dazu
bietet dieses Objekt einen einladenden Empfangsbereich, der das ganze
Ambiente abrundet.
This building is characterized by a clear, reduced design language
and contains office and café areas, which are characterized by
and individual furnishings provide unique workplaces.
and individual furnishings. The spaces have an open ceiling structure
ceiling structure and offices that are separated by glass elements.
are separated by glass elements. The showers are a small highlight. In addition
this property offers an inviting reception area that rounds off the whole
rounds off the ambience.
Lage:
In unmittelbarer Nähe zu Regierung, Wirtschaft, Medien und Kultur befindet sich das markante Bürohaus mitten in der Mitte von Berlin und dennoch in ruhiger Bürolage zwischen Alexanderplatz und Hackescher Markt. Die Anbindung an den öffentlichen Personennahverkehr ist optimal. Die S-Bahnhöfe "Hackescher Markt" und "Alexanderplatz" sowie die U-Bahnstationen "Alexanderplatz" und "Weinmeisterstraße" liegen nur wenige Fußminuten entfernt.
In the immediate vicinity of government, business, media and culture, this striking office building is located in the center of Berlin, yet in a quiet office location between Alexanderplatz and Hackescher Markt. The public transport connections are optimal. The S-Bahn stations "Hackescher Markt" and "Alexanderplatz" as well as the subway stations "Alexanderplatz" and "Weinmeisterstraße" are only a few minutes' walk away.
Sonstiges:
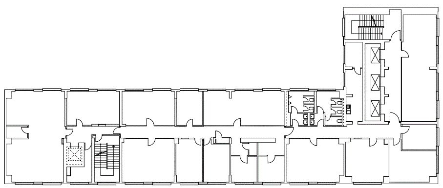
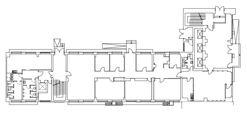
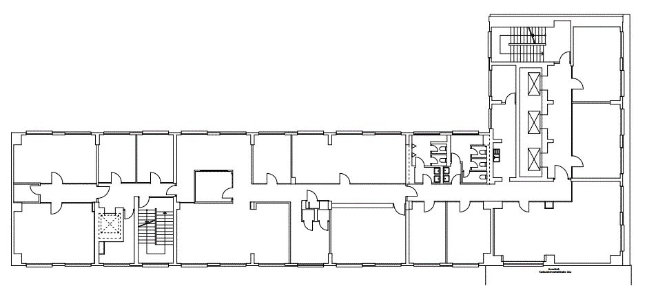
Folgende Flächen stehen zur Verfügung:
- 3. OG mit ca. 847 qm
- 4. OG mit ca. 847 qm
The following areas are available:
- 3rd floor with approx. 847 sqm
- 4th floor with approx. 847 sqm
Eckdaten
| Objektart | Büro |
| Objekttyp | Bürofläche |
| Vermarktungsart | Miete |
| Bürofläche | 1694.00 m² |
| Flächen teilbar ab | 847.00 m² |
| Nebenkosten | 4.50 € / m² |
| Kaution | 3 MM |
| Mietpreis | 19.50 € / m² |
| Gäste-WC | 1 |
| Kategorie | Gehoben |
| Nutzungsart | Gewerbe |
| DV-Verkabelung | JA |
| Personenaufzug | JA |
| Zustand | Neuwertig |
| Objektnummer | MS3243 |
Ausstattung
- Urban
- Flexibel
- Effizient
- Ausbau nach Mieterwunsch
- Aufzug
- Konferenz
- Sichtbeton
- Empfang
- Repräsentativ
- Teeküche
- Große Küche
- Highspeed Internet Urban
- Flexible
- Efficient
- Expansion according to tenant wishes
- Elevator
- Conference
- Exposed concrete
- Reception
- Representative
- Tea kitchen
- Large kitchen
- Highspeed Internet
Weiterempfehlen:
Lage in Karte:
Modernes Office am Alex











