Moderne Offices Lichtenberg
Fotoleiste verschieben für mehr Bilder
Objektbeschreibung:
Die zwischen 1993 und 1998 erbaute Möllendorff-Passage bietet vielseitige Flächen in zentraler Lage im Ortsteil Lichtenberg. Geplant von dem renommierten Architektenteam Lehmann und Lachawitz, stehen die hier vorhandenen Gewerbeflächen für eine geradlinige Architektur inmitten eines der pulsierendsten Bezirke Berlins. Die Passage besteht aus zwei Baukörpern und dem Möllendorff-Turm als weithin sichtbarer Blickfang.
Built between 1993 and 1998, the Möllendorff-Passage offers versatile space in a central location in the Lichtenberg district. Planned by the renowned team of architects Lehmann and Lachawitz, the commercial space here stands for straightforward architecture in the middle of one of Berlin's most vibrant districts. The arcade consists of two buildings and the Möllendorff Tower as an eye-catcher visible from far.
Lage:
Die Möllendorff-Passage befindet sich an einer der ältesten Straßen des Lichtenberger Ortskerns. In Süd-Nord-Richtung verläuft die Möllendorffstraße durch die Ortsteile Lichtenberg und Fennpfuhl. Durch den naheliegenden Bahnhof Frankfurter Allee, ist der Alexanderplatz mit der U-Bahn-Linie U5 in 10 Minuten erreichbar. Der Bahnhof Lichtenberg verbindet den Ortskern mit den S-Bahn-Linien S 5, S7 und S 75, die quer durch Berlin bis nach Potsdam. Auch der S-Bahn-Knotenpunkt Ostkreuz grenzt direkt an Lichtenberg. In der Tiefgarage können Stellplätze angemietet werden.Anbindung / ÖPNV:• Tram- und Busstation Möllendorffstraße/Storkower Str. - in 1 Minute fußläufig erreichbar• S Storkower Straße (S8, S9, S41, S42) - in 2 Minuten mit dem Bus erreichbar• S Frankfurter Allee (S8, S9, S41, S42) - in 5 Minuten mit der Tram erreichbar
Sonstiges:
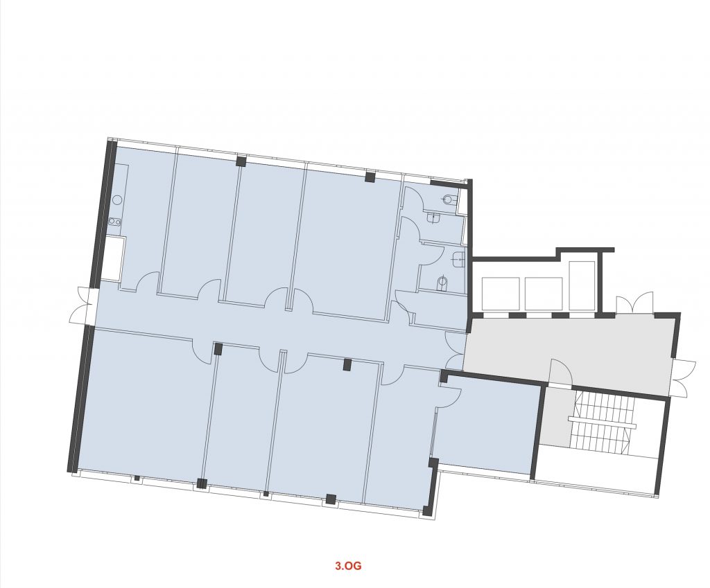
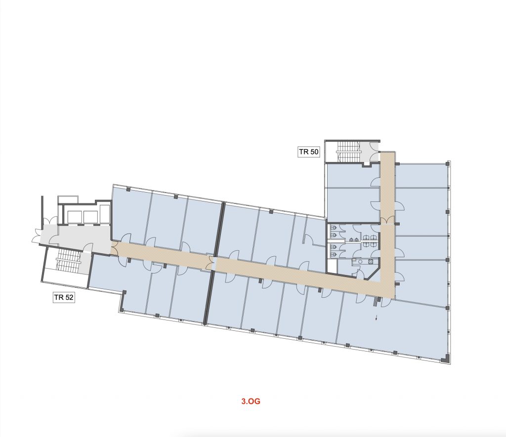
Verfügbare Flächen im Objekt :
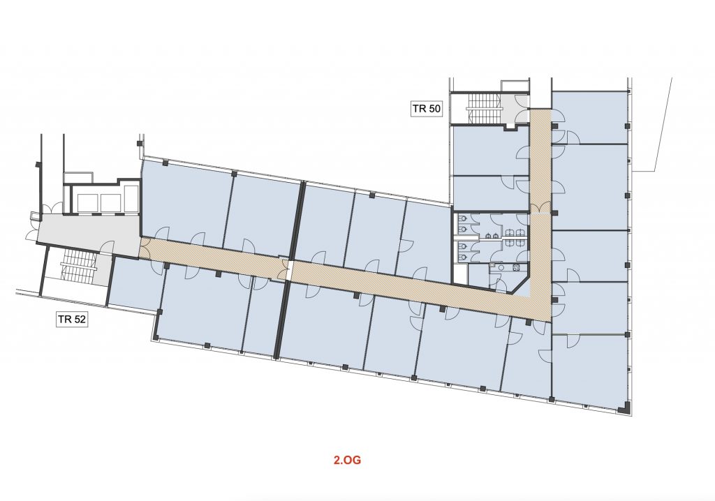
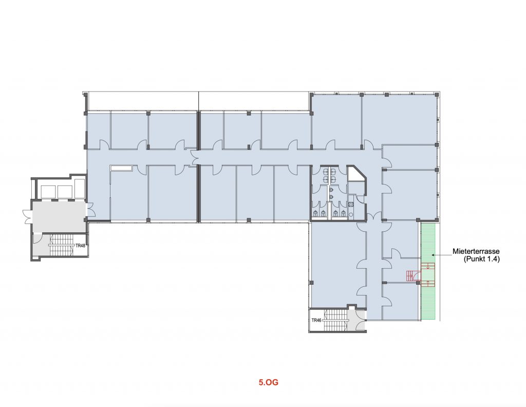
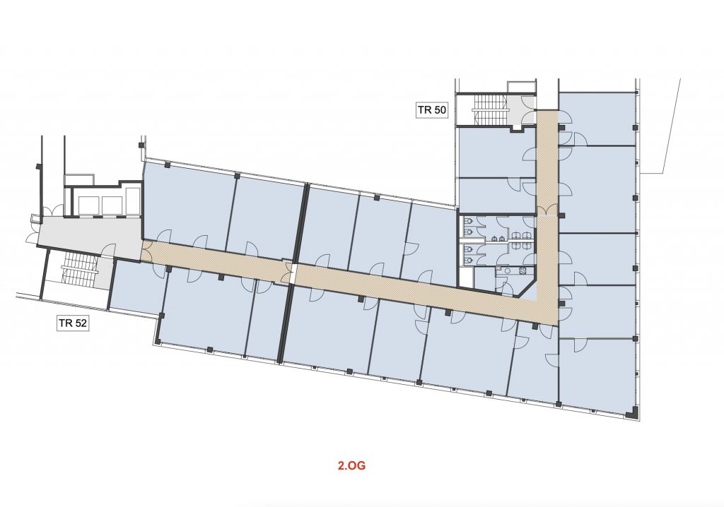
1.OG = 591,58 qm
5.OG = 650 qm
Available space in the property :
1th floor= 591,58 qm
5th floor = 650 sqm
Eckdaten
| Objektart | Büro |
| Objekttyp | Bürofläche |
| Vermarktungsart | Miete |
| Bürofläche | 1241.58 m² |
| Flächen teilbar ab | 591.58 m² |
| Nebenkosten | 3.70 € / m² |
| Kaution | 3 MM |
| Mietpreis | 16.00 € / m² |
| Gäste-WC | 1 |
| Kategorie | Gehoben |
| Nutzungsart | Gewerbe |
| DV-Verkabelung | JA |
| Personenaufzug | JA |
| Abstellraum | 1 |
| Etage | 1. OG |
| Objektnummer | MS3478 |
Ausstattung
- Stellplätze
- Personenaufzug
- Terrasse
- ÖPNV
- Urban
- Restaurant
- XXXXXXXXX
- Parking spaces
- Passenger elevator
- terrace
- PUBLIC TRANSPORTATION
- Urban
- restaurant
Weiterempfehlen:
Lage in Karte:
Moderne Offices Lichtenberg

