Immobilienangebote

Moderne Büroetage in Steglitz

Objektbeschreibung:

Diese Immobilie bietet funktionale und moderne Büro- oder Besprechungsräume in einem gut gepflegten Geschäftshaus. Das Interieur besticht durch einheitlichen dunklen Holzboden (Parkett/Laminat), weiße Wände und effiziente und waarme Beleuchtung. Große Fenster bieten reichlich Tageslicht und einen Blick auf die belebte Schloßstraße.
Im Erdgeschoss des Gebäudes befindet sich ein bekanntes Finanzcenter, was auf eine erstklassige Geschäftslage und hohe Passantenfrequenz schließen lässt.

This property offers functional and modern office or meeting rooms in a well-maintained commercial building. The interior impresses with uniform dark wooden flooring (parquet/laminate), white walls and efficient, low-wattage lighting. Large windows provide plenty of natural light and a view of the lively Schloßstraße.
A well-known financial center is located on the first floor of the building, which indicates a first-class business location and high footfall.

Lage:

Das Objekt befindet sich in einer belebten städtischen Umgebung in Berlin Steglitz, an einer Geschäftsstraße mit gemischter gewerblicher und wohnlicher Nutzung. Im Erdgeschoss des Gebäudes ist ein Postbank Finanzcenter untergebracht, was auf eine hohe Frequenz und eine erstklassige Geschäftslage hinweist. Die unmittelbare Umgebung umfasst Einzelhandelsgeschäfte und andere Unternehmen.

The property is located in a lively urban environment in Berlin Steglitz, on a commercial street with mixed commercial and residential use. The first floor of the building houses a Postbank Finance Center, which indicates a high footfall and a prime business location. The immediate surroundings include retail stores and other businesses.

Sonstiges:

Die Immobiliensuche mit der Kompetenz für Berlin !

Finden sie weitere Flächen in Berlin auf unserer Homepage www.morespace.de/immobilienangebote

Eckdaten

ObjektartBüro
ObjekttypBürofläche
VermarktungsartMiete
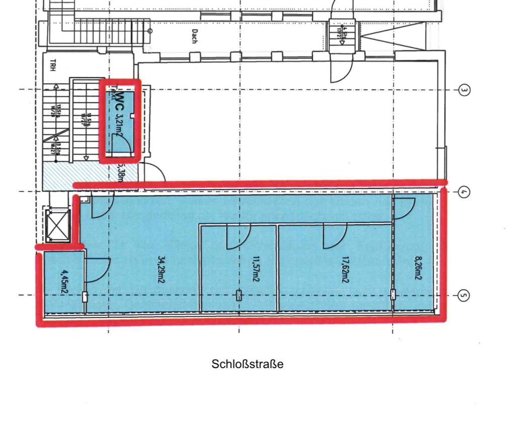
Bürofläche81.77 m²
Zimmer4
Gewerbeeinheiten1
Nebenkosten4.30 € / m²
Mietpreis18.90 € / m²
Aussen CourtageZwei Nettokaltmieten zzgl. Ust.
ProvisionspflichtigJA
KategorieGehoben
NutzungsartGewerbe
ParkettbodenJA
LaminatJA
ZentralheizungJA
ZustandGepflegt
Etage1. OG
ObjektnummerMS4924

Ausstattung

  • Aufzug
  • Parkett
  • Empfnag
  • urbane Lage
  • Sonnenschutz
  • Archiv
  • Koferenzraum
  • Küche uvm.
  • XXXXXXXXX
  • elevator
  • Parquet flooring
  • reception
  • urban location
  • sun protection
  • archive
  • Conference room
  • Kitchen and much more.

Weiterempfehlen:

Twitter Google+ Facebook E-Mail

Lage in Karte:

Moderne Büroetage in Steglitz