Loftspeicher an der Spree
Fotoleiste verschieben für mehr Bilder
Objektbeschreibung:
Die ehemalige Lagerhalle Ost der BEHALA an der Stralauer Allee 10/11 wurde 1913 von Friedrich Krause erbaut und steht auf Grund seiner Klinkerfassade, Pilastern und Gesimsbändern aus Kalkstein und Kunstwerkstein als Zeugnis der repräsentativen Industriearchitektur der Jahrhundertwende unter Denkmalschutz. In den Jahren 2004 bis 2005 wurde dieses Gebäude in enger Abstimmung mit den künftigen Nutzern aus der Modebranche hochwertig saniert und umgebaut. Aktuell sind die Flächen im Objekt an Liebeskind, Horizn, Betty Barclay, Tom Tailor, Marc Cain und Pepe Jeans vermietet und begründen den Erfolg am Standort.
The former East Warehouse of BEHALA at Stralauer Allee 10/11 was built in 1913 by Friedrich Krause and is listed as a testimony to the representative industrial architecture of the turn of the century due to its clinker facade, pilasters and cornice bands made of limestone and artificial stone. Between 2004 and 2005, this building was renovated and converted to a high standard in close consultation with the future users from the fashion industry. Currently, the space in the property is leased to Liebeskind, Horizn, Betty Barclay, Tom Tailor, Marc Cain and Pepe Jeans and is the reason for the success at the location.
Lage:
Bis 2009 entstand auf dem Nachbargrundstück ein weiterer Neubau, in dem sich unter anderem die Brands PUMA, Asics, Camel, Heinrich Obermeyer, Just Brands, Kids Fashion, Lerros, Roy Robson, Sanetta, Street One sowie Zannier langfristig eingemietet haben. Zudem konnte für eine ehemalige Kongress- und Eventcenterfläche sowie eine weitere Bürofläche mit MHP als Porsche-Tochterunternehmen ein renommierter Dienstleister aus der Prozess- und IT-Beratung gewonnen werden. Insgesamt stehen ca. 14.000 m² hochwertige Flächen für Fashion und Lifestyle und Dienstleistungen vom allerfeinsten zur Verfügung.
By 2009, another new building had been constructed on the neighboring site, in which brands such as PUMA, Asics, Camel, Heinrich Obermeyer, Just Brands, Kids Fashion, Lerros, Roy Robson, Sanetta, Street One and Zannier have taken long-term leases. In addition, a renowned service provider from the process and IT consulting sector, MHP, a Porsche subsidiary, has been acquired for a former congress and event center area and another office space. A total of approx. 14,000 m² of high-quality space is available for fashion and lifestyle and services of the very finest quality.
Sonstiges:
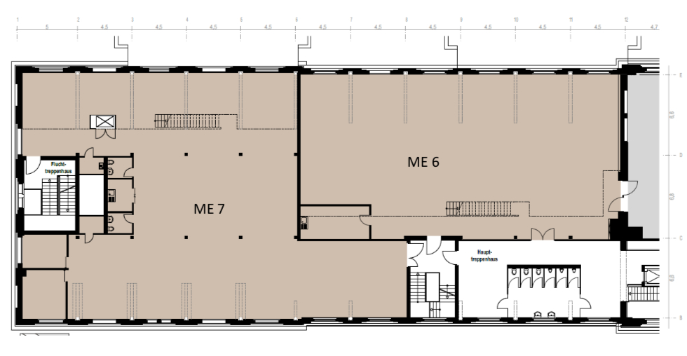
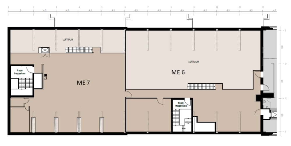
Wir können folgende Flächen zur Anmietung anbieten:
ME 1 & 2 EG Büro ca. 1.536 m² ab 29,00 €/m² 4,00 €/m² ab Q3/2026
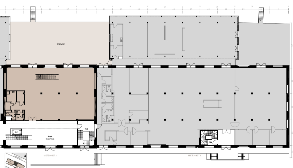
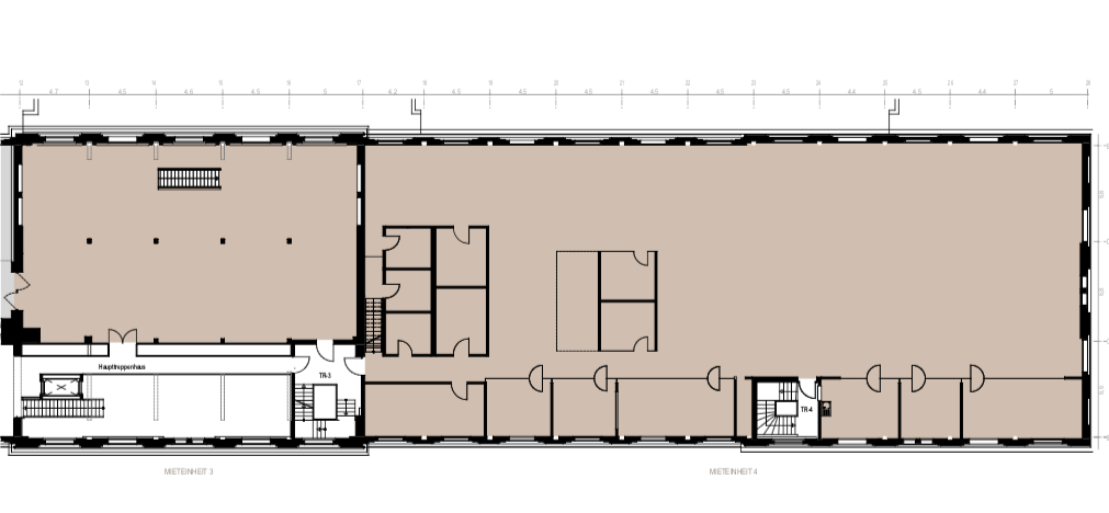
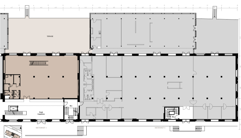
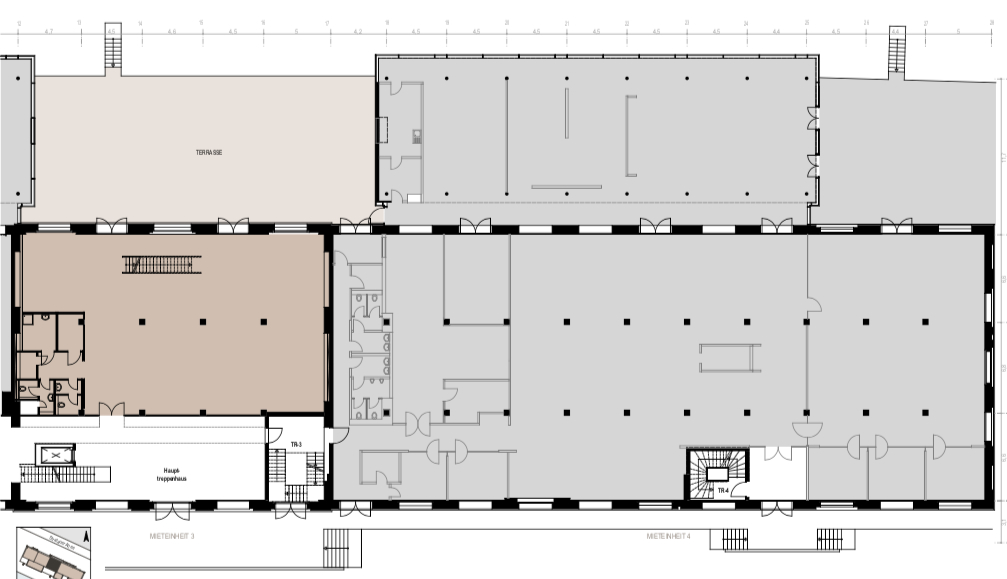
ME 3 EG - 1.OG
inkl. Terrasse Büro ca. 970 m² ab 29,00 €/m² 4,00 €/m² kurzfristig
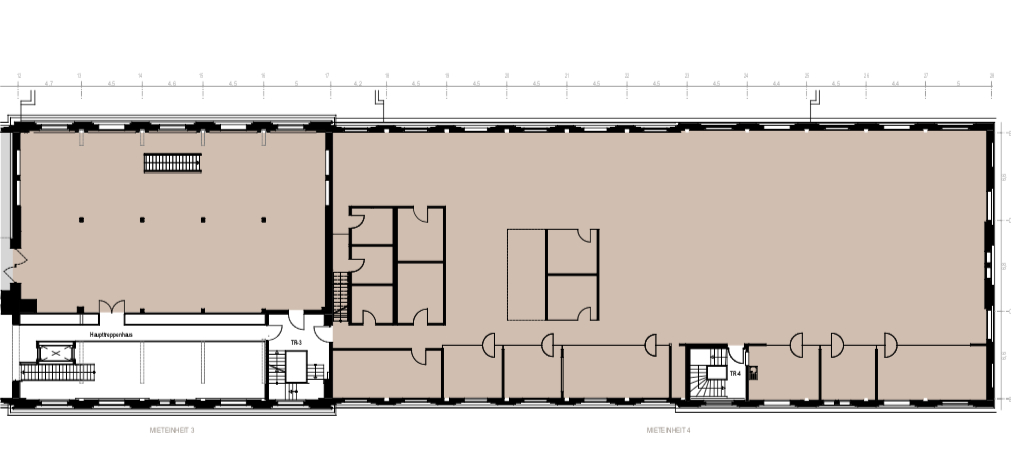
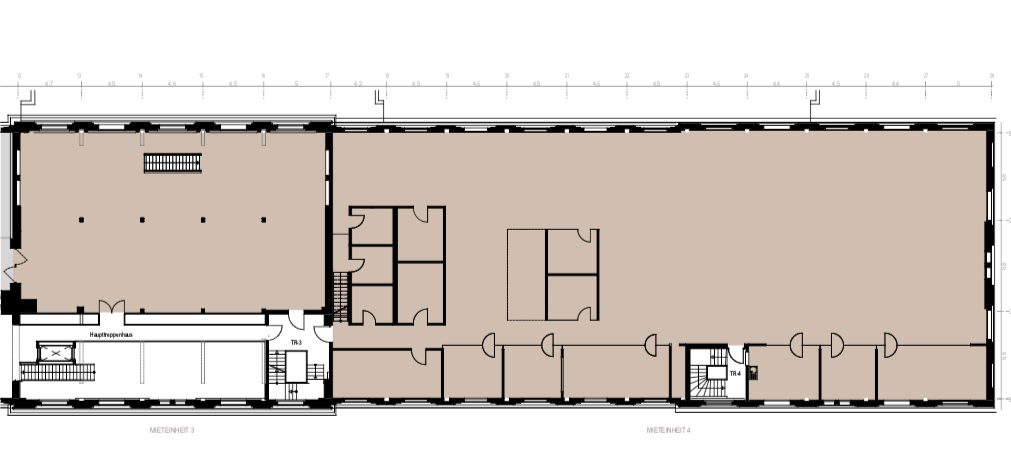
ME 4 1. OG Büro ca. 1.064 m² ab 29,00 €/m² 4,00 €/m² kurzfristig
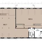
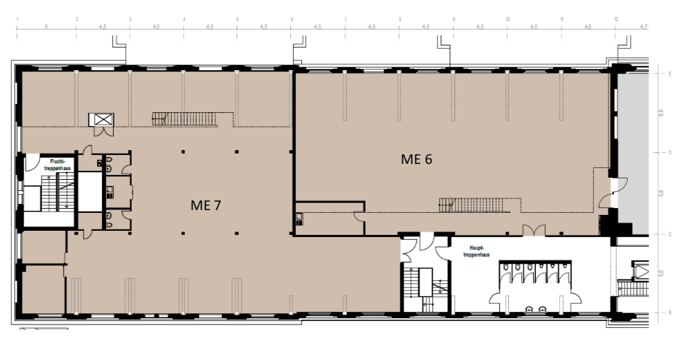
ME 8 2.OG - 3.OG Büro ca. 708 m² - ab 25,00 €/m² 4,00 €/m² kurzfristig
We can offer the following spaces for rent:
ME 1 & 2 ground floor office approx. 1,536 m² from € 29.00/m² € 4.00/m² from Q3/2026
ME 3 GROUND FLOOR - 1ST FLOOR
incl. terrace Office approx. 970 m² from € 29.00/m² € 4.00/m² short term
ME 4 1st floor Office approx. 1,064 m² from € 29.00/m² € 4.00/m² short term
ME 8 2nd floor - 3rd floor Office approx. 708 m² - from € 25.00/m² € 4.00/m² short term
Eckdaten
| Objektart | Büro |
| Objekttyp | Loft / Atelier |
| Vermarktungsart | Miete |
| Bürofläche | 4278.00 m² |
| Flächen teilbar ab | 708.00 m² |
| Nebenkosten | 4.00 € / m² |
| Preis | ab 25 €/qm |
| Stellplatzmiete | 125.00 € |
| Stellplatz | 34 |
| Gäste-WC | 1 |
| Nutzungsart | Gewerbe |
| DV-Verkabelung | JA |
| Keller | JA |
| Baujahr | 1890 |
| Zustand | Saniert |
| Primärenergieträger | Fernwärme |
| Verfügbarkeit | Sofort |
| Objektnummer | MS3128 |
Ausstattung
- Urban
- Flexibel
- Effizient
- Openspace
- Wasserblick
- Aufzug
- Sonnenschutz
- Kühlung
- Klima
- Konferenz
- Sichtbeton
- Repräsentativ
- Stellplatz
- Sichtmauerwerk
- Highspeed Internet
- Teeküche
- Betonboden
- Doppelboden Urban
- Flexible
- Efficient
- Openspace
- Water view
- Elevator
- Sunshade
- Cooling
- Climate
- Conference
- Exposed concrete
- Representative
- Pitch
- Exposed masonry
- Highspeed Internet
- Kitchenette
- Concrete floor
- raised floor
Weiterempfehlen:
Lage in Karte:
Loftspeicher an der Spree






















