Loft im Admiralspalast
Fotoleiste verschieben für mehr Bilder
Objektbeschreibung:
Herzlich willkommen in Berlin, Hauptstadt, Regierungssitz, Ursprung kreativer Start-ups und Tech-Unternehmen, historisch und dynamisch, rotzig und chic, der Superlativ in Deutschland. Diese Stadt bekommt jetzt ein neues Highlight, das Office-Label ADMIRALSPALAST in der
Friedrichstraße 101 im Herzen der Stadt in Berlin-Mitte. Hier, wo vor 100 Jahren noch Entspannung im Vordergrund stand und heute für weltbekannte Produktionen geprobt wird, entstehen 2022 modernste Büroflächen. Unser Anspruch ist, den Herausfor-derungen kommender Arbeitswelten gerecht zu werden, diese berücksichtigen wir schon heute in unseren Planungen, in den Qualitäten und den Materialien.
Welcome to Berlin, capital city, seat of government, source of creative start-ups and tech companies, historic and dynamic, snotty and chic, the superlative in Germany. This city now has a new highlight, the office label ADMIRALSPALAST at
Friedrichstraße 101 in the heart of the city in Berlin-Mitte. Here, where 100 years ago the focus was on relaxation and today rehearsals are held for world-famous productions, state-of-the-art office space will be created in 2022. Our aim is to meet the challenges of future working environments, which we are already taking into account in our planning, qualities and materials.
Lage:
Mitte ist das Zentrum und Herzstück von Berlin. Hier schlug die Geburtsstunde der Stadt und hier konzentrieren sich ihre Geschichte, die des Landes und des Kontinents. Mitte war und ist unverwechselbar, nirgendwo sonst spiegelt sich die offene Weltstadt Berlin so eindrücklich. Beim Spaziergang über den Prachtboulevard Unter den Linden oder über die Museumsinsel verzaubert die eindrucksvolle Architektur, die zu Recht zum UNESCO-Welterbe gehört. Hier sind Historie und Kultur auf einzigartige Weise verdichtet - von der Büste der Nofretete bis zu Gemälden von Weltrang und den Zeugen der deutschen Geschichte. Im Bezirk Mitte wird jedoch auch Zukunft gestaltet und werden Weichen gestellt. Hier befinden sich sowohl der Regierungssitz als auch die meisten Verfassungsorgane der Bundesrepublik Deutschland. In Mitte haben sich eine Vielzahl von Zweigstellen international tätiger Unternehmen angesiedelt. Globale Bekanntheit besteht außerdem durch zahlreiche kulturelle Institutionen und aufgrund seiner Stellung als Gründerzentrum.
• S- und U-Bahn-Station Friedrichstraße - in 2 Min. fußläufig erreichbar • Hauptbahnhof - in 4 Min. mit dem ÖPNV erreichbar
Mitte is the center and heart of Berlin. This is where the city was born and where its history, that of the country and the continent are concentrated. Mitte was and is unmistakable; nowhere else is the open, cosmopolitan city of Berlin so impressively reflected. A stroll along the magnificent boulevard Unter den Linden or across Museum Island is enchanted by the impressive architecture, which is rightly a UNESCO World Heritage Site. History and culture are concentrated here in a unique way - from the bust of Nefertiti to world-class paintings and witnesses to German history. However, the Mitte district is also where the future is shaped and the course is set. This is where the seat of government and most of the constitutional bodies of the Federal Republic of Germany are located. A large number of branches of internationally active companies have settled in Mitte. It is also known globally for its numerous cultural institutions and its position as a business incubator.
- Friedrichstraße S-Bahn and U-Bahn station - 2 minutes on foot - Central station - 4 minutes by public transport
Sonstiges:
Sie haben noch Fragen, Sie wünschen noch weitere Auskünfte? Sprechen Sie uns an, wir stellen Ihnen umfangreiches Material zur High End Fläche am Admiralspalast zur Verfügung!
Do you have any questions or require further information? Contact us, we will provide you with extensive material on the high-end space at the Admiralspalast!
Eckdaten
| Objektart | Büro |
| Objekttyp | Loft / Atelier |
| Vermarktungsart | Miete |
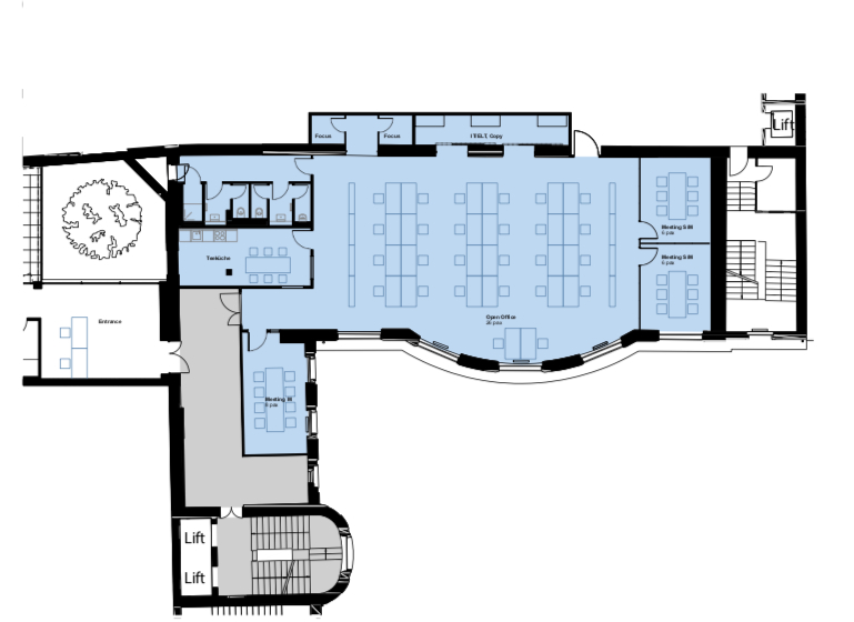
| Bürofläche | 330.52 m² |
| Zimmer | 4 |
| Heizkosten enthalten | JA |
| Mietpreis | 29.50 € / m² |
| Terrassen | 1 |
| Gäste-WC | 1 |
| Nutzungsart | Gewerbe |
| DV-Verkabelung | JA |
| Personenaufzug | JA |
| Baujahr | 2022 |
| Zustand | Erstbezug |
| Etage | 3. OG |
| Verfügbarkeit | Sofort |
| Objektnummer | MS3029 |
Ausstattung
- Urban
- Flexibel
- Effizient
- Aufzug
- Repräsentativ
- Glasfaser
- Parkett
- Klima
- Teeküche
- Erstbezug Urban
- Flexible
- Efficient
- Elevator
- Representative
- Fiberglass
- Parquet flooring
- Air-conditioned
- Kitchenette
- First occupancy
Weiterempfehlen:
Lage in Karte:
Loft im Admiralspalast






