Ladenfläche in renovierungsbedürftigem Zustand
Fotoleiste verschieben für mehr Bilder
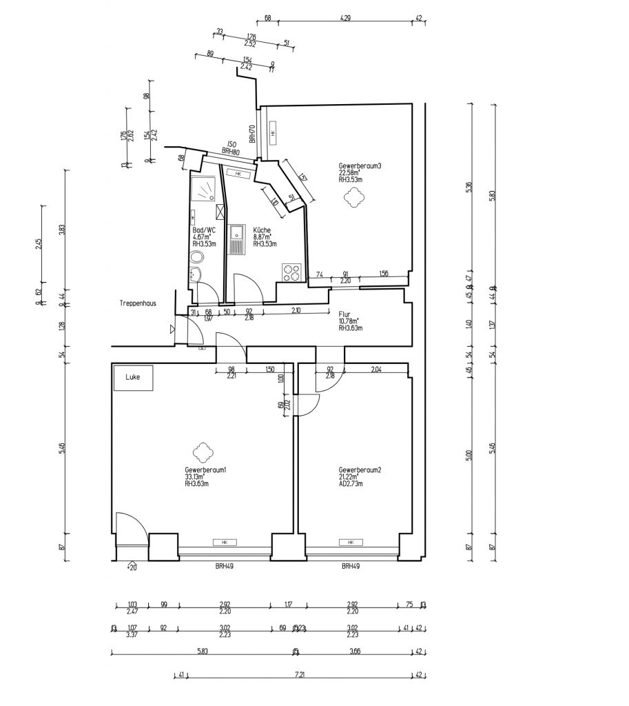
Objektbeschreibung:
Die Immobilie ist eine Gewerbefläche in unverarbeitetem Zustand, bereit zur Renovierung oder zum Ausbau. Sie verfügt über große Schaufenster zur Straße hin, mehrere Innentüren und eine einfache Ausstattung, die eine funktionale Aufteilung für verschiedene Geschäftsnutzungen ermöglicht. Das Ladenlokal ist der primäre, öffentlich zugängliche Bereich mit großen Schaufenstern für Sichtbarkeit und Tageslicht. Der Boden ist mit dunklen Fliesen ausgelegt, die Wände sind weiß gestrichen. Heizkörper sind vorhanden. Ein hinterer Raum und ein Zwischenraum sind über Türen zugänglich. Ein Küchenbereich ist mit einer großen Edelstahlspüle ausgestattet. Die Böden variieren zwischen dunklen Fliesen, freiliegendem Beton und helleren Belägen, was auf einen Renovierungsbedarf hindeutet. Eine zentrale Heizungsanlage mit Heizkörpern ist vorhanden. Die Fassade des mehrgeschossigen Gebäudes ist gepflegt, mit modernen Fenstern im Erdgeschossbereich.
Lage:
Die Umgebung zeichnet sich durch eine hohe Passantenfrequenz und eine vielseitige Mischung aus Einzelhandelsgeschäften, Cafés und Restaurants aus, die sowohl bei Einheimischen als auch Touristen beliebt sind. Die Nähe zu renommierten Bildungseinrichtungen und kulturellen Einrichtungen sowie eine hervorragende Anbindung an das öffentliche Verkehrsnetz machen diesen Standort besonders attraktiv für Geschäftsvorhaben. Durch die zentrale Lage sind viele der wichtigsten Sehenswürdigkeiten Berlins schnell erreichbar, was die Gegend zu einem idealen Standort für Handel und Gewerbe macht.
Sonstiges:
Die Immobiliensuche mit der Kompetenz für Berlin !
Finden sie weitere Flächen in Berlin auf unserer Homepage www.morespace.de/immobilienangebote
Lage in Karte:
Ladenfläche in renovierungsbedürftigem Zustand












