Hohenzollern Campus Space
Fotoleiste verschieben für mehr Bilder
Objektbeschreibung:
Der Hohenzollern Campus ist ein historischer Verwaltungs- und Bildungsstandort in Berlin-Charlottenburg, ursprünglich 1936/37 erbaut. Die Immobilie, die früher als Hauptsitz der AEG diente, bietet rund 29.700 m² flexibel nutzbare Büro- und Dienstleistungsflächen. Sie zeichnet sich durch ihre klassische Backsteinarchitektur aus, umgeben von parkähnlichen Grünanlagen, und verbindet historische Substanz mit moderner Campusinfrastruktur. Die Flächen sind flexibel teilbar und für verschiedene Nutzungen wie klassische Verwaltung, internationale Beratung, moderne Produktionsfirmen und Veranstaltungen geeignet. Das Objekt wurde teilweise umfassend modernisiert.
The Hohenzollern Campus is a historic administrative and educational location in Berlin-Charlottenburg, originally built in 1936/37. The property, which formerly served as the headquarters of AEG, offers around 29,700 m² of flexibly usable office and service space. It is characterized by its classic brick architecture, surrounded by park-like green spaces, and combines historical substance with modern campus infrastructure. The space can be flexibly divided and is suitable for various uses such as traditional administration, international consulting, modern production companies and events. The property has been extensively modernized in part
Lage:
Der Hohenzollern Campus befindet sich am Hohenzollerndamm 150/151 in Berlin - Charlottenburg. Er bietet eine exzellente Anbindung an die City-West und das gesamte Berliner Ringbahnnetz über den Hohenzollerndamm, eine nahegelegene Bushaltestelle und den angrenzenden S-Bahnhof. Die Nähe zu den Wohngebieten Dahlem und Zehlendorf sowie die direkte Anbindung an den Ringbahn und den inneren Autobahnring gewährleisten eine optimale Verbindung zu den Stadtzentren, dem Hauptbahnhof und dem BER Flughafen.
The Hohenzollern Campus is located at Hohenzollerndamm 150/151 in Berlin - Charlottenburg. It offers excellent connections to City-West and the entire Berlin Ringbahn network via Hohenzollerndamm, a nearby bus stop and the adjacent S-Bahn station. The proximity to the residential areas of Dahlem and Zehlendorf as well as the direct connection to the Ringbahn and the inner ring road ensure optimal connections to the city center, the main train station and BER airport.
Sonstiges:
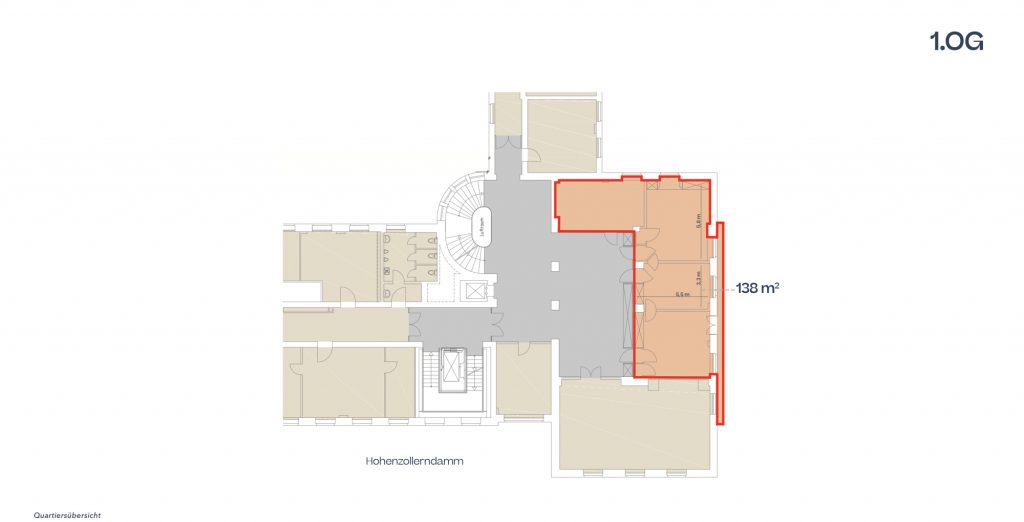
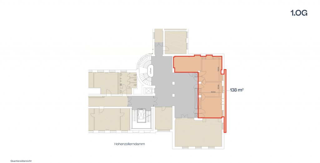
Das Objekt ist teilweise umfassend modernisiert und verfügt über eine moderne Campusinfrastruktur.Folgende Flächen können angeboten werden:
Souterrain = 638 qm
Hochparterre = 1145 qm / 257 qm
4.Obergeschoss = 1650 qm / 917 qm / 408 qm
The property has been extensively modernized in part and has a modern campus infrastructure:
Basement = 638 sqm
Raised first floor = 1145 sqm / 257 sqm
4th floor = 1650 sqm / 917 sqm / 408 sqm
Eckdaten
| Objektart | Büro |
| Objekttyp | Bürofläche |
| Vermarktungsart | Miete |
| Gesamtfläche | 29700.00 m² |
| Bürofläche | 5153.00 m² |
| Flächen teilbar ab | 257.00 m² |
| Nutzfläche | 29700.00 m² |
| Stellplätze | 6 |
| Mietpreis | 15.90 € / m² |
| Stellplatzmiete | 80.00 € |
| Stellplatz | 6 |
| Terrassen | 1 |
| Kategorie | Standard |
| Nutzungsart | Gewerbe |
| Zentralheizung | JA |
| Personenaufzug | JA |
| Keller | JA |
| Baujahr | 1936 |
| Zustand | Modernisiert |
| Etage | Erdgeschoss |
| Verfügbarkeit | Sofort |
| Objektnummer | MS4800 |
Ausstattung
- Deckenhöhe ab 3,40 m
- Achsmaß 2,39 m
- Repräsentative Hauseingangsfoyers
- Moderne Holzfenster-/Türen, teilweise
- Kastenfenster
- Mechanische Kühlung (opt)
- Mechanische Lüftung (opt)
- Flexible Raumtrennung/OpenSpace realisierbar
- Glasfaseranschluss
- PKW-Stellplätze auf Areal
- Fahrradstellplätze
- XXXXXXXXXXXXX
- Ceiling height from 3.40 m
- Axis dimension 2.39 m
- Representative entrance foyers
- Modern wooden windows/doors, some with
- box-type windows
- Mechanical cooling (optional)
- Mechanical ventilation (optional)
- Flexible room partitioning/open space feasible
- Fiber optic connection
- Car parking spaces on site
- Bicycle parking spaces
Weiterempfehlen:
Lage in Karte:
Hohenzollern Campus Space







