Helles Office im Friedrichshain
Fotoleiste verschieben für mehr Bilder
Objektbeschreibung:
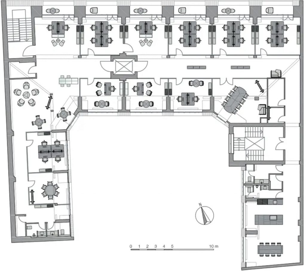
Die Grünberger Höfe wurden 1906 als Fabrik- und Wohnensemble errichtet. Hinter der denkmalgeschützten Klinkerfassade des fünfgeschossigen, ehemaligen Fabrikgebäudes befinden sich heute moderne Büroetagen mit Loftcharakter. Eichenparkett, Loftfenster und Stützbalken verleihen der kürzlich sanierten Dachgeschossläche den Charme der Industriearchitektur. Die nach modernsten Standards ausgebaute Fläche erlaubt flexible Nutzungskonzepte. Insgesamt sechs Loggien bieten weiteren Raum für Pausen- und Kommunikationsbereiche im Freien. Zudem stehen PKW-Stellplätze und überdachte sowie elektrifizierte Fahrradstellplätze zur weiteren Anmietung im Hofbereich zur Verfügung.
The Grünberger Höfe were built in 1906 as a factory and residential ensemble. Behind the listed clinker brick façade of the five-storey former factory building, there are now modern office floors with a loft character. Oak parquet flooring, loft windows and supporting beams lend the recently renovated loft space the charm of industrial architecture. The space, which has been fitted out to the latest standards, allows for flexible usage concepts. A total of six loggias offer additional space for outdoor break and communication areas. Car parking spaces and covered and electrified bicycle parking spaces are also available for rent in the courtyard area.
Lage:
Das Ensemble befindet sich im quirligen Friedrichshainer Simon-Dach-Kiez, nahe Boxhagener Platz, mit zahlreichen Cafés, Restaurants und Bars sowie zahlreichen Einkaufsmöglichkeiten des täglichen Bedarfs. Die zentrale Lage bietet eine sehr gute Verkehrsanbindung an den öffentlichen Nahverkehr über den S-, und U-Bahnhof "Warschauer Straße", der Tramstation "Grünberger Straße/Waschauer Straße" und dem U-Bahnhof "Frankfurter Tor".len.
The ensemble is located in the lively Simon-Dach-Kiez district of Friedrichshain, close to Boxhagener Platz, with numerous cafés, restaurants and bars as well as numerous shopping facilities for daily needs. The central location offers very good public transport connections via the "Warschauer Straße" S-Bahn and U-Bahn station, the "Grünberger Straße/Waschauer Straße" streetcar station and the "Frankfurter Tor" U-Bahn station.
Sonstiges:
Freie Flächen im Objekt :
- 2. OG = 377 qm
- 3. OG = 261 qm
Kellerräume für 6,00 €/m² können ebenfalls angemietet werden
ree space in the property :
- 2nd floor = 377 sqm
- 3rd floor = 261 sqm
Cellar rooms for 6,00 €/m² can also be rented
Eckdaten
| Objektart | Büro |
| Objekttyp | Loft / Atelier |
| Vermarktungsart | Miete |
| Bürofläche | 638.00 m² |
| Flächen teilbar ab | 261.00 m² |
| Nebenkosten | 4.00 € / m² |
| Mietpreis | 27.00 € / m² |
| Gäste-WC | 1 |
| Kategorie | Gehoben |
| Nutzungsart | Gewerbe |
| Parkettboden | JA |
| Zentralheizung | JA |
| Klimatisiert | JA |
| DV-Verkabelung | JA |
| Personenaufzug | JA |
| Keller | JA |
| Baujahr | 1900 |
| Zustand | Saniert |
| Etage | 5. OG |
| Etagen Anzahl | 5 |
| Verfügbarkeit | Sofort |
| Objektnummer | MS4100 |
Ausstattung
- Aufzug
- barrierefrei
- CAT 7-Verkabelung
- Serverräume
- Klimatisierung
- individueller Ausbau möglich
- Hochkantlamellenparkett
- LED-Leuchten
- Teeküchen
- Loggien/Balkon
- Dusche
- Parkplätze mit Ladeinfrastruktur
- Fahrradstellplätze
- xxxxxxxxxxxxxxxx
- Elevator
- Server rooms
- Air conditioning
- Individual expansion possible
- Raised slat parquet
- LED lights
- kitchenettes
- 6 loggias
- shower
- Parking spaces with charging infrastructure
- Bicycle parking spaces
Weiterempfehlen:
Lage in Karte:
Helles Office im Friedrichshain






