Gewerbefläche Berlin Kreuzberg
Fotoleiste verschieben für mehr Bilder
Objektbeschreibung:
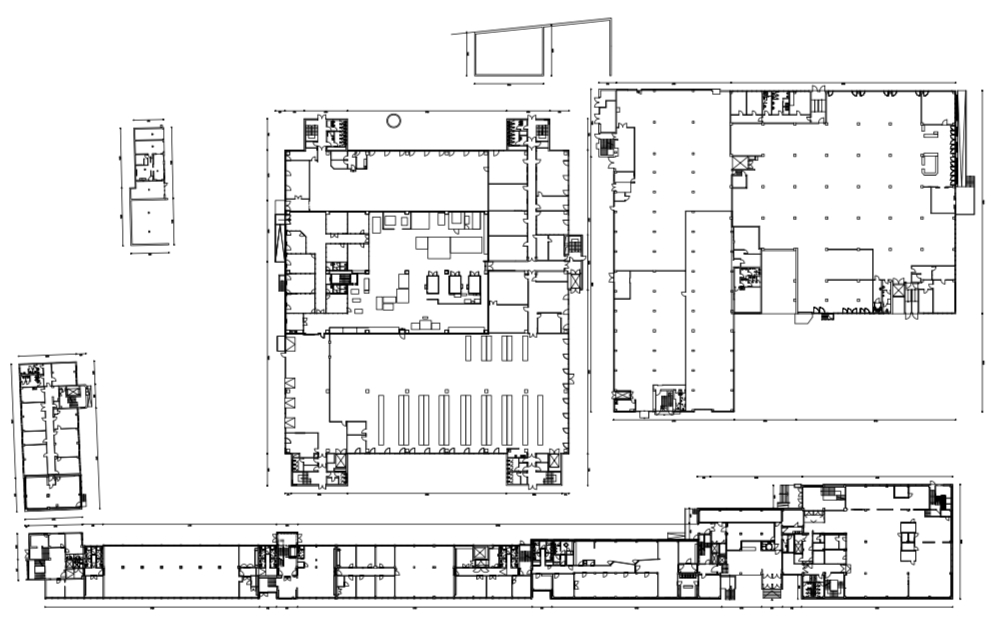
Die Liegenschaft besteht aus zwölf Büro- und Lagergebäuden mit insgesamt ca. 52.929,00 m² vermietbarer Fläche. Traditioneller Kreuzberger Gewerbestandort, der durch die Fertigstellung des Media-Spree-Areals und die Entwicklung der Köpenickerstraße stark an Bedeutung gewonnen hat. Die Büroflächen sind primär in der Blockrandbebauung angeordnet und somit auch von der Straße aus sichtbar und zugänglich. Die bestehenden Bürogebäude aus den 60'er und 70'er Jahren werden durch den Eigentümer vollständig saniert und gem. Mieterwunsch ausgebaut.
The property consists of twelve office and warehouse buildings with a total of approx. 52,929.00 m² of leasable space. Traditional Kreuzberg commercial location, which has become much more important due to the completion of the Media-Spree-Areal and the development of Köpenickerstraße. The office space is primarily located in the perimeter block development and is therefore also visible and accessible from the street. The existing office buildings from the 60's and 70's will be completely refurbished by the owner and developed according to tenants' wishes.
Lage:
Die Zeughofstraße liegt in unmittelbarer Nähe zur Spree direkt im Herzen Berlins. Das „Mediaspree- Areal“ mit der O²-World liegt in Sichtweite und der Wrangelkiez ist zu Fuß erreichbar. Die Bahnhöfe Schlesisches Tor, Görlitzer- und Ostbahnhof, sind fußläufig erreichbar. Die Geschäfte des täglichen Bedarfs sind in unmittelbarer Nähe erreichbar (Lidl, Markthalle 9, Bars und Restaurants.
The Zeughofstraße is located in the immediate vicinity of the Spree directly in the heart of Berlin. The "Mediaspree-Area" with the O²-World is in sight and the Wrangelkiez is within walking distance. The train stations Schlesisches Tor, Görlitzer- and Ostbahnhof, are within walking distance. The stores for daily needs can be reached in the immediate vicinity (Lidl, Markthalle 9, bars and restaurants.
Sonstiges:
Wir können folgende Flächen anbieten:
- 1. OG mit ca. 5600 qm
- EG mit ca. 2500 qm ab 01.12.2026
We can offer the following areas:
- 1st floor with approx. 5600 sqm from now
- Ground floor with approx. 2500 sqm from 01.01.2027
Eckdaten
| Halle / Lager | Industriehalle |
| Vermarktungsart | Miete |
| Gesamtfläche | 8100.00 m² |
| Flächen teilbar ab | 5600.00 m² |
| Nebenkosten | 2.80 € / m² |
| Mietpreis | 16.00 € / m² |
| Nutzungsart | Gewerbe |
| Zentralheizung | JA |
| Personenaufzug | JA |
| Keller | JA |
| Baujahr | 1960 |
| Zustand | Saniert |
| Energiepass Art | Bedarf |
| Energiepass gültig bis | 25.11.2020 |
| Endenergiebedarf | 283.00 kWh/(m²*a) |
| Etage | 1. OG |
| Objektnummer | MS4493 |
Ausstattung
- Urban
- Flexible
- Elevator
- Climate
- Ventilation
- Warehouse
- Openspace
Weiterempfehlen:
Lage in Karte:
Gewerbefläche Berlin Kreuzberg









