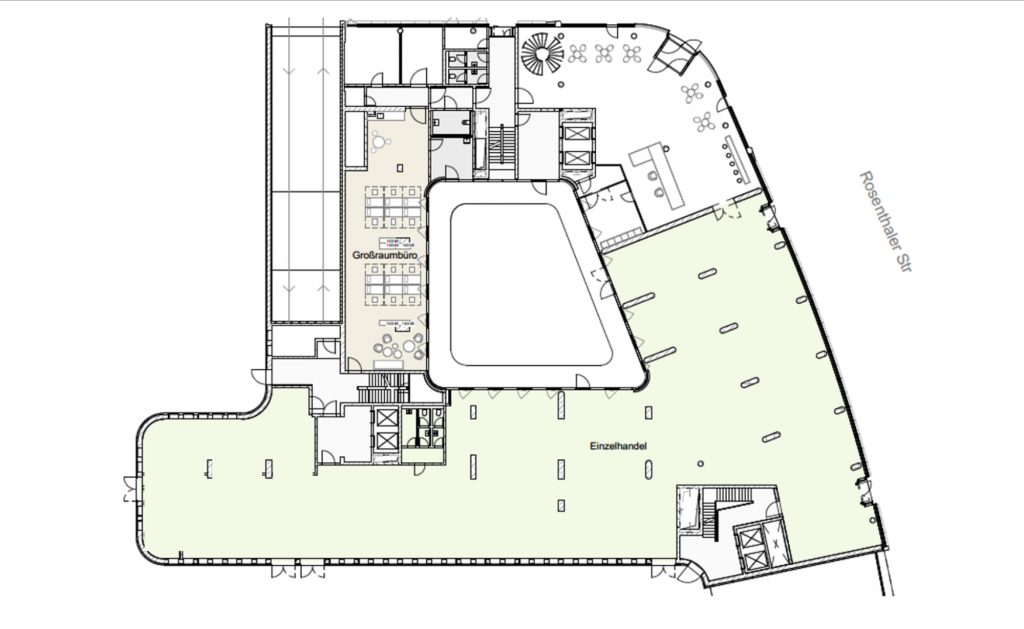
Erdgeschoss im ehemaligen SAP Haus
Fotoleiste verschieben für mehr Bilder
Objektbeschreibung:
Architekt Mark Braun hatte sich als Projektleiter beim Umbau des Reichstages in Berlin für Norman Foster (London) einen Namen gemacht, die ehemalige SAP-Zentrale spricht mit ihrer geschwungenen Fassade eine High-Tech-Sprache, die diese Schule erkennen lässt. Die Corporate Identity der Softwarefirma wird durch Architektur und Videoinstallation unterstützt, der historischen Umgebung des Hackeschen Marktes - dem Scheunenviertel mit barocken und Gründerzeitgebäuden - wurde mit dem Neubau im Jahre 2003 ein weiterer moderner Baustein hinzugefügt.
Zur Vermietung steht das komplette Erdgeschoss als Einzelhandelsfläche.
Lage:
Die Rosenthaler Straße ist Teil des Hackeschen Marktes in Berlin-Mitte, dem kreativen Zentrum Berlins. Nach der Wende wurden die Altbauten saniert
und Baulücken schlossen. Seither ist der Ort Anziehungspunkt für Künstler, Designer und jüngst auch Digitalunternehmen.
Geprägt von szenigen Bars, Cafés und Restaurants verleiht der Hackesche Markt und seine Umgebung, den Charme, der die namenhaften
Unternehmen sowie renommierte Einzelhändler anzieht. Der Alexanderplatz, Unter den Linden, die Museumsinsel und der
Rosenthaler Platz sind fußläufig zu erreichen.
Sonstiges:
Finden sie weitere Flächen in Berlin auf unserer Homepage www.morespace.de/immobilienangebote
Eckdaten
| Einzelhandel | Ladenlokal |
| Vermarktungsart | Miete |
| Gesamtfläche | 1150.00 m² |
| Verkaufsfläche | 1150.00 m² |
| Flächen teilbar ab | 850.00 m² |
| Nutzfläche | 1150.00 m² |
| Mietpreis | 50.00 € / m² |
| Aussen Courtage | Bitte beachten Sie unsere AGB |
| Provisionspflichtig | JA |
| Nutzungsart | Gewerbe |
| Baujahr | 2003 |
| Etage | Erdgeschoss |
| Objektnummer | MS4351 |
Weiterempfehlen:
Lage in Karte:
Erdgeschoss im ehemaligen SAP Haus




