Best Space am Checkpoint
Fotoleiste verschieben für mehr Bilder
Objektbeschreibung:
Das unter Denkmalschutz stehende Altbaugeschäftshaus wurde ca. im Jahre 1914 von Wilhelm Johow errichtet und im Jahr 1991 umfangsreich saniert. Wilhelm Johow zeichnete sich darüber hinaus unter anderem für den Bau des historischen Rathaus in Pankow verantwortlich. Mit seiner Jugendstilfassade und dem großen Holzfenster zwischen den floralen Ornamenten, erzielt es eine große visuelle Wirkung.
Das Anwesen ist mit einem Vorderhaus, einem Seitenflügel und einem Gartenhaus bebaut. In dem Objekt haben sich 5 Büronutzer angesiedelt.
The listed old commercial building was built in 1914 by Wilhelm Johow and extensively renovated in 1991. Wilhelm Johow was also responsible for the construction of the historic town hall in Pankow. With its Art Nouveau facade and the large wooden window between the floral ornaments, it achieves a great visual impact.
The property is built with a front house, a side wing and a garden house. 5 office users have settled in the property.
Lage:
Der Wohn- und Gebäudekomplex befindet sich in der historischen Mitte von Berlin. Politik und Kultur befinden sich in unmittelbarer Nachbarschaft, ebenso wie die exklusiven Shops in der Friedrichstraße. Der Gendarmenmarkt und viele Ministerien sind fußläufig erreichbar.
Die U-Bahnhöfe Stadtmitte, Mohrenstraße und Leipziger Platz sind ebenso in wenigen Minuten fußläufig erreichbar.
The residential and building complex is located in the historic center of Berlin. Politics and culture are in the immediate vicinity, as are the exclusive stores on Friedrichstraße. The Gendarmenmarkt and many ministries are within walking distance.
The subway stations Stadtmitte, Mohrenstraße and Leipziger Platz are also within walking distance.
Sonstiges:
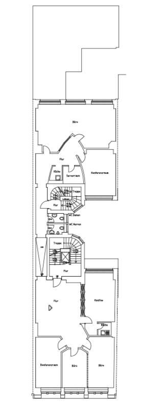
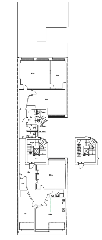
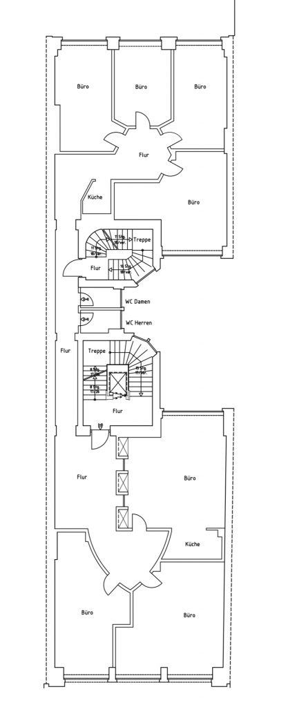
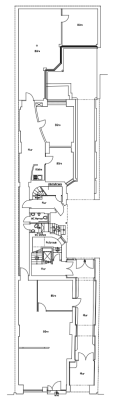
Wir könne Ihnen folgende Flächen zur Anmietung anbieten:
- 1. OG mit ca. 260 qm ab 25 €/qm
- 2. OG mit ca. 271 qm ab 25 €/qm
- 5. OG mit ca. 270 qm ab 25 €/qm
We can offer you the following spaces for rent:
- 1st floor with 260 sqm from 25 €/sqm
- 2nd floor with 271 sqm from 25 €/sqm
- 5nd floor with 270 qm from 25 €/sqm
Eckdaten
| Objektart | Büro |
| Objekttyp | Bürofläche |
| Vermarktungsart | Miete |
| Bürofläche | 800.00 m² |
| Flächen teilbar ab | 260.00 m² |
| Nebenkosten | 3.90 € / m² |
| Heizkosten enthalten | JA |
| Kaution | nach Vereinbarung |
| Mietpreis | 25.00 € / m² |
| Preis | Ab 25 €/qm |
| Gäste-WC | 1 |
| Kategorie | Standard |
| Nutzungsart | Gewerbe |
| Zentralheizung | JA |
| DV-Verkabelung | JA |
| Personenaufzug | JA |
| Keller | JA |
| Abstellraum | 1 |
| Baujahr | 1900 |
| Zustand | Gepflegt |
| Primärenergieträger | Gas |
| Etage | 2. OG |
| Verfügbarkeit | Kurzfristig |
| Objektnummer | MS4388 |
Ausstattung
- Teeküche
- Serverraum
- Abstellraum
- Verkabelung
- Teppichboden
- Gaszentralheizung Kitchenette
- Server room
- Storage room
- Cabling
- Carpet
- Gas central heating
Weiterempfehlen:
Lage in Karte:
Best Space am Checkpoint








