Open Space Oberbaum City
Fotoleiste verschieben für mehr Bilder
Objektbeschreibung:
Die unter Denkmalschutz stehendenden Fabrikgebäude wurden entkernt und zu modernen Dienstleistungs- und Gewerbebauten umgestaltet und aufwändig saniert. Gegenwärtig prägen sie auf Grund ihrer Erscheinung und der modernen Innenräumen den Charme und den Charakter der Oberbaum City. Die mieterfreundlichen Büroflächen zeichnen sich durch hohe Räume, flexible gestaltbare Grundrisse sowie einer hochwertigen Ausstattung aus.
Nach umfangreichen Restaurierungsarbeiten zeigt sich die im Jugendstil errichtete Fassade heute wieder in neuem Glanz. Sowohl die vier Obergeschosse als auch das Dachgeschoss sind als Büroflächen vorgesehen. Während die Flächen im Erdgeschoss als Einzelhandels- Gastronomie- und Ausstellungsflächen gemietet werden können.
The listed factory buildings were gutted and converted into modern service and commercial buildings and extensively renovated. At present, their appearance and modern interiors define the charm and character of Oberbaum City. The tenant-friendly office spaces are characterized by high ceilings, flexible floor plans and high-quality furnishings.
After extensive restoration work, the Art Nouveau façade now appears in new splendor. Both the four upper floors and the top floor are intended as office space. While the spaces on the first floor can be rented as retail, gastronomy and exhibition areas.
Lage:
Die Oberbaum City liegt im Bezirk Friedrichshain. Die Verkehrsanbindung ist durch den U-Bahnhof bzw. S-Bahnhof Warschauer Straße, diversen Tramm- und Buslinien und der Verkehrsader Stralauer Allee gewährleistet. Der sanierte Ostbahnhof mit IC- und ICE-Anbindung ist nur eine S-Bahn-Station oder ca. fünf Autominuten entfernt. International ist die Oberbaum City über die Flughäfen Tempelhof, Tegel und Schönefeld angebunden.
Oberbaum City is located in the district of Friedrichshain. The traffic connection is guaranteed by the subway station or S-Bahn station Warschauer Straße, various streetcar and bus lines and the traffic artery Stralauer Allee. The renovated Ostbahnhof with IC and ICE connections is only one S-Bahn station or about five minutes away by car. Internationally, Oberbaum City is connected via Tempelhof, Tegel and Schönefeld airports.
Sonstiges:
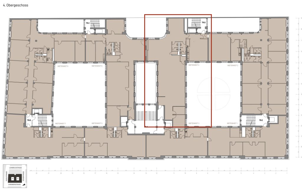
Verfügbare Flächen im Objekt :
4.Obergeschoss mit 393 qm / Plug and Play
Die Flächen können im IST Zustand ab 23 €/qm für 18 Monate bis 4 Jahre angemietet werden!
Eckdaten
| Objektart | Büro |
| Objekttyp | Loft / Atelier |
| Vermarktungsart | Miete |
| Bürofläche | 393.00 m² |
| Nebenkosten | 4.00 € / m² |
| Mietpreis | 23.00 € / m² |
| Stellplatzmiete | 130.00 € |
| Stellplatz | 152 |
| Gäste-WC | 1 |
| Kategorie | Gehoben |
| Nutzungsart | Gewerbe |
| DV-Verkabelung | JA |
| Barrierefrei | JA |
| Personenaufzug | JA |
| Baujahr | 1907 |
| Zustand | Gepflegt |
| Etage | 4. OG |
| Verfügbarkeit | Sofort |
| Objektnummer | MS4006_0 |
Ausstattung
- Urban
- Flexible
- Openspace
- Sonnenschutz
- Aufzug
- Tiefgarage
- Fahrradstellplätze
- Restaurants
- Glasfaser
- Hohlraumboden Urban
- Flexible
- Openspace
- Sunshade
- Elevator
- Underground parking
- Bicycle parking
- Restaurants
- Fiberglass
- cavity floor
Weiterempfehlen:
Lage in Karte:
Open Space Oberbaum City













