Office Space Krausenstraße
Fotoleiste verschieben für mehr Bilder
Objektbeschreibung:
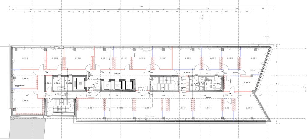
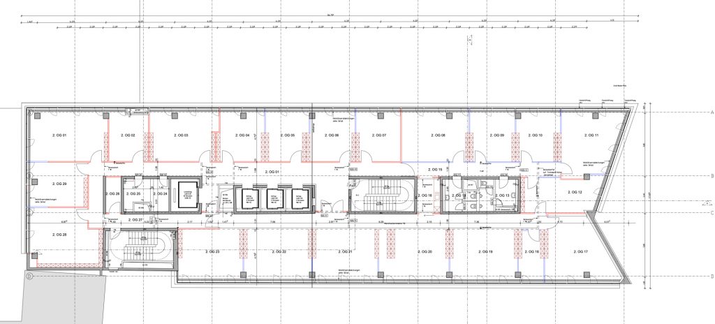
Die Bürofläche ist über die Schützenstraße 39 sowie über die Krausenstraße 40 zugänglich. Zwei Lichthöfe sind vorhanden, die für eine helle und angenehme Arbeitsatmosphäre sorgen. Es gibt diverse Büros sowie größere Räume zur gemeinschaftlichen Nutzung. Die Fläche bietet eine flexible Raumaufteilung und kann bei Bedarf mittig geteilt werden, um zwei separate Arbeitsbereiche zu schaffen. Diese Option ermöglicht eine optimale Nutzung des Raums und bietet vielfältige Gestaltungsmöglichkeiten für unterschiedliche Arbeitsanforderungen.
The office space is accessible via Schützenstrasse 39 and Krausenstrasse 40. There are two atriums that provide a bright and pleasant working atmosphere. There are various offices as well as larger rooms for communal use. The space offers a flexible room layout and can be divided down the middle to create two separate work areas if required. This option enables optimal use of the space and offers a variety of design options for different work requirements.
Lage:
Das Objekt befindet sich mitten im ehemaligen
"Zeitungsviertel" Berlins. Das Zeitungsviertel befindet sich in der südlichen Friedrichstadt und verband Ende des 19. Jahrhunderts über 500 Betriebe des grafischen Gewerbes, Druckereien und Verlagshäuser. Nach dem Fall der Mauer nahmen der Bundesverband Deutscher Zeitungsverleger und die Zentralredaktion der
Deutschen Presse-Agentur ihre Arbeit im
Zeitungsviertel wieder auf. Das Objekt ist in
unmittelbarer Nähe des Axel-Springer-Verlages und der Bundesdruckerei gelegen. Von hier aus halten sich die Wege zum Alexanderplatz, zur Humboldtuniversität, zur Friedrichstrasse und auch in Richtung Kreuzberg sehr kurz. Die Lage des Objektes ermöglicht einen verkehrstechnischen Katzensprung in die beliebtesten und bekanntesten urbanen Mittelpunkte der Stadt.
The property is located in the heart of Berlin's former "newspaper district" of Berlin. The newspaper district is located in southern Friedrichstadt and at the end of the 19th century was home to over 500 graphic arts businesses, printing houses and publishing houses. After the fall of the Berlin Wall, the Federal Association of German Newspaper Publishers and the central editorial office of the
German Press Agency resumed their work in the resumed their work in the newspaper district. The building is in
The building is located in the immediate vicinity of the Axel Springer publishing house and the Federal Printing Office. From here, the distances to Alexanderplatz, Humboldt University, Friedrichstrasse and also in the direction of Kreuzberg are very short. The location of the property means that the most popular and well-known urban centers of the city are just a stone's throw away.
Eckdaten
| Objektart | Büro |
| Objekttyp | Loft / Atelier |
| Vermarktungsart | Miete |
| Bürofläche | 832.00 m² |
| Flächen teilbar ab | 430.00 m² |
| Nebenkosten | 4.00 € / m² |
| Mietpreis | 24.00 € / m² |
| Gäste-WC | 1 |
| Kategorie | Gehoben |
| Nutzungsart | Gewerbe |
| Zentralheizung | JA |
| Klimatisiert | JA |
| DV-Verkabelung | JA |
| Baujahr | 1909 |
| Zustand | Gepflegt |
| Etage | 1. OG |
| Verfügbarkeit | 01.06.2025 |
| Objektnummer | MS4716 |
Ausstattung
- Teeküche
- 2 Lichthöfe
- flexible Raumaufteilung
- Sanitäre Anlagen
- Hell
- Deckenbeleuchtung
- Aufzüge
- Stellplätze Kitchenette
- 2 atriums
- Flexible room layout
- Sanitary facilities
- Bright
- Ceiling lighting
- elevators
- Parking spaces
Weiterempfehlen:
Lage in Karte:
Office Space Krausenstraße










