Office Potsdamer Straße 180
Fotoleiste verschieben für mehr Bilder
Objektbeschreibung:
Potsdamer Straße 180-182 in 10783 Berlin-Schöneberg . Das Büro- und Geschäftshaus wurde im Jahre 1913 errichtet. Die Fassade im Straßenfrontbereich und die Treppenhäuser stehen unter Denkmalschutz. Das Objekt wurde zwischenzeitlich saniert.
Potsdamer Strasse 180-182 in 10783 Berlin-Schöneberg . The office and commercial building was built in 1913. The façade in the street front area and the stairwells are listed buildings. The property has been renovated in the meantime.
Lage:
Die zentrale Lage in Berlin-Schöneberg nahe dem Potsdamer Platz ist als hervorragend zu bezeichnen.Das Objekt befindet sich direkt am U-Bahnhof "Kleistpark". Der S-Bahnhof "Yorkstraße ist fußläufig in ca. 5 Minuten zu erreichen.Direkt vor dem Objekt befinden sich die Haltestellen der Linien: 106, 187, 204, M19, M48, M85, N7Der Anschluss an den BAB Ring erfolgt nach wenigen Minuten über die nahe gelegene Auffahrt "Insbrucker Platz"
The central location in Berlin-Schöneberg near Potsdamer Platz can be described as excellent.the property is located directly at the "Kleistpark" subway station. The S-Bahn station "Yorkstraße" can be reached on foot in approx. 5 minutes.Directly in front of the property are the stops for the lines: 106, 187, 204, M19, M48, M85, N7The connection to the BAB Ring is only a few minutes away via the nearby "Insbrucker Platz" slip road
Sonstiges:
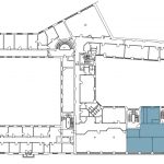
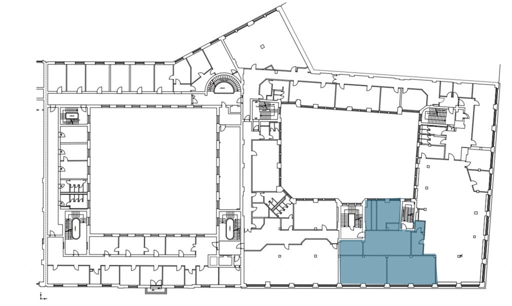
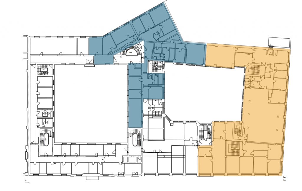
Folgende Flächen stehen zur Verfügung:
- 1. OG mit ca. 1548 qm, Teilbar 894 qm und 567 qm
- 2. OG mit ca. 292 qm
The following areas are available:
- 1st floor with approx. 1548 sqm, divisible 894 sqm and 567 sqm
- 2nd floor with approx. 292 sqm
Die Immobiliensuche mit der Kompetenz für Berlin !
Finden sie weitere Flächen in Berlin auf unserer Homepage www.morespace.de/immobilienangebote
Für die Richtigkleit der Angaben übernehmen wir keine Gewähr bzw. Haftung. Alle Informationen wurden uns vom Eigentümer zur Verfügung gestellt.
The real estate search with expertise for Berlin!
Find more spaces in Berlin on our homepage www.morespace.de/immobilienangebote
We accept no responsibility or liability for the accuracy of the information provided. All information was provided to us by the owner.
Eckdaten
| Objektart | Büro |
| Objekttyp | Bürofläche |
| Vermarktungsart | Miete |
| Bürofläche | 1840.00 m² |
| Flächen teilbar ab | 292.00 m² |
| Nebenkosten | 4.50 € / m² |
| Heizkosten enthalten | JA |
| Preis | ab 18 €/qm |
| Gäste-WC | 1 |
| Kategorie | Standard |
| Nutzungsart | Gewerbe |
| Zentralheizung | JA |
| DV-Verkabelung | JA |
| Personenaufzug | JA |
| Abstellraum | 1 |
| Baujahr | 1913 |
| Zustand | Saniert |
| Verbrauchswert | 263.00 |
| Energiepass Art | Verbrauchsausweis |
| Energiepass gültig bis | 31.05.2035 |
| Primärenergieträger | Gas |
| Objektnummer | MS1906 |
Ausstattung
- Denkmalgeschützter Eingangsbereich
- Stellplätze
- 5 Etagen
- Fahrstühle
- Verkabelung nach Wunsch
- Bodenbelag nach Mieterwunsch
- Decken/ Beleuchtung nach Absprache
- Öffenbare Fenster
- Einbauküche
- Hochwertige Sanitäranlagen
- Zentralheizung
- Glasfaseranschluss
- CAT-7 Verkabelung
- Außenjalousien
- Barrierefreier Zugang
- Behindertengerechtes WC Listed entrance area
- Parking spaces
- 5 floors
- Elevators
- Wiring as desired
- Flooring according to tenant's wishes
- Ceilings/ lighting by arrangement
- Openable windows
- Fitted kitchen
- High-quality sanitary facilities
- Central heating
- Fiber optic connection
- CAT-7 cabling
- External blinds
- Barrier-free access
- Disabled WC
Weiterempfehlen:
Lage in Karte:
Office Potsdamer Straße 180











