Office im Zeitungsviertel
Fotoleiste verschieben für mehr Bilder
Objektbeschreibung:
Das Gebäude befindet sich parallel zur Friedrichstraße und in unmittelbarer Nähe zu den Hotspots Gendarmenmarkt und Checkpoint Charlie. Es handelt sich um ein modernes und repräsentatives Objekt mit einer zeitgemäßen und hochwertigen Architektur.
The building is located parallel to Friedrichstrasse and in the immediate vicinity of the Gendarmenmarkt and Checkpoint Charlie hotspots. It is a modern and prestigious property with contemporary and high-quality architecture.
Lage:
Das Büro- und Geschäftshaus liegt im Berliner Bezirk Mitte, in der Charlottenstraße in direkter Nähe zum Checkpoint Charlie-Friedrichstraße.
Ebenfalls befindet man sich in direkter Nähe zu den U-Bahnhöfen „Kochstraße“ sowie „Stadtmitte“ und ist durch diverse Buslinien optimal angeschlossen.
Durch seine zentrale Lage - in unmittelbarer Nähe zur Friedrichstraße, zum Gendarmenmarkt (2 Gehminuten) und zur Straße Unter den Linden - bietet der Standort ein umfangreiches Angebot an Kultur und Geschichte.
The office and commercial building is located in Berlin's Mitte district, in the immediate vicinity of Checkpoint Charlie-Friedrichstrasse.
It is also in the immediate vicinity of the subway stations "Kochstraße" and "Stadtmitte" and is optimally connected by various bus lines.
Thanks to its central location - in the immediate vicinity of Friedrichstrasse, Gendarmenmarkt (2 minutes' walk) and Unter den Linden - the location offers a wide range of cultural and historical attractions.
Sonstiges:
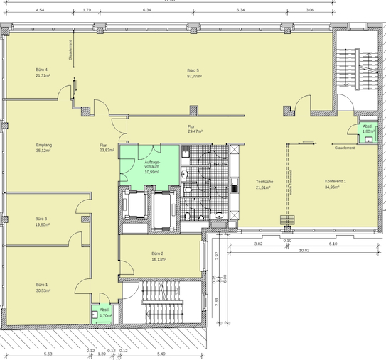
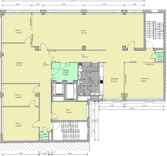
Folgende Flächen können wir anbieten:
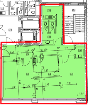
- 3. OG mit ca. 376 qm ab 24.50€/qm
- 4. OG mit ca. 140 qm ab 28.50 €/qm
Lagerflächen 32 qm für 7 €/qm
We can offer the following areas:
- 3rd floor with approx. 376 sqm from € 24.50/sqm
- 4th floor with approx. 140 sqm from 28.50 €/sqm
Storage space 32 sqm for 7 €/sqm
Eckdaten
| Objektart | Büro |
| Objekttyp | Bürofläche |
| Vermarktungsart | Miete |
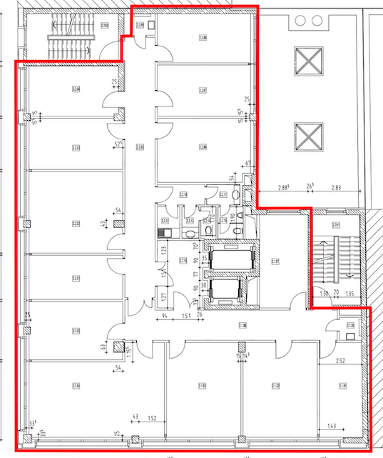
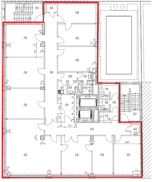
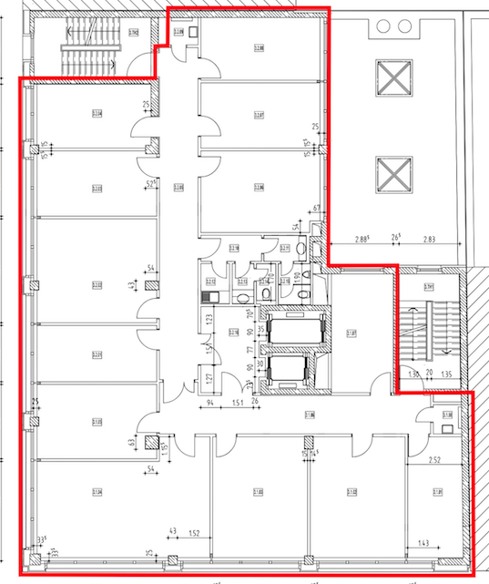
| Bürofläche | 516.00 m² |
| Flächen teilbar ab | 113.00 m² |
| Nebenkosten | 4.50 € / m² |
| Heizkosten enthalten | JA |
| Kaution | 3 MM |
| Preis | ab 24,50 €/qm |
| Gäste-WC | 1 |
| Nutzungsart | Gewerbe |
| DV-Verkabelung | JA |
| Barrierefrei | JA |
| Personenaufzug | JA |
| Keller | TEIL |
| Zustand | Gepflegt |
| Verfügbarkeit | 01.07.2025 |
| Objektnummer | MS4356 |
Ausstattung
- Hohlraumfußboden
- Sonnenschutz
- Teeküche
- Flexibel
- Aufzug
- Lager
- Glasfaser Cavity flooring
- sun protection
- prestigious lobby
- elevator
- CAT 5
- archive
- fiber optics
Weiterempfehlen:
Lage in Karte:
Office im Zeitungsviertel





