Office Behrenstraße
Fotoleiste verschieben für mehr Bilder
Objektbeschreibung:
Entdecken Sie Ihre neue Bürofläche im pulsierenden Herzen Berlins, mitten im begehrten Stadtteil Mitte. Diese hochwertige Immobilie aus dem Jahr 1996 besticht durch ihren gepflegten Zustand und eine gehobene Ausstattung, die den professionellen Ansprüchen moderner Unternehmen gerecht wird.
Die gut durchdachte Bürofläche bietet Ihnen einen funktionalen Doppelboden, der eine flexible und komfortable Kabelverlegung ermöglicht, sowie die Möglichkeit, Ihre Raumaufteilung individuell zu gestalten.
Discover your new office space in the vibrant heart of Berlin, in the middle of the sought-after Mitte district. This high-quality property, built in 1996, impresses with its well-kept condition and upscale furnishings that meet the professional requirements of modern companies.
The well-designed office space offers you a functional raised floor, which enables flexible and convenient cable routing, as well as the option of customizing your room layout.
Lage:
Das Objekt befindet sich in einer der begehrtesten Lagen Berlins, mitten im pulsierenden Zentrum der Hauptstadt. Nur wenige Schritte von der prestigeträchtigen Friedrichstraße, dem historischen Gendarmenmarkt und dem weltbekannten Boulevard Unter den Linden entfernt, bietet dieser Standort eine perfekte Anbindung an Wirtschaft, Kultur und Politik. Erstklassige Restaurants, exklusive Boutiquen und renommierte Hotels prägen das direkte Umfeld und schaffen ein einzigartiges urbanes Flair. Dank optimaler Verkehrsanbindung – mit mehreren U-Bahn- und S-Bahn-Stationen in fußläufiger Nähe
The property is located in one of Berlin's most sought-after locations, right in the pulsating center of the capital. Just a few steps away from the prestigious Friedrichstrasse, the historic Gendarmenmarkt and the world-famous boulevard Unter den Linden, this location offers perfect connections to business, culture and politics. First-class restaurants, exclusive boutiques and renowned hotels characterize the immediate surroundings and create a unique urban flair. Thanks to optimal transport connections - with several subway and S-Bahn stations within walking distance
Sonstiges:
Folgende Flächen stehen zur Verfügung:
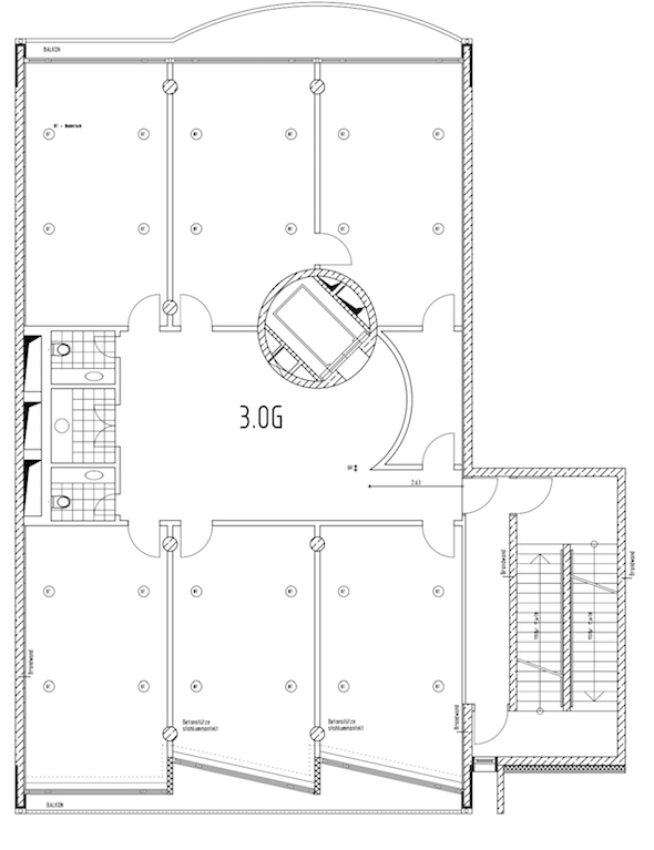
- 3. OG mit ca. 266 qm ab 26,50 €/qm
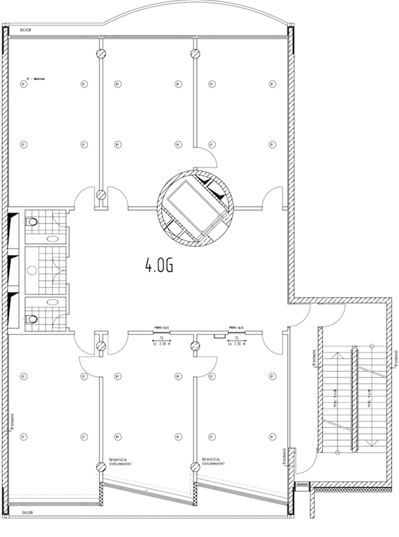
- 4. OG mit ca. 266 qm ab 27,50 €/qm
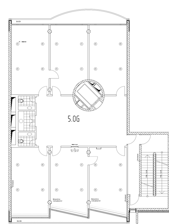
- 5. OG mit ca. 266 qm ab 28,50 €/qm
The following areas are available:
- 3rd floor with approx. 266 sqm from € 26.50/sqm
- 4th floor with approx. 266 sqm from € 27.50/sqm
- 5th floor with approx. 266 sqm from € 28.50/sqm
Eckdaten
| Objektart | Büro |
| Objekttyp | Bürofläche |
| Vermarktungsart | Miete |
| Bürofläche | 798.50 m² |
| Flächen teilbar ab | 266.00 m² |
| Nebenkosten | 5.00 € / m² |
| Heizkosten enthalten | JA |
| Kaution | 3 MM |
| Preis | ab 26,50 €/qm |
| Gäste-WC | 1 |
| Kategorie | Gehoben |
| Nutzungsart | Gewerbe |
| Fernheizung | JA |
| DV-Verkabelung | JA |
| Personenaufzug | JA |
| Baujahr | 1996 |
| Zustand | Gepflegt |
| Etage | 3. OG |
| Verfügbarkeit | 01.12.2025 |
| Objektnummer | MS4687 |
Ausstattung
- Urban
- Flexibel
- ruhiger Innenhof
- Teeküche
- Cat Verkabelung
- Aufzug
- repräsentativ Urban
- Flexible
- Quiet inner courtyard
- Kitchenette
- Cat cabling
- elevator
- representative
Weiterempfehlen:
Lage in Karte:
Office Behrenstraße





