Office am Potsdamer Platz
Fotoleiste verschieben für mehr Bilder
Objektbeschreibung:
Internationale Architekten haben das Gebäudeensemble Potsdamer Platz aus einem Guss geschaffen. Das Ergebnis ist urbane Lebens- und Arbeitsqualität auf der Höhe unserer Zeit.
Kraft und Stärke vermitteln die Gebäudespangen des Ensembles, die von gläsernen Bürobrücken verbunden werden. Darunter im Innern liegt geschützt ein begehbarer japanischer Garten.
Objektdetails:
* Repräsentativer Bürohaus-Neubau
* 8 Büroetagen
* 6 Aufzüge in den Eingangsbereichen
* 6 Treppenhäuser
* Tiefgaragenplätze für Mieter
* bankübliche Sicherheitsstandards
* speziell konstruierte Serveretage
nternational architects have created the Potsdamer Platz building ensemble from a single mold. The result is urban living and working quality at the cutting edge of our time.
The building spans of the ensemble, which are connected by glass office bridges, convey power and strength. Beneath them in the interior is a protected walk-in Japanese garden.
Property details:
* Representative new office building
* 8 office floors
* 6 elevators in the entrance areas
* 6 staircases
* Underground parking spaces for tenants
* Standard bank security standards
* Specially designed server floor
Lage:
Es gibt keinen besseren Ausgangspunkt für Termine in der ganzen Stadt. Mit der U-Bahn, S-Bahn, zahlreichen Bussen und mit dem Auto erreichen Sie die historische Mitte, das Regierungsviertel oder die City West in wenigen Minuten.Hier kommt alles zusammen, was einen Bürostandort erfolgreich und angenehm macht: die ersten Adressen der Wirtschaft, eine üppige Auswahl an Geschäften und Restaurants sowie Highlights des Berliner Kulturlebens.
* Potsdamer Platz Arkaden, Einkaufspassage
* Tiergarten in der Mittagspause schnell zu Fuß erreicht
* Marlene-Dietrich-Platz mit Café- und Boulevardflair
* Kulturforum mit Philharmonie und Neuer Nationalgalerie
* The Ritz-Carlton Berlin, neues Vorzeigehotel Berlins
* U-Bahn Mendelsohn-Bartholdy-Park direkt vor der Tür
* Regierungsviertel weinige Minuten entfernt
There is no better starting point for appointments throughout the city. You can reach the historic center, the government district or City West in just a few minutes by subway, S-Bahn, numerous buses and by car, and everything that makes an office location successful and pleasant comes together here: the top business addresses, a lavish selection of stores and restaurants as well as highlights of Berlin's cultural life.
* Potsdamer Platz Arkaden, shopping arcade
* Tiergarten can be reached quickly on foot during the lunch break
* Marlene-Dietrich-Platz with café and boulevard flair
* Kulturforum with Philharmonie and New National Gallery
* The Ritz-Carlton Berlin, Berlin's new flagship hotel
* Mendelsohn-Bartholdy-Park subway station right on the doorstep
* Government district just a few minutes away
Sonstiges:
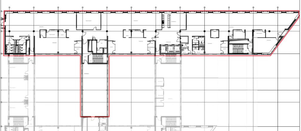
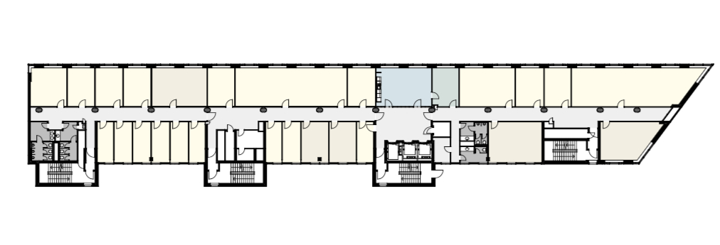
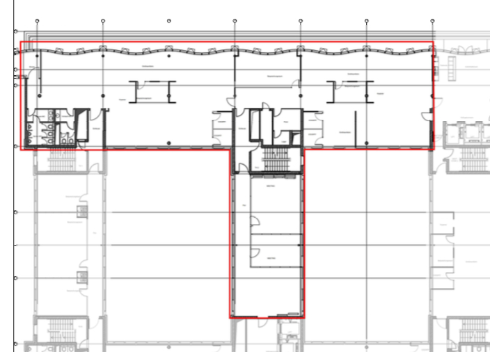
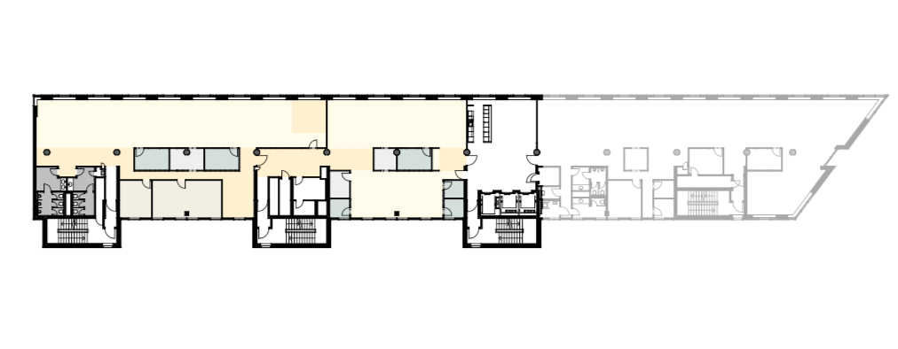
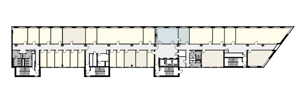
Folgende Flächen können wir Ihnen anbieten:
- 1. OG mit ca. 396,71 qm ab 27,00 €/qm
- 2. OG mit ca. 1.221,54 qm ab 29,00 €/qm
- 3. OG mit ca. 1.231,59 qm ab 29,00 €/qm
- 4. OG mit ca. 1.229,53 qm ab 29,00 €/qm
- 5. OG mit ca. 1.228,69 qm ab 29,00 €/qm
- 7. OG mit ca. 1.325,43 qm ab 29,00 €/qm
- 8. OG mit ca. 732,98 qm ab 29,00 €/qm
We can offer you the following areas:
- 1st floor with approx. 396.71 sqm from € 27.00/sqm
- 2nd floor with approx. 1,221.54 sqm from 29.00 €/sqm
- 3rd floor with approx. 1,231.59 sqm from € 29.00/sqm
- 4th floor with approx. 1,229.53 sqm from € 29.00/sqm
- 5th floor with approx. 1,228.69 sqm from € 29.00/sqm
- 7th floor with approx. 1,325.43 sqm from € 29.00/sqm
- 8th floor with approx. 732.98 sqm from € 29.00/sqm
Eckdaten
| Objektart | Büro |
| Objekttyp | Bürofläche |
| Vermarktungsart | Miete |
| Bürofläche | 7366.47 m² |
| Flächen teilbar ab | 396.71 m² |
| Nebenkosten | 6.00 € / m² |
| Heizkosten enthalten | JA |
| Kaution | 3 NKM |
| Mietpreis | 29.00 € / m² |
| Preis | ab 27 €/qm |
| Gäste-WC | 1 |
| Kategorie | Gehoben |
| Nutzungsart | Gewerbe |
| DV-Verkabelung | JA |
| Barrierefrei | JA |
| Personenaufzug | JA |
| Baujahr | 1998 |
| Zustand | Neuwertig |
| Objektnummer | MS3882 |
Ausstattung
- Flexibel
- Effizient
- Ausbau nach Mieterwunsch
- Openspace
- Aufzug
- Sonnenschutz
- Kühlung
- Repräsentativ
- Stellplatz
- Highspeed Internet
- Teeküche
- Doppelboden
- Sprinkler Flexible
- Efficient
- Expansion according to tenant requirements
- Open space
- Elevator
- Sun protection
- Cooling
- Representative
- Parking space
- High-speed Internet
- Kitchenette
- Raised floor
- Sprinkler
Weiterempfehlen:
Lage in Karte:
Office am Potsdamer Platz







