New Office am Hackeschen Markt (1,2 th Floor)
Fotoleiste verschieben für mehr Bilder
Objektbeschreibung:
Das Geschäftshaus Rosenthaler Straße mit dem Saal- und Quergebäude im Innenhof wurde um 1905, etwa zeitgleich mit dem Bau der Hackeschen Höfe, als Erweiterung einer bestehenden älteren Hofanlage für die Fürstenbergsche Brauerei errichtet. Mit den Neubauten verbanden sich die Bestrebungen nach einer veränderten, multifunktionaleren Nutzung von innerstädtischen Gewerbehöfen zu Beginn des 20. Jahrhunderts. Der Neubau war vor allem für das brauereieigene Bierlokal und Festsäle gedacht. Wegen der sehr schmalen Parzelle hat das Vorderhaus nur drei Achsen. Über dem rustizierten Erdgeschoss erhebt sich eine über drei Geschosse reichende Blendbogenarchitektur in Naturstein mit Fratzendarstellungen und Wasserspeiern in den Bogenzwickeln. Die Jugendstilfassade ist in schmale Pfeiler und Brüstungsbänder und großen Fensterflächen aufgelöst.
The commercial building at Rosenthaler Straße with the hall and transverse building in the inner courtyard was built around 1905, around the same time as the Hackesche Höfe, as an extension to an existing older courtyard complex for the Fürstenberg brewery. The new buildings were associated with efforts to change the multifunctional use of inner-city commercial courtyards at the beginning of the 20th century. The new building was primarily intended for the brewery's own beer pub and function rooms. Due to the very narrow plot, the front building only has three axes. Above the rusticated first floor rises a three-storey arched façade in natural stone with depictions of cats and gargoyles in the spandrels. The Art Nouveau façade is broken up into narrow pillars and parapet bands and large window areas.
Lage:
Dieser Standort besticht durch seine Exklusivität und Zentralität und erlangte in den vergangenen Jahren seine einstige Bedeutung als „Dreh- und Angelpunkt” des Kietzes rund um das Scheunenviertel wieder. Ein vielfältiges Einkaufs- und Gastronomieangebot ermöglicht eine sehr gute Versorgung Ihrer Mitarbeiter.
This location impresses with its exclusivity and centrality and in recent years has regained its former importance as the "hub" of the neighborhood around the Scheunenviertel. A diverse range of shops and restaurants ensures that your employees are well catered for.
Sonstiges:
Bitte beachten sie unsere AGB! Dieses Angebot ist provisionspflichtig!
Folgende Flächen stehen zur Verfügung:
- 2. OG mit ca. 359 qm
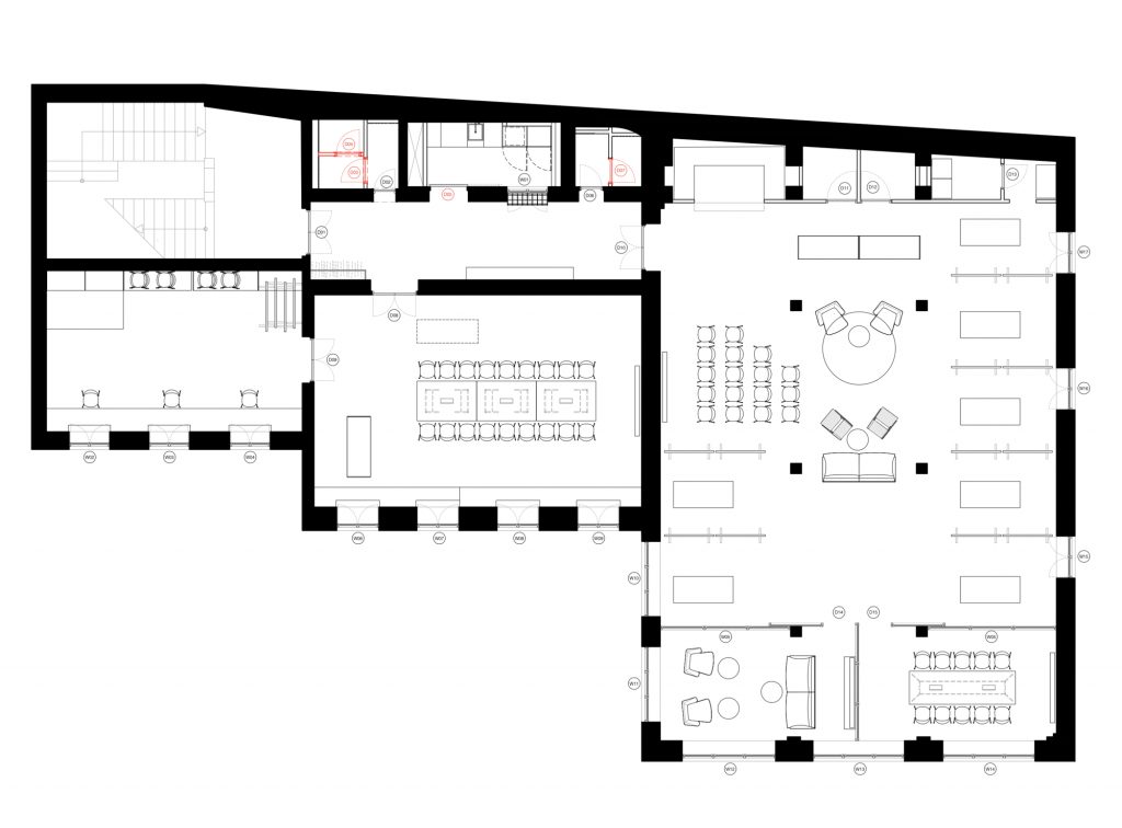
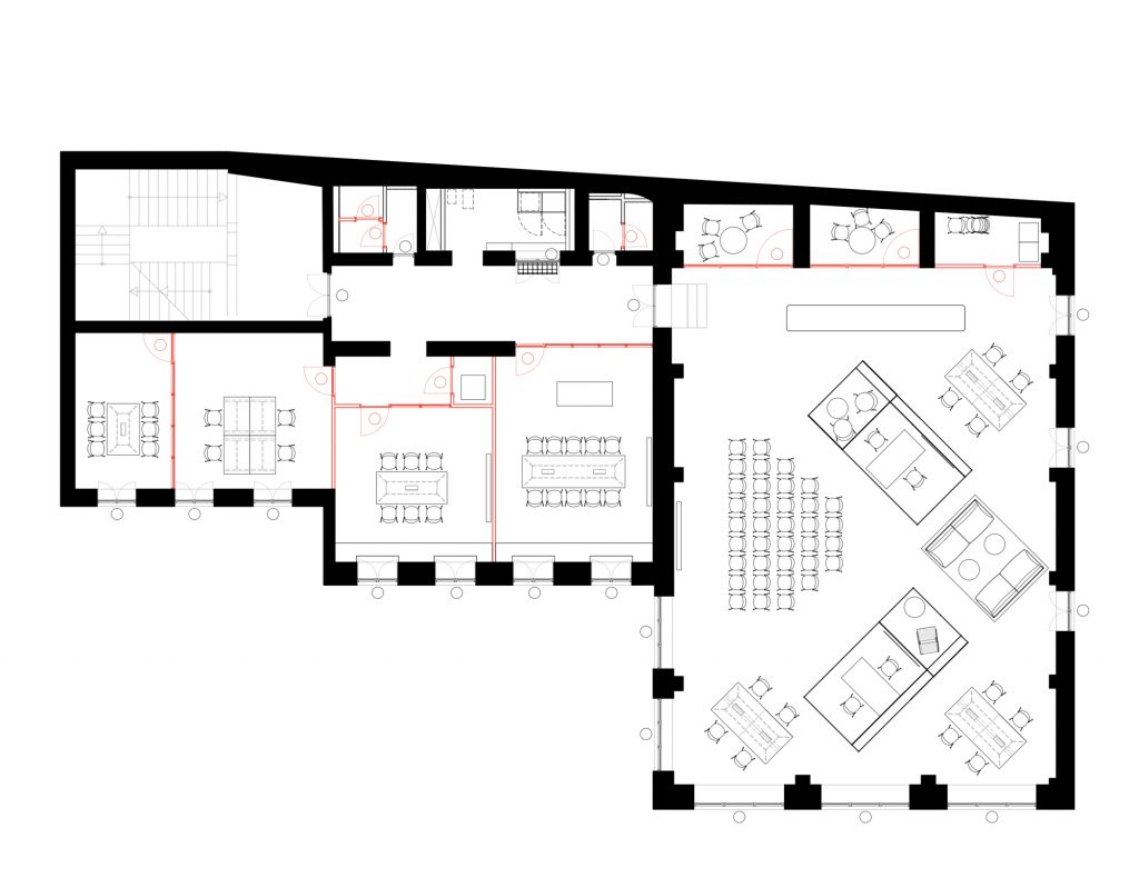
Heller und offener Schnitt, großer Hauptraum und zusätzliche Meeting-Räume, hochwertige Ausstattung
Stellplätze könnten in der näheren Umgebung zur Verfügung stehen
Please note our AGB! This offer is subject to commission!
The following spaces are available:
- 2nd floor with approx. 359 sqm
Bright and open-plan layout, large main room and additional meeting rooms, high-quality furnishings
Parking spaces could be available in the immediate vicinity
Eckdaten
| Objektart | Büro |
| Objekttyp | Loft / Atelier |
| Vermarktungsart | Miete |
| Bürofläche | 359.00 m² |
| Flächen teilbar ab | 359.00 m² |
| Nebenkosten | 3.00 € / m² |
| Mietpreis | 29.00 € / m² |
| Aussen Courtage | Bitte beachten Sie unsere AGB |
| Provisionspflichtig | JA |
| Gäste-WC | 1 |
| Kategorie | Standard |
| Nutzungsart | Gewerbe |
| Parkettboden | JA |
| DV-Verkabelung | JA |
| Baujahr | 1905 |
| Zustand | Gepflegt |
| Etage | 2. OG |
| Verfügbarkeit | 01.03.2026 |
| Objektnummer | MS4634 |
Ausstattung
- Urban
- Flexibel
- Effizient
- Openspace
- Parkett
- Repräsentativ
- historische Elemente
- Hofgarten
- Highspeed Internet
- Teeküche
- frequentierte Lauflage
- Glasfaser anliegend
- XXXXXXXXXXXXXX
- Urban
- Flexible
- Efficient
- Openspace
- Parquet flooring
- Representative
- Historical elements
- Courtyard garden
- Highspeed Internet
- kitchenette
- Frequented walking location
- fiber optics available
Weiterempfehlen:
Lage in Karte:
New Office am Hackeschen Markt (1,2 th Floor)









