New ! Medical Health im Wedding
Fotoleiste verschieben für mehr Bilder
Objektbeschreibung:
Das gepflegte 7-geschossige Büro-und Geschäftshaus befindet sich in exponierter Ecklage - gemischt genutztes Gewerbeobjekt - an der hochfrequentierten Kreuzung Badstraße, Prinzenallee im Wedding.
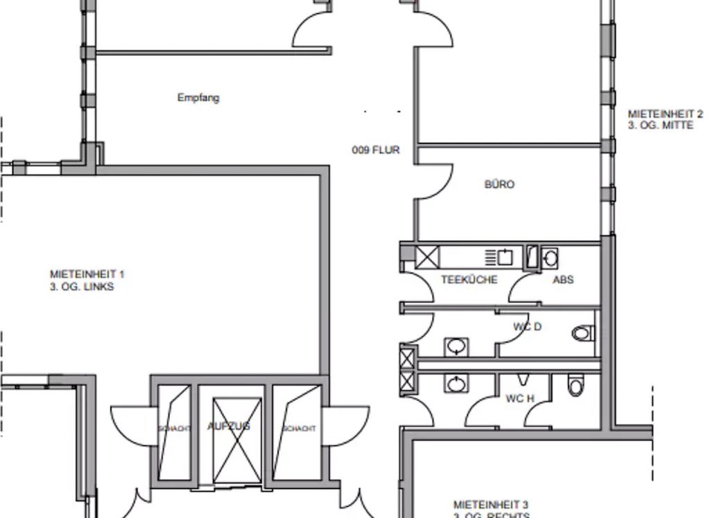
Die Gewerbeeinheit wurde bisher als Bürofläche genutzt. Sie verfügt über getrennte WC-Anlagen, eine Teeküche und 3 separate Räume und könnte sofort neu bezogen werden.
Gerne baut der Eigentümer nach Ihrem Bedarf und Wunsch entsprechend um, dann sollten ca. 2 - 3 Monate ab Mietvertragsabschluss als auch eine Anpassung des Mietpreises eingeplant werden. Der Angebotspreis im Exposé bezieht sich auf die Anmietung im IST-Zustand.
The well-kept 7-storey office and commercial building is situated in a prominent corner location - mixed-use commercial property - at the highly frequented intersection of Badstrasse and Prinzenallee in Wedding.
The commercial unit was previously used as office space. It has separate WC facilities, a kitchenette and 3 separate rooms.
The owner will be happy to remodel according to your needs and wishes, then approx. 2 - 3 months from the conclusion of the lease as well as an adjustment of the rent should be planned. The offer price in the exposé refers to the rental in the ACTUAL condition.
Lage:
Sehr zentral und verkehrsgünstig am Kreuzungspunkt Prinzenallee / Badstraße gelegen. Vor der Tür fährt die U-Bahn U 8 Pankstraße und Buslinie M 27 (Pankow-Jungfernheide). Es gibt zahlreiche Einkaufsmöglichkeiten bis hin zum Gesundbrunnen-Center. Der S-Bahnhof Gesundbrunnen ist auch ein Fern- und Regionalbahnhof (S1, S2, S25, S41, S42). Zur Autobahn A 100 Stadtring Seestraße sind es ca. 4 km.
Very centrally and conveniently located at the Prinzenallee / Badstraße intersection. The subway line U 8 Pankstraße and bus line M 27 (Pankow-Jungfernheide) run right outside the door. There are numerous shopping opportunities right up to the Gesundbrunnen-Center. The Gesundbrunnen S-Bahn station is also a long-distance and regional train station (S1, S2, S25, S41, S42). The freeway A 100 Stadtring Seestraße is approx. 4 km away.
Sonstiges:
Die Vermietung der Fläche erfolgt provisionsfrei!
Wir freuen und auf Ihre Anfrage. Besichtigungen sind nach Absprache kurzfristig möglich.
Folgende Flächen stehen zur Vermietung:
2 .Obergeschoss mit 290 qm
3. Obergeschoss mit 170 qm
The space is let free of commission!
We look forward to your inquiry. Viewings are possible at short notice by arrangement.
The following spaces are available for rent:
2nd floor with 290 sqm
3rd floor with 170 sqm
Eckdaten
| Objektart | Büro |
| Objekttyp | Praxisfläche |
| Vermarktungsart | Miete |
| Bürofläche | 462.50 m² |
| Flächen teilbar ab | 170.00 m² |
| Nebenkosten | 6.00 € / m² |
| Heizkosten enthalten | JA |
| Kaution | nach Vereinbarung |
| Preis | ab 19 €/qm |
| Gäste-WC | 1 |
| Kategorie | Standard |
| Nutzungsart | Gewerbe |
| DV-Verkabelung | JA |
| Baujahr | 1997 |
| Zustand | Gepflegt |
| Verbrauchswert | 105.10 |
| Energiepass Art | Verbrauchsausweis |
| Energiepass gültig bis | 07.05.2025 |
| Primärenergieträger | Erdgas_schwer |
| Etage | 2. OG |
| Verfügbarkeit | Sofort |
| Objektnummer | MS4825 |
Ausstattung
- Urban
- Flexibel
- Effektiv
- Teeküche
- Tiefgarage
- Wachdienst
- Sonnenschutz
- Personenaufzug
- Reinigungsservice Urban
- Flexible
- Effective
- Kitchenette
- Underground car park
- Security service
- Sun protection
- Passenger elevator
- Cleaning service
Weiterempfehlen:
Lage in Karte:
New ! Medical Health im Wedding









