Neu! Eckladen am Arkonaplatz
Fotoleiste verschieben für mehr Bilder
Objektbeschreibung:
Gepflegtes Wohn- und Geschäftshaus an der Ecke Fehrbelliner / Anklamer Straße in Berlin-Mitte
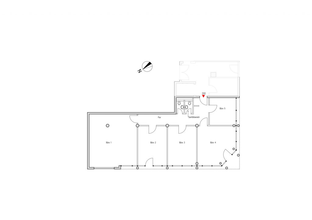
Zur Anmietung bieten wir eine attraktive, helle Gewerbefläche im Erdgeschoss des Objekts - zum sofortigen Bezug - an. Die Mietfläche eignet sich hervorragend zur Nutzung als Büro oder Praxis.
XXXXX
Well-kept residential and commercial building on the lively corner of Fehrbelliner / Anklamer Strasse in Berlin-Mitte
We are offering an attractive, bright commercial space on the first floor of the property for immediate occupation. The rental space is ideal for use as an office or practice.
Lage:
Zentrale Lage geprägt von Gastronomie, Einzelhandel, kleinen Geschäften. Vielfältig gewachsene Firmen sowie Start-up-Unternehmen im Umfeld (Weiberwirtschaft, factory Berlin) nahe Arkonaplatz / Volkspark am Weinberg / Zionskirchplatz / Rosenthaler Platz, ideale Verkehrsanbindung in alle Bezirke wenige Minuten zur U8 / U2, den Tramlinien M1, M10, M12 und diversen Buslinien.
XXXXX
Central location characterized by gastronomy, retail, small stores. A wide range of established companies and start-ups in the surrounding area (Weiberwirtschaft, factory Berlin) near Arkonaplatz / Volkspark am Weinberg / Zionskirchplatz / Rosenthaler Platz, ideal transport links to all districts just a few minutes from the U8 / U2 underground lines, the M1, M10, M12 streetcars and various bus routes.
Sonstiges:
Die Vermietung dieser Gewerbefläche erfolgt provisionsfrei.
XXXXX
This commercial space is let free of commission.
Eckdaten
| Vermarktungsart | Miete |
| Verkaufsfläche | 152.00 m² |
| Nutzfläche | 152.00 m² |
| Mietpreis | 29.00 € / m² |
| Nutzungsart | Gewerbe |
| Laminat | JA |
| Zentralheizung | JA |
| Gasheizung | JA |
| Barrierefrei | JA |
| Personenaufzug | JA |
| Einbauküche-WC | JA |
| Baujahr | 1996 |
| Zustand | Neuwertig |
| Energieklasse | C |
| Verbrauchswert | 84.00 |
| Energiepass Art | Verbrauchsausweis |
| Energiepass gültig bis | 18.10.2028 |
| Primärenergieträger | Gas |
| Etage | Erdgeschoss |
| Verfügbarkeit | Kurzfristig |
| Objektnummer | MS4868 |
Ausstattung
- Urban
- Flexibel
- Effizient
- Top-Lage
- Einbauküche
- Videogegensprechanlage
- integrierte Deckenbeleuchtung
- große Schaufensterfront Glas/Aluminium
- Tiefgaragenstellplätze verfügbar XXXXX Urban
- Flexible
- Efficient
- Top location
- Built-in-kitchen
- Video intercom system
- Integrated ceiling lighting
- large glass/aluminum shop window front
- Underground parking spaces available
Weiterempfehlen:
Lage in Karte:
Neu! Eckladen am Arkonaplatz











