Lofts an der Ankerklause
Fotoleiste verschieben für mehr Bilder
Objektbeschreibung:
Lichtfabrik ist ein fünfgeschossiger Gewerbehof im Herzen Kreuzbergs, der die Kohlfurter Straße 41/43 mit der Kottbusser Straße 11 verbindet. Im Gewerbehof wird ein Zentrum kreativer Arbeit entstehen. Nach aufwendiger Sanierung im Jahr 2010 ist als einer der ersten Mieter das Künstlerhaus Bethanien eingezogen.Ein architektonischer Reiz entsteht durch die Sanierung der über einhundertjährigen historischen Substanz. Die Flächen befinden sich im Neubau Kottbusser Straße 11.
Lichtfabrik is a five-storey commercial building in the heart of Kreuzberg that connects Kohlfurter Strasse 41/43 with Kottbusser Strasse 11. A center of creative work will be created in the commercial courtyard. Following extensive refurbishment in 2010, one of the first tenants to move in was Künstlerhaus Bethanien, whose architectural appeal is due to the renovation of the over one-hundred-year-old historic building. The space is located in the new building at Kottbusser Strasse 11.
Lage:
Inmitten multikultureller Umgebung direkt in Berlin-Kreuzberg finden Sie ein kreativesund produktives wie auch herausforderndes Arbeits- und Lebensumfeld, wie man es in Berlin nur an wenigen Orten antrifft.Mit der U-Bahn, erreichen Sie z.B. den Potsdamer Platz in 10 Min., den Alexanderplatz in 15 Min. sowie viele andere sehenswürdige Örtlichkeiten des neuen Berlin. Ein Standort mit sehr guter Infrastruktur und sehr guter Anbindung an das öffentliche Verkehrsnetz (fußläufig erreichbar U Kottbusser Tor).
In the midst of a multicultural environment directly in Berlin-Kreuzberg, you will find a creative and productive as well as challenging working and living environment that you will only find in a few places in Berlin. 10 minutes by subway to Potsdamer Platz, 15 minutes to Alexanderplatz and many other places worth seeing in the new Berlin. A location with a very good infrastructure and very good connections to the public transport network (within walking distance of U Kottbusser Tor).
Sonstiges:
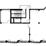
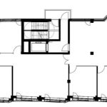
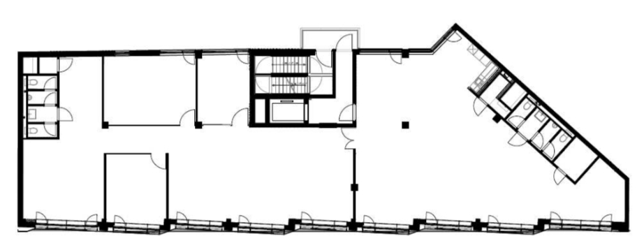
Folgende Flächen stehen zur Verfügung:
. 3. OG mit ca. 463 qm
- 4. OG mit ca. 461 qm
The following areas are available:
. 3rd floor with approx. 463 sqm
- 4th floor with approx. 461 sqm
Eckdaten
| Objektart | Büro |
| Objekttyp | Loft / Atelier |
| Vermarktungsart | Miete |
| Bürofläche | 924.00 m² |
| Flächen teilbar ab | 461.00 m² |
| Nebenkosten | 5.00 € / m² |
| Heizkosten enthalten | JA |
| Mietpreis | 25.00 € / m² |
| Nutzungsart | Gewerbe |
| Baujahr | 2019 |
| Zustand | Erstbezug |
| Verfügbarkeit | 01.12.2024 |
| Objektnummer | MS4462 |
Ausstattung
- Urban
- Flexibel
- Effizient
- Openspace
- Aufzug
- Parkett
- Sichtbeton
- Kappendecke
- Teeküche
- Raumluftkühlung Urban
- Flexible
- Efficient
- Openspace
- Elevator
- Parquet flooring
- Exposed concrete
- Capped ceiling
- kitchenette
- Room air cooling
Weiterempfehlen:
Lage in Karte:
Lofts an der Ankerklause





