Loftetage am Paul-Lincke-Ufer ( flexible Laufzeiten)
Fotoleiste verschieben für mehr Bilder
Objektbeschreibung:
Beim Objekt "Paul-Lincke-Ufer" handelt es sich um ein fünfgeschossiges Wohn- und Gewerbeobjekt mit 3 Gerwerbehöfen, welches um 1911 errichtet wurde.
Die zu vermietende Fabriketage befindet sich im 1.Obergeschoss des historsichen zweiten Hofes.
The "Paul-Lincke-Ufer" property is a five-storey residential and commercial building with 3 commercial courtyards, which was built around 1911.
The factory floor for rent is located on the 1st floor of the historic second courtyard.
Lage:
Das Objekt befindet sich in einer der begehrtesten Lagen Kreuzbergs, direkt am Landwehrkanal sowie zwischen Kottbusser Damm und Skalitzer Straße. Zahlreiche gastronomische Einrichtungen und eine gewachsene Infrastruktur zeichnen die Lage aus. Zudem ist die Verkehrsanbindung durch diverse U-Bahnanschlüsse (U 1,8,15 "Kottbusser Tor") und diverse Buslinien gesichert.
The property is located in one of Kreuzberg's most sought-after locations, directly on the Landwehrkanal and between Kottbusser Damm and Skalitzer Strasse. The location is characterized by numerous gastronomic establishments and an established infrastructure. In addition, transport links are ensured by various subway connections (U 1,8,15 "Kottbusser Tor") and various bus line
Sonstiges:
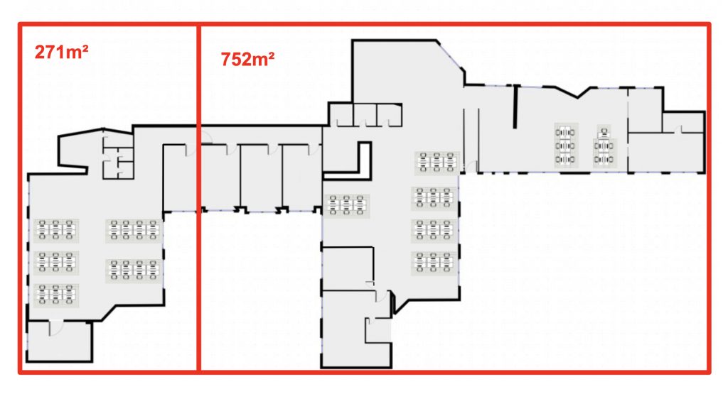
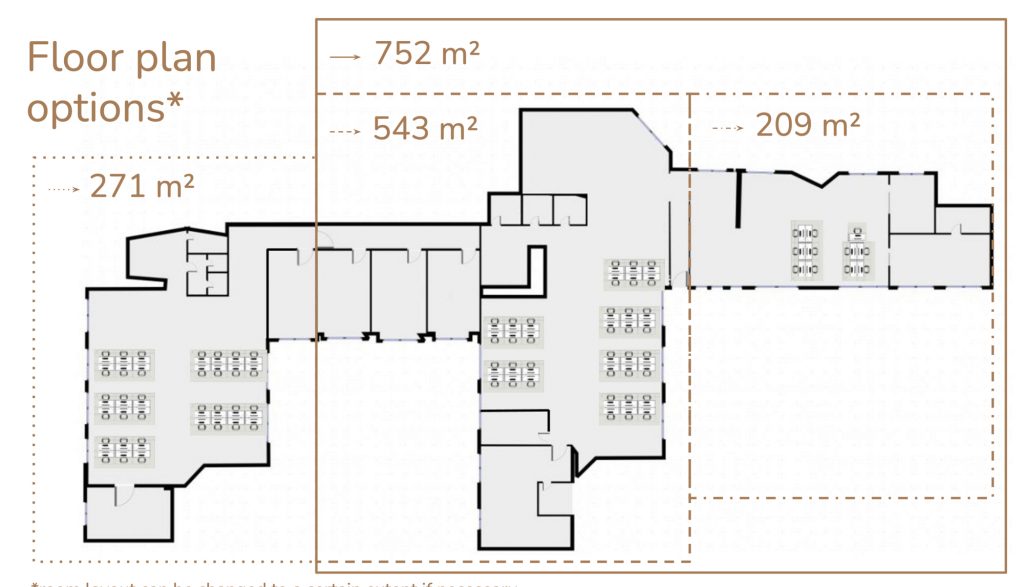
Folgende Flächen könnnen angeboten werden:
1.Obergeschoss = 271 qm
1.Obergeschoss = 209 qm
1.Obergeschoss = 543 qm
Gesamtfläche = 1023 qm
Es können flexible Laufzeiten von 12-48 Monaten angeboten werden. Die Nutzung der vorhandenen Möbel und Geräte ist nach Absprache möglich.
The following areas can be offered:
1st floor = 271 sqm
1st floor = 209 sqm
1st floor = 543 sqm
Total area = 1023 sqm
Flexible terms of 12-48 months can be offered. The use of existing furniture and equipment is possible by arrangement.
Eckdaten
| Objektart | Büro |
| Objekttyp | Loft / Atelier |
| Vermarktungsart | Miete |
| Bürofläche | 1023.00 m² |
| Flächen teilbar ab | 209.00 m² |
| Mietpreis | 22.00 € / m² |
| Nutzungsart | Gewerbe |
| Lastenfahrstuhl | JA |
| Baujahr | 1911 |
| Zustand | Gepflegt |
| Etage | 1. OG |
| Verfügbarkeit | Nach Vereinbarung |
| Objektnummer | XF893 |
Ausstattung
- Urban
- Glasfaser
- Lastenaufzug
- Zugangskontrollsystem/Transponder
- Kabeltrassen
- hochwertige Küchen
- Holzböden
- gute Belichtung
- Restaurants
- Beleuchtung
- Akustikpanele
- Telefonboxen
- Glastrennwände
- Nutzung Möbel möglich
- xxxxxxxxxxxxxxxxxxxxx
- Urban
- Fiber optics
- Freight elevator
- Access control system/transponder
- cable trays
- high-quality kitchens
- wooden floors
- good lighting
- restaurants
- lighting
- Acoustic panels
- telephone boxes
- Glass partitions
- Use of furniture possible
Weiterempfehlen:
Lage in Karte:
Loftetage am Paul-Lincke-Ufer ( flexible Laufzeiten)















