High Frequently in Berlin- Mitte
Fotoleiste verschieben für mehr Bilder
Objektbeschreibung:
New Office in Mitte
Das Gebäude verfügt über ein Untergeschoss, ein Erdgeschoss sowie sechs Obergeschosse und ein Technikgeschoss mit einer großen Dachterrasse. In den Obergeschossen des Gebäudes sind Büronutzungen vorgesehen. Für das Erdgeschoss und Teile des Untergeschosses ist eine Gewerbenutzung, z.B. Einzelhandel oder Gastronomie geplant. Im Untergeschoss befinden sich zusätzlich technische Funktions Flächen.
Die Haupterschließung des Gebäudes erfolgt für Besucher und Mitarbeiter über die Zimmerstraße 16-18. Die Einfahrt in die Tiefgarage erfolgt über die Hofzufahrt an der südlich gelegenen Kochstraße 26.
New office in Mitte
The building has a basement, a ground floor, six upper floors and a technical floor with a large roof terrace. The upper floors of the building are intended for office use. Commercial use, e.g. retail or gastronomy, is planned for the first floor and parts of the basement. There will also be technical functional areas in the basement.
The main access to the building for visitors and employees is via Zimmerstrasse 16-18. The entrance to the underground car park is via the courtyard access at Kochstrasse 26 to the south.
Lage:
Die Zimmerstraße 16-18 liegt im Bezirk Berlin Mitte in zentraler Lage unweit vom Checkpoint Charlie und ist über die U-Bahnstationen Kochstraße und Stadtmitte verkehrsgünstig an die U-Bahnlinien U6 und U2 sowie an den Bus M29 angebunden.
Zimmerstraße 16-18 is centrally located in the Mitte district of Berlin, not far from Checkpoint Charlie and is conveniently connected to the U6 and U2 subway lines and the M29 bus via the Kochstraße and Stadtmitte subway stations.
Sonstiges:
Folgende Flächen stehen zur Verfügung:
- UG mit ca. 241,07 qm
- EG mit ca. 487,31 qm
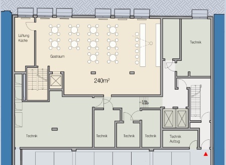
- 6. OG mit ca. 478 qm
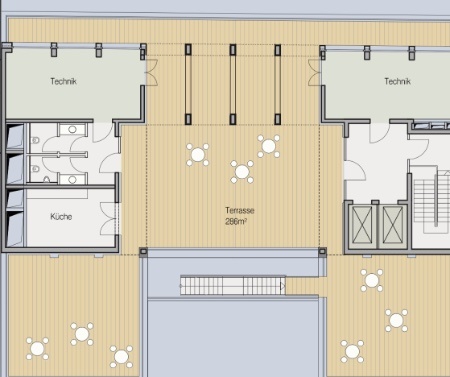
Die Dachterrasse steht für die gemeinschaftliche Nutzung zur Verfügung.
The following areas are available:
- Basement with approx. 241.07 sqm
- Ground floor with approx. 487.31 sqm
- 6th floor with approx. 478 sqm
The roof terrace is available for communal use.
Eckdaten
| Objektart | Büro |
| Objekttyp | Bürofläche |
| Vermarktungsart | Miete |
| Bürofläche | 478.50 m² |
| Nebenkosten | 6.00 € / m² |
| Mietpreis | 29.00 € / m² |
| Terrassen | 1 |
| Nutzungsart | Gewerbe |
| Fernheizung | JA |
| Klimatisiert | JA |
| DV-Verkabelung | JA |
| Barrierefrei | JA |
| Personenaufzug | JA |
| Etage | 6. OG |
| Objektnummer | MS4867 |
Ausstattung
- Urban
- Flexibel
- Openspace
- Aufzug
- Kühlung
- Klima
- Konferenz
- Parkett
- Empfang
- Stellplatz
- Sonnenschutz
- Highspeed Internet Urban
- Flexible
- Open space
- Elevator
- Cooling
- Air conditioning
- Conference room
- Parquet flooring
- Reception
- Parking space
- Sun protection
- Highspeed Internet
Weiterempfehlen:
Lage in Karte:
High Frequently in Berlin- Mitte







