Altes Kontorhaus Mitte
Fotoleiste verschieben für mehr Bilder
Objektbeschreibung:
Die Friedrichstraße 185-186 befindet sich in zentraler als auch historischer Lage zwischen Unter den Linden und der Leipziger Straße und in unmittelbarer Nähe des Gendarmenmarktes. Der U-Bahnhof „Stadtmitte“ befindet sich direkt vor dem Haupteingang und auch der bekannte Bahnhof „Friedrichstraße“, sowie der Potsdamer Platz ist fußläufig in 1000m erreichbar. Das Kontorhaus bietet ca. 8000m2 Büro-, Einzelhandels- und Lagerflächen aufgeteilt auf 8 Obergeschosse und eine Tiefgarage.
Friedrichstraße 185-186 is centrally and historically located between Unter den Linden and Leipziger Straße and in the immediate vicinity of Gendarmenmarkt. The "Stadtmitte" subway station is located directly in front of the main entrance and the well-known "Friedrichstraße" station and Potsdamer Platz are also within 1000m walking distance. The Kontorhaus offers approx. 8000m2 of office, retail and storage space spread over 8 upper floors and an underground parking garage.
Lage:
Das 8-geschossige Quartier zieht sich von der Flaniermeile der Friedrichstraße über die Mohren - und Kronenstraße und liegt somit im Centrum der Bekanntesten Straßen Berlins. Diese ausgesuchte Lage hat beste Anbindungen an den Bus und U-Bahnhof Stadtmitte und sowie dem S-Bahnhof Friedrichstraße.
Tiefgaragenplätze stehen zur Verfügung.
The 8-storey Quartier stretches from the promenade of Friedrichstrasse across Mohrenstrasse and Kronenstrasse and is thus located in the center of Berlin's best-known streets. This select location has excellent connections to the Stadtmitte bus and subway station and the Friedrichstrasse S-Bahn station.
Underground parking spaces are available.
Sonstiges:
Folgende Flächen stehen zur Verfügung:
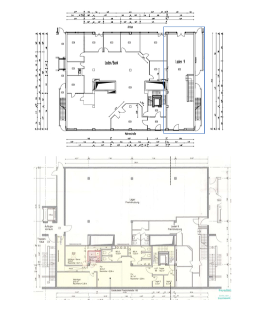
- EG mit ca. 121 qm und 105 qm im UG für ca. 28,50 €/qm
- EG mit 107 qm im EG (60 €/qm) + 132 qm im UG
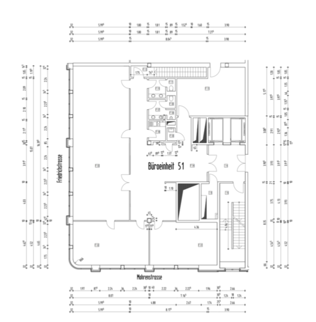
- 1. OG mit ca. 300 qm für 28,50 €/qm
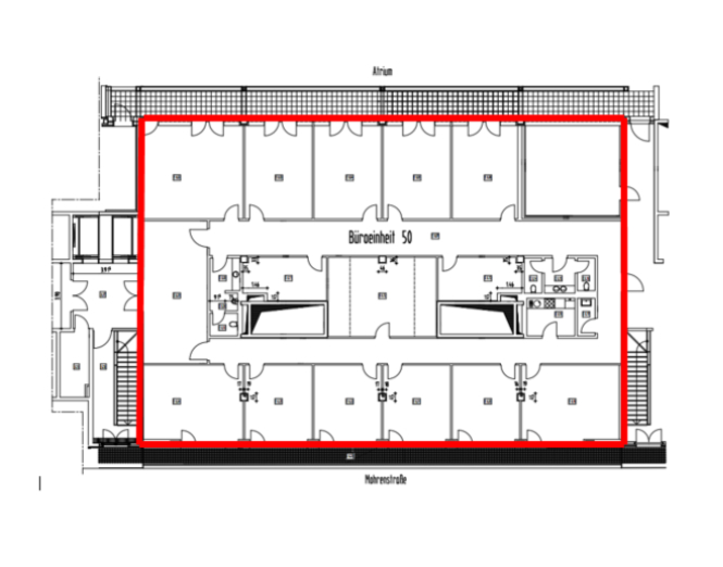
- 2. OG mit ca. 637 qm für 27,50 €/qm, ab 01.04.2026
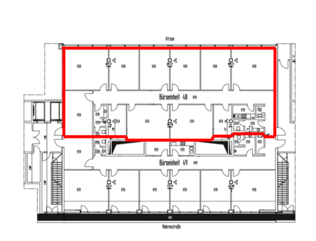
- 4. OG mit ca. 319 qm für ca. 28,50 €/qm
- 6. OG mit ca. 319 qm für ca. 27,50 €/qm
- 7. OG mit ca. 339 qm für ca. 26 €/qm
- 7. OG mit ca. 277 qm für ca. 30,50 €/qm
- 8. OG mit ca. 480 qm für 28,50 €/qm, Terrasse
- 8. OG mit ca. 191 qm für ca. 31,50 €/qm, Terrasse
The following areas are available:
- Ground floor with approx. 121 sqm and 105 sqm in the basement for approx. 28.50 €/sqm
- Ground floor with 107 sqm on the ground floor (60 €/sqm) + 132 sqm in the basement
- 1st floor with approx. 300 sqm for €28.50/sqm
- 2nd floor with approx. 637 sqm for € 27.50/sqm, from 01.04.2026
- 4th floor with approx. 319 sqm for approx. 28.50 €/sqm
- 6th floor with approx. 319 sqm for approx. 27.50 €/sqm
- 7th floor with approx. 339 sqm for approx. 26 €/sqm
- 7th floor with approx. 277 sqm for approx. 30.50 €/sqm
- 8th floor with approx. 480 sqm for € 28.50/sqm, terrace
- 8th floor with approx. 191 sqm for approx. 31.50 €/sqm, terrace
Eckdaten
| Objektart | Büro |
| Objekttyp | Bürofläche |
| Vermarktungsart | Miete |
| Bürofläche | 2862.00 m² |
| Flächen teilbar ab | 191.00 m² |
| Nebenkosten | 5.00 € / m² |
| Heizkosten enthalten | JA |
| Kaution | 3 Monatsmieten |
| Preis | ab 27,50 €/qm |
| Gäste-WC | 1 |
| Nutzungsart | Gewerbe |
| DV-Verkabelung | JA |
| Barrierefrei | JA |
| Personenaufzug | JA |
| Objektnummer | MS4082 |
Ausstattung
- Flexibel
- Urban
- Cat 6
- Stellplätze
- Aufzug
- Teeküche
- Concierge
- Hohlraumboden Flexible
- Urban
- Cat 6
- Parking spaces
- elevator
- Kitchenette
- Concierge
- Cavity floor
Weiterempfehlen:
Lage in Karte:
Altes Kontorhaus Mitte



